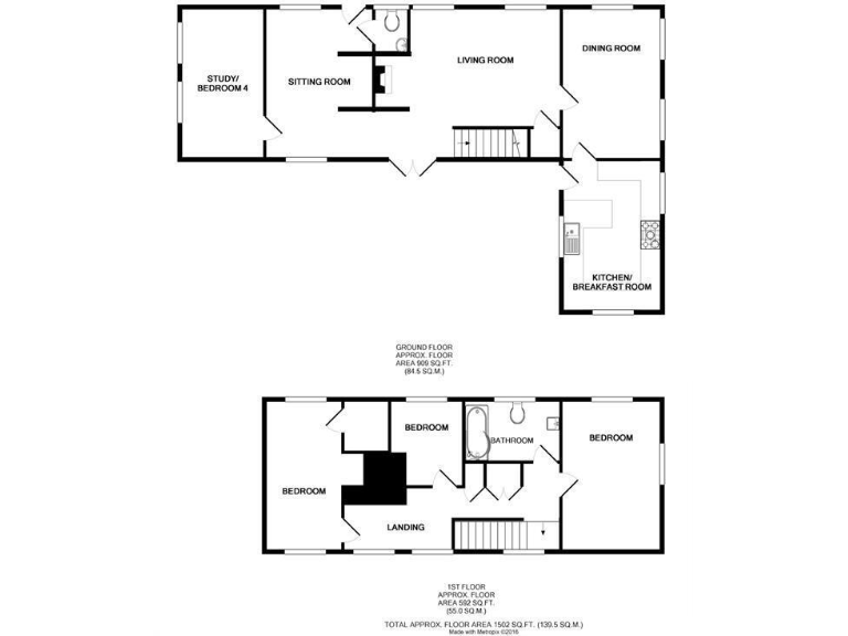
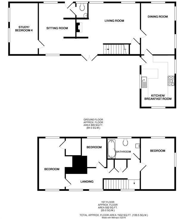
**Standout Features:**
- Grade II listed, thatched cottage with traditional charm
- Three/four bedrooms, including a versatile ground floor study/bedroom
- Two spacious sitting rooms and separate dining room
- Electric gated driveway with ample parking and a double bay cart lodge
- Enclosed, landscaped rear garden ideal for relaxation and entertaining
**Potential Downsides:**
- Listed status may limit renovation and extension options
- Average maintenance required due to age
This rare Grade II listed thatched cottage in the picturesque village of High Roding offers a unique blend of historic charm and modern living potential. With three spacious bedrooms plus an adaptable study or fourth bedroom, the home is perfect for families seeking a comfortable and inviting space. The two reception rooms provide a cozy atmosphere, complete with rustic exposed beams and a characterful fireplace. The landscaped rear garden is an outdoor oasis, perfect for gatherings and family activities.
Generous gated driveway parking caters to multiple vehicles, complemented by a double bay cart lodge. Additionally, the property boasts proximity to well-regarded schools and local amenities, making it an ideal choice for families. However, interested buyers should note that the property’s listed status may impose restrictions on renovation options.
With its tranquil rural setting and delightful features, this cottage is a must-see for those looking to embrace a charming lifestyle in the Dorset countryside. Don’t miss the chance to own a piece of history—properties like this don’t stay on the market for long!
2 bedroom cottage for sale in The Street, High Roding, Dunmow, Essex, CM6 — £400,000 • 2 bed • 1 bath • 962 ft²
4 bedroom detached house for sale in High Roding, Dunmow, Essex, CM6 — £700,000 • 4 bed • 2 bath • 1560 ft²
3 bedroom cottage for sale in The Street, Little Dunmow, CM6 — £585,000 • 3 bed • 1 bath • 1495 ft²
3 bedroom semi-detached house for sale in Post Office Cottages, Abbess Roding, CM5 — £575,000 • 3 bed • 1 bath • 14440 ft²
4 bedroom detached house for sale in The Street, High Roding, Dunmow, Essex, CM6 — £750,000 • 4 bed • 2 bath • 1456 ft²
4 bedroom detached house for sale in Chelmsford Road, White Roding, CM6 — £1,400,000 • 4 bed • 2 bath • 4332 ft²














































































































