Large period detached home with wrap-around garden and double-width garage, offered chain-free..
Chain-free four-bedroom period detached home with high-spec interior
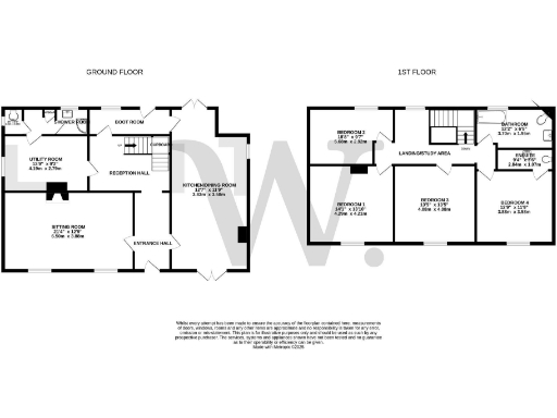
Large farmhouse-style kitchen/diner and 21ft+ sitting room with wood burner
Wrap-around private garden with mature boundaries and good privacy
Double car-width Cartshed garage plus ample private parking
Three bathrooms including ground-floor shower; ensuite to principal bedroom
Solid brick construction (pre-1900); wall insulation not assumed
Oil-fired boiler heating; EPC rating D — consider running costs
Average broadband and mobile signal; council tax above average
Set in an established, affluent rural pocket, The Firs is a substantial period detached house offering generous family accommodation and high-specification finishes. The ground floor centres on a large farmhouse-style kitchen/diner and an over-21ft sitting room with a wood-burning stove, arranged for effortless entertaining and everyday family life. A practical boot room, utility and ground-floor shower room add useful flexibility.
Upstairs provides four double bedrooms, including a sizeable principal bedroom with ensuite and a wide landing/study area suitable for homework or a reading nook. The property is offered chain-free and largely move-in ready, with contemporary fittings alongside preserved period character and generous internal floor area (c.2,174 sq ft).
Outside, a double-width Cartshed garage and ample private parking sit alongside a large wrap-around garden bordered by mature shrubs and trees, providing privacy and space for children, pets and outdoor entertaining. The location benefits from very low crime, good local schools, nearby amenities and convenient transport links while retaining a peaceful, semi-rural feel.
Practical considerations: the house is solid brick and was constructed before 1900, with no assumed wall insulation unless retrofitted. Heating is by an oil-fired boiler and the EPC is D; council tax is above average. Broadband and mobile signals are described as average. These points are relevant for buyers considering running costs and potential improvement works.
4 bedroom detached house for sale in Thrigby Road, Filby, Great Yarmouth, NR29 — £525,000 • 4 bed • 2 bath • 1381 ft²
4 bedroom detached house for sale in Sam Smith Way, Rackheath, Norwich, NR13 — £430,000 • 4 bed • 3 bath • 1604 ft²
4 bedroom detached house for sale in Green Lane East, Rackheath, Norwich, NR13 — £475,000 • 4 bed • 2 bath • 1630 ft²
4 bedroom detached house for sale in Fallowfield, Framingham Earl, Norwich, NR14 — £400,000 • 4 bed • 2 bath • 1087 ft²
4 bedroom detached house for sale in The Street, Norton Subcourse, Norwich, NR14 — £450,000 • 4 bed • 2 bath • 1593 ft²
4 bedroom detached house for sale in The Old Coach House Gardens, Hainford, NR10 — £650,000 • 4 bed • 2 bath • 2164 ft²






























































































