Perfect starter purchase with low bills, smart tech and adaptable layout.
Energy-saving package: solar PV, enhanced glazing, shower heat recovery
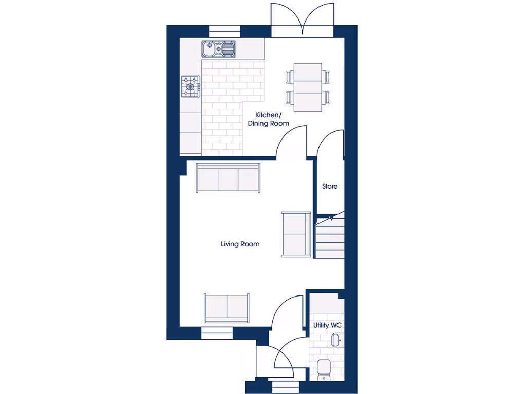
Brand-new ground-floor layout with rear kitchen and patio doors
Master bedroom with en-suite; family bathroom and storage upstairs
Downstairs W/C and separate utility room for practical living
Small to modest rear garden and plot size; limited outdoor space
High specification: integrated appliances, smart thermostat, ring doorbell
Freehold new-build in an affluent area with fast broadband
Shape Your Home option allows limited floorplan changes at purchase
This three-bedroom semi-detached new-build on Moorland Drive is aimed squarely at first-time buyers seeking low running costs and contemporary living. The home benefits from extensive energy-saving measures—roof-mounted solar PV, enhanced glazing and shower heat recovery—helping reduce bills while providing a bright, comfortable interior. The revised ground-floor layout places the kitchen/diner at the rear with patio doors to a turfed garden, and a lounge to the front featuring full-height windows for strong natural light.
The master bedroom includes a finished en-suite; two further bedrooms and a family bathroom give straightforward family flexibility. Downstairs W/C and a utility room add useful practicality for daily life. The developer’s Shape Your Home option allows limited floorplan changes at purchase, so buyers can choose an alternate two-bedroom layout if preferred.
Notable positives include the modern specification (integrated appliances, smart thermostat, ring doorbell) and low-maintenance exterior. However, the plot and garden are modest, so the outdoor space will suit buyers who prioritise low upkeep over extensive gardens. The property is freehold and sits in an affluent, low-deprivation area with good broadband and mobile signal.
Buyers should note this is a new-build on a compact plot within a development: while finishes are high, the footprint is modest and there may be ongoing communal works or landscaping as the estate completes. Overall, the house offers energy-efficient, low-maintenance living with flexible layout options—an attractive step onto the property ladder for first-time purchasers.
3 bedroom terraced house for sale in Whalley Old Road, Blackburn,
BB1 4AA, BB1 — £267,000 • 3 bed • 1 bath • 731 ft²
3 bedroom end of terrace house for sale in Whalley Old Road, Blackburn,
BB1 4AA, BB1 — £272,000 • 3 bed • 1 bath • 695 ft²
3 bedroom end of terrace house for sale in Whalley Old Road, Blackburn,
BB1 4AA, BB1 — £272,000 • 3 bed • 1 bath • 695 ft²
3 bedroom semi-detached house for sale in Broken Stone Road, Blackburn,
Lancashire,
BB3 0LL, BB3 — £256,995 • 3 bed • 1 bath • 614 ft²
3 bedroom semi-detached house for sale in Broken Stone Road, BB3 — £256,995 • 3 bed • 2 bath • 2255 ft²
3 bedroom terraced house for sale in Whalley Old Road, Blackburn,
BB1 4AA, BB1 — £267,000 • 3 bed • 1 bath • 731 ft²














































