**Standout Features:**
- Charming Edwardian semi-detached garden apartment
- Private entrance and serene, well-maintained garden
- Spacious living area and compact kitchen
- Chain free with appealing modern refinements
- Excellent mobile signal and fast broadband
- Quiet residential street, close to town and train station
**Potential Concerns:**
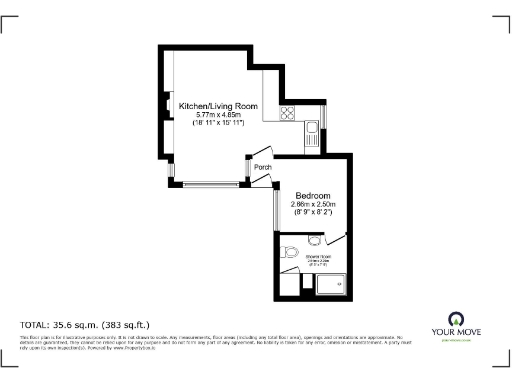
- Smaller total space of 383 square feet may not suit everyone
- High crime rate in the area could be a consideration
Discover this delightful garden apartment, a charming retreat nestled in a highly sought-after street in Tunbridge Wells. Perfectly designed for those who appreciate both character and modern living, this chain-free residence features a private entrance leading into a tranquil garden, adorned with mature trees and hard landscaping, creating a serene outdoor oasis for relaxation or entertaining.
Inside, the open-plan living area exudes warmth, enhanced by natural light and views of the garden, while the compact yet functional kitchen is ideal for culinary adventures. The bedroom provides a cozy atmosphere, complemented by the beautifully appointed bathroom—each space thoughtfully designed for comfort. With an approximate total area of 383 square feet, this property maximizes its use, making it an attractive option for first-time buyers or investors looking for a charming rental retreat.
Situated in an affluent community with excellent mobile connectivity and fast broadband, this apartment balances seclusion with convenience, allowing easy access to local amenities and transport links. While the high crime rate in the area may raise concerns, the unique charm and character of this home beckon prompt attention—don’t miss your chance to secure a piece of this desirable location!
1 bedroom flat for sale in Frant Road, Royal Tunbridge Wells, TN2 — £250,000 • 1 bed • 1 bath • 390 ft²
2 bedroom ground floor flat for sale in Clanricarde Gardens, Tunbridge Wells, TN1 — £300,000 • 2 bed • 1 bath • 643 ft²
2 bedroom apartment for sale in Queens Road, Tunbridge Wells, TN4 — £375,000 • 2 bed • 2 bath • 803 ft²
2 bedroom flat for sale in Charltons Way, Tunbridge Wells, Kent, TN4 — £270,000 • 2 bed • 2 bath • 756 ft²
2 bedroom apartment for sale in Flat 1, 10 Linden Gardens, Tunbridge Wells, Kent, TN2 5QT, TN2 — £450,000 • 2 bed • 1 bath • 856 ft²
1 bedroom flat for sale in London Road, Tunbridge Wells, Kent, TN1 — £260,000 • 1 bed • 1 bath • 621 ft²






































































