Three-bedroom home with approved extensions near parks and transport.
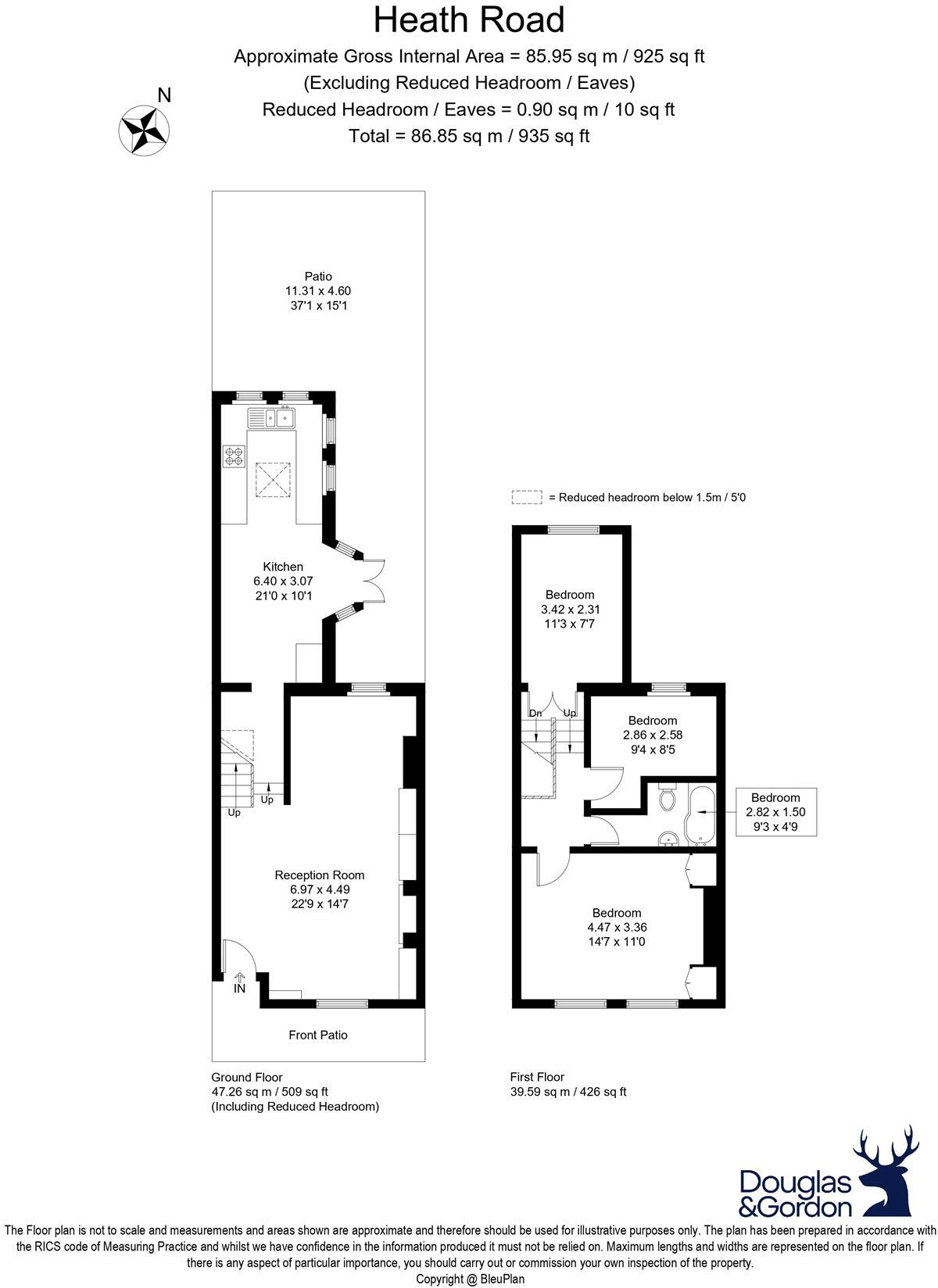
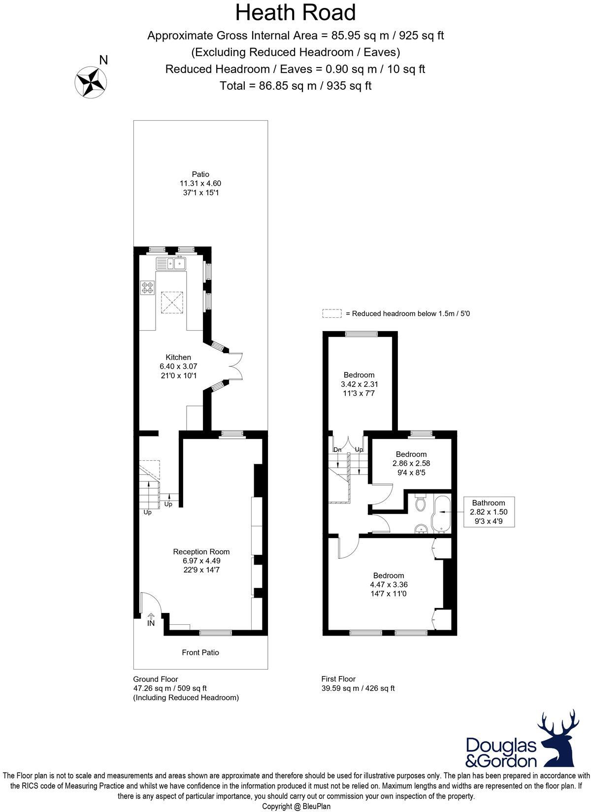
Freehold Victorian terraced house, circa 935 sq ft
A charming three-bedroom Victorian freehold on Heath Road, offered with approved planning permission to substantially extend. The current layout includes a large reception room with high ceilings and a newly fitted kitchen, one family bathroom and a private garden — a comfortable home for families seeking space and future growth.
Planning consent is already in place for a side-return infill, a first-floor rear extension and a mansard loft with dormers, creating clear scope to increase living area and add value. The house totals about 935 sq ft and is being sold freehold, making it a straightforward project for owner-occupiers or investors who want to complete the works and capture uplift.
There are practical issues to consider: the house dates from before 1900 and has solid brick walls likely without insulation, which may require energy upgrades. There is only one bathroom for three bedrooms, the rear garden and plot are small, and local statistics show high crime and significant area deprivation — factors buyers should weigh alongside the redevelopment potential.
Location is a major draw: quiet residential street close to Clapham Old Town, Battersea Power Station, Battersea Park and multiple rail and bus links into central London. Fast broadband and excellent mobile signal suit modern working patterns, and several well-rated primary and secondary schools lie within easy reach.
3 bedroom house for sale in Shuttleworth Road, Battersea, London, SW11 — £950,000 • 3 bed • 1 bath • 1218 ft²
3 bedroom terraced house for sale in Shuttleworth Road,
Battersea, SW11 — £950,000 • 3 bed • 1 bath • 1198 ft²
3 bedroom terraced house for sale in Battersea High Street, London, SW11 — £1,250,000 • 3 bed • 2 bath • 1435 ft²
3 bedroom terraced house for sale in Robertson Street, Battersea, London, SW8 — £950,000 • 3 bed • 2 bath • 1137 ft²
3 bedroom terraced house for sale in Reform Street, Battersea, London, SW11 — £1,000,000 • 3 bed • 2 bath • 1283 ft²
2 bedroom end of terrace house for sale in Battersea High Street, London, SW11 — £875,000 • 2 bed • 1 bath • 973 ft²


























































































