Spacious new-build on a large landscaped plot near Tarporley.
Four bedrooms with en suite and family bathroom
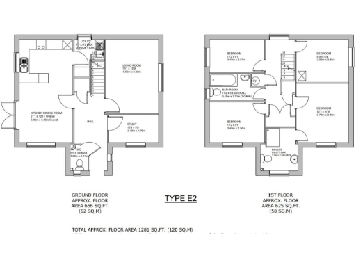
Plot 35, the Tilston design, is a modern four-bedroom detached house offering 1,281 sq ft of family-friendly space. The ground floor layout maximises living with two reception rooms plus a generous open-plan breakfast kitchen, utility and a study — ideal for family life and home working. Upstairs provides four bedrooms, including an en suite, and a family bathroom. The house is chain free and benefits from a BLP 11-year structural warranty.
The property sits on a notably large landscaped plot with driveway and garage, and the development preserves generous green space and countryside views. Energy performance is significantly above the national average and superfast broadband is available, making the home efficient and well suited to remote working. The location combines quiet semi-rural living with easy access to Tarporley and local walking routes.
Practical points to note: heating is via an LPG boiler and radiators (bulk LPG supply), and there is an annual communal management charge of around £960. A non-refundable reservation fee of £3,000 applies on purchase. Overall, this freehold new build is a high-quality, low-maintenance option for growing families seeking space and countryside access.
4 bedroom detached house for sale in 27 Gowy Place, Plot 49, Beeston., CW6 — £460,000 • 4 bed • 2 bath • 1281 ft²
4 bedroom detached house for sale in 16 Sandford Road, Plot 84, Beeston., CW6 — £460,000 • 4 bed • 2 bath • 1235 ft²
4 bedroom detached house for sale in 80 Sandford Road, Plot 32, Beeston., CW6 — £475,000 • 4 bed • 1 bath • 1388 ft²
4 bedroom detached house for sale in Sandford Road, Beeston, Nr Tarporley, CW6 — £400,000 • 4 bed • 2 bath • 1019 ft²
5 bedroom detached house for sale in Beeston Park, Beeston, CW6 — £1,150,000 • 5 bed • 5 bath • 2537 ft²
4 bedroom detached house for sale in Oswalds Way, Tarporley, CW6 — £825,000 • 4 bed • 2 bath • 2118 ft²














































































