Large four-bedroom period home with modern kitchen and private garden, ideal for families.
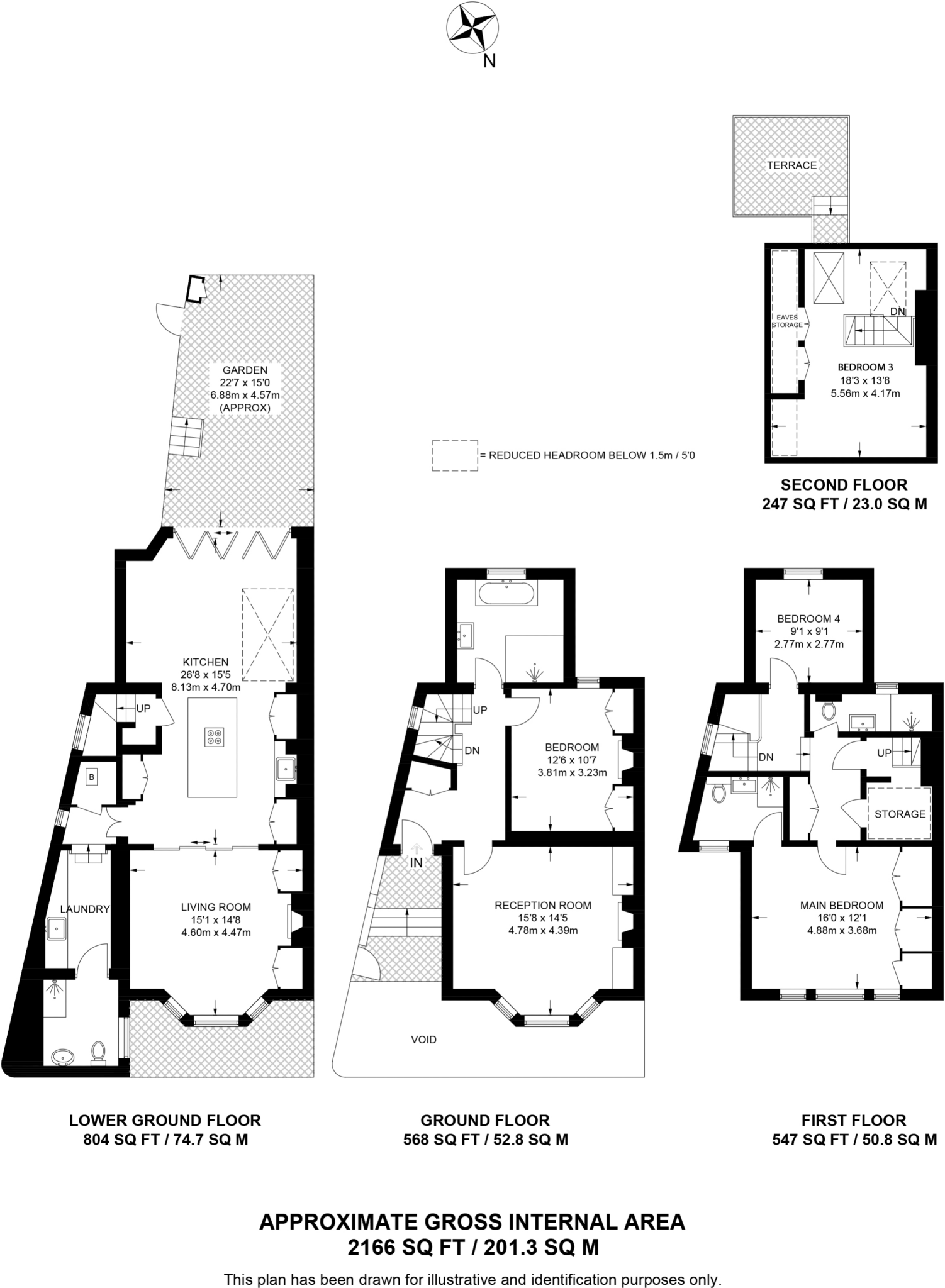
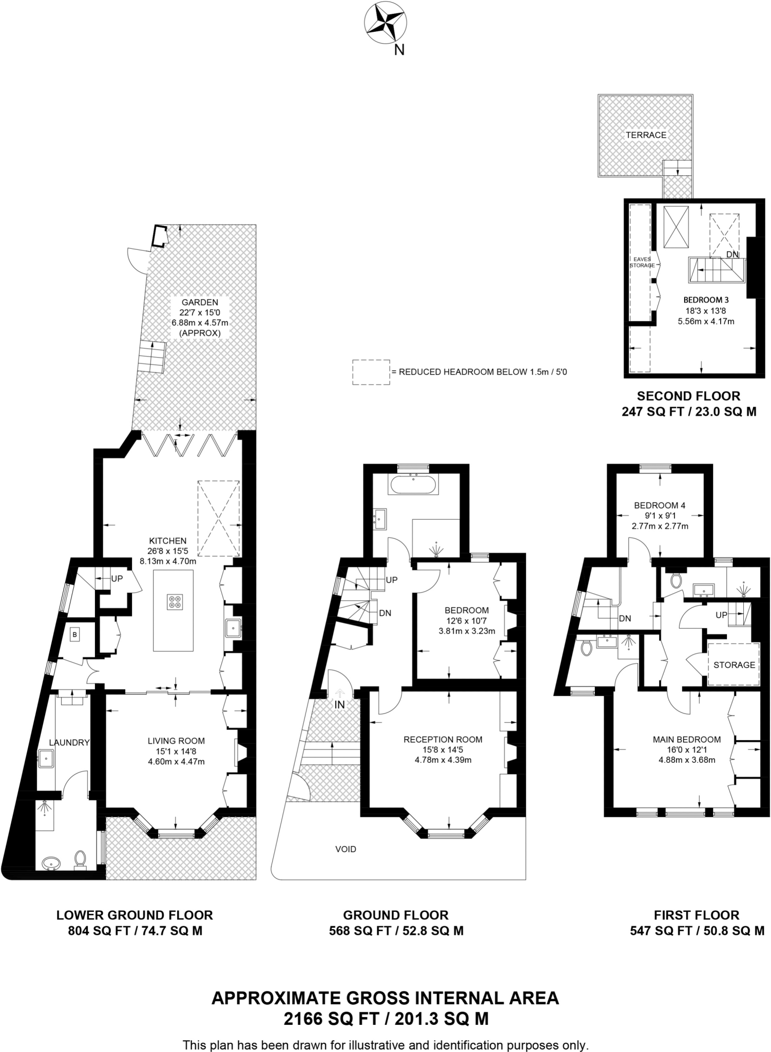
Large 2,166 sq ft end-terrace house over multiple floors
Bright reception with Victorian bay window and high ceilings
Contemporary open-plan kitchen/diner with integrated appliances
Main bedroom with extensive fitted wardrobes and en-suite
Private rear garden; plot size small for Chelsea standards
Freehold tenure, mains gas boiler and double glazing
Solid brick construction likely without cavity insulation
Area shows above-average crime and local deprivation indicators
Set on a quiet Chelsea street moments from Chelsea Harbour and the River Thames, this end-terrace four-bedroom house offers generous living space across multiple floors. The property totals around 2,166 sq ft with a bright reception room featuring a bay window and high Victorian ceilings, plus a contemporary open-plan kitchen and dining area that opens to a private rear garden.
The main bedroom includes extensive fitted wardrobes and an en-suite; there are three further double bedrooms and two additional bathrooms, providing flexible accommodation for a family or professionals. Modern touches such as updated double glazing and a recently fitted kitchen sit alongside original character including mouldings and a fireplace.
Practical details: the house is freehold, heated by a mains gas boiler and radiators, and has excellent mobile signal and fast broadband. The plot is small but offers an outdoor space rare for central Chelsea. Local schools include several highly regarded primaries and a good secondary, making the location well-suited to families.
Do note some material points to consider: the building is original solid brick (1900–1929) and likely lacks cavity insulation, so upgrading thermal performance would be a sensible investment. The wider area shows above-average crime statistics and relative area deprivation indicators, which should be weighed alongside Chelsea’s local amenities and transport links.
4 bedroom end of terrace house for sale in Burnaby Street, Chelsea, SW10 — £1,990,000 • 4 bed • 3 bath • 2126 ft²
4 bedroom terraced house for sale in King's Road, London, SW10 — £3,500,000 • 4 bed • 4 bath • 2830 ft²
4 bedroom terraced house for sale in Guthrie Street, Chelsea, London, SW3 — £3,000,000 • 4 bed • 3 bath • 1950 ft²
5 bedroom end of terrace house for sale in Oakfield Street, Chelsea, London, SW10 — £4,950,000 • 5 bed • 4 bath • 2540 ft²
5 bedroom terraced house for sale in Edith Grove, Chelsea, London, SW10 — £2,550,000 • 5 bed • 3 bath • 2399 ft²
4 bedroom terraced house for sale in Bury Walk, London, SW3 — £4,250,000 • 4 bed • 3 bath • 2222 ft²


















































































































































































































































