Move-in-ready flat near Sefton Park and transport, ideal for first buyers or investors..
Two spacious bedrooms with Juliet balcony to main bedroom
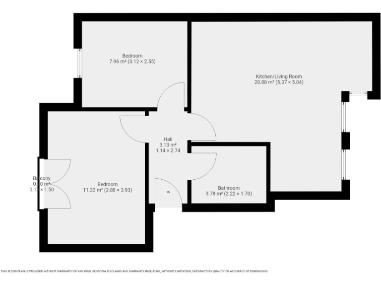
This well-presented two-bedroom apartment sits in a quiet cul-de-sac in L17, a short distance from Sefton Park and local transport links. The flat offers a bright living room, recently renovated kitchen and bathroom, and a Juliet balcony off the main bedroom for a bit of fresh-air appeal. Wooden shutters have been fitted throughout, and contemporary finishes give the property a move-in-ready feel.
The apartment is compact at 573 sq ft, but the layout provides two generous bedrooms and practical storage, including an allocated parking space and private storage on the communal landing. The long lease (942 years) and below-average service charge make the ownership costs predictable; ground rent is modest.
This home suits first-time buyers and buy-to-let investors seeking low-maintenance accommodation in a well-connected area. Note that the wider area is classified as communal retirement and the neighbourhood shows signs of deprivation, which may influence resale or tenant demand in parts of the locality. Council tax is described as cheap and broadband and mobile signals are strong.
Overall, the property offers immediate usability after recent renovation, sensible running costs, and clear rental potential — while buyers should factor in the flat’s relatively small size and the local area profile when assessing long-term suitability.
2 bedroom house for sale in Lentworth Court, Liverpool, Merseyside, L17 — £160,000 • 2 bed • 2 bath • 676 ft²
2 bedroom flat for sale in Dudlow Nook Road, Liverpool, Merseyside, L18 — £220,000 • 2 bed • 1 bath • 685 ft²
2 bedroom flat for sale in Eton Court, LIVERPOOL, Merseyside, L18 — £210,000 • 2 bed • 1 bath • 698 ft²
2 bedroom apartment for sale in Dobson Street, Liverpool, Merseyside, L6 — £100,000 • 2 bed • 1 bath • 552 ft²
2 bedroom flat for sale in Parkfield Road, Aigburth, Liverpool, Merseyside, L17 — £150,000 • 2 bed • 1 bath • 759 ft²
2 bedroom apartment for sale in Calderstones Road, Liverpool, Merseyside, L18 — £180,000 • 2 bed • 1 bath • 639 ft²






































































