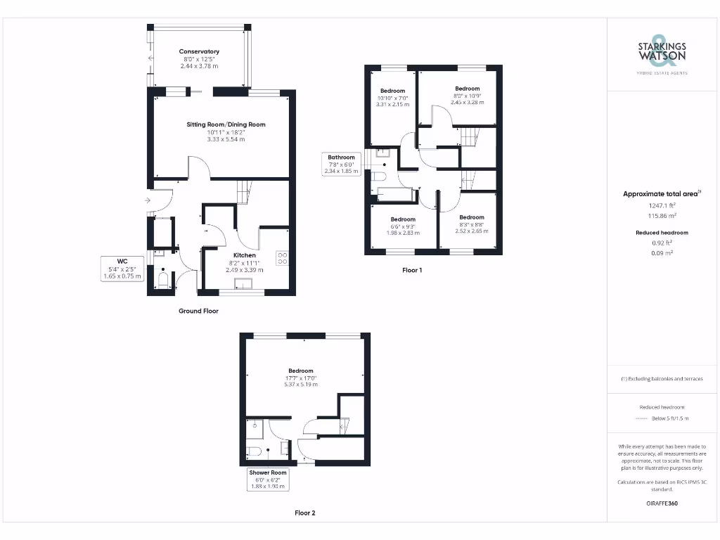
Spacious updated five-bedroom house with energy-saving extras and private garden.
New roof 2021 and recently fitted uPVC double-glazed windows and doors
Loft conversion with main bedroom and en-suite shower room
Solar panels and EV charger reduce running costs
Modern kitchen, utility room and ground-floor WC
Large open-plan sitting/dining room and conservatory
Off-road parking with garage; fully enclosed private rear garden
Heated by oil boiler; EPC rated D (energy consideration)
Slow local broadband and higher area deprivation scores
This considerably extended and recently updated five-bedroom semi-detached home suits a busy family wanting generous living space and low running costs. Improvements include a 2021 roof, recent uPVC double-glazed windows and doors, a modern fitted kitchen, utility and a bright loft conversion with en-suite. Solar panels and an EV charger help reduce energy bills despite the oil-fired heating system.
Ground floor living is open and flexible: an 18' sitting/dining room flows to the conservatory and private rear garden, while a practical utility and ground-floor WC add everyday convenience. Upstairs offers four bedrooms and a family bathroom; the large dormer loft provides a well-lit main bedroom with its own en-suite and eave storage — ideal as a parents’ suite or teenage space.
Outside, off-road parking and a garage sit behind a gated front garden with an EV charging point. The rear garden is fully enclosed and private, suitable for children and pets. The house sits at the end of a quiet cul-de-sac in Martham, within reach of good primary schools and local amenities.
Notable considerations: the home is heated by an oil-fired boiler and currently has an EPC rating of D. Broadband speeds are slow in the area and the wider neighbourhood scores higher on deprivation measures. The family bathroom is functional but could be modernised to create a larger, four-piece layout if desired. Overall, this property presents a roomy, updated family home with clear potential to personalise further.
5 bedroom semi-detached house for sale in Blenheim Avenue, Martham, NR29 — £290,000 • 5 bed • 2 bath • 1459 ft²
3 bedroom semi-detached house for sale in Bradfield Drive, Martham, NR29 — £255,000 • 3 bed • 2 bath • 937 ft²
5 bedroom semi-detached house for sale in Blenheim Avenue, Martham, NR29 — £290,000 • 5 bed • 2 bath
4 bedroom detached house for sale in Hinderer Close, Martham, NR29 — £355,000 • 4 bed • 2 bath • 1263 ft²
4 bedroom detached house for sale in The Green, Martham, Great Yarmouth, NR29 — £450,000 • 4 bed • 3 bath • 1838 ft²
5 bedroom detached house for sale in Portobello Drive, Martham, NR29 — £400,000 • 5 bed • 2 bath • 1426 ft²






























































































































































































































