EX31 3WJ - 2 bedroom end of terrace house for sale in Claypits Road, R…

View on Property Piper

2 bedroom end of terrace house for sale in Claypits Road, Roundswell, Barnstaple, North Devon, EX31

Summary - 55, Claypits Road,Roundswell,BARNSTAPLE,EX31 3WJ EX31 3WJ

2 bed 1 bath End of Terrace

**Standout Features:**
- Lovely two-bedroom end-of-terrace home built in 2019
- Modern, open-plan living space with extended sun room
- Low maintenance rear garden and driveway for two vehicles
- Located on a quiet closed road with no through traffic
- Excellent local amenities and easy access to schools
- Council tax: low (Band B)

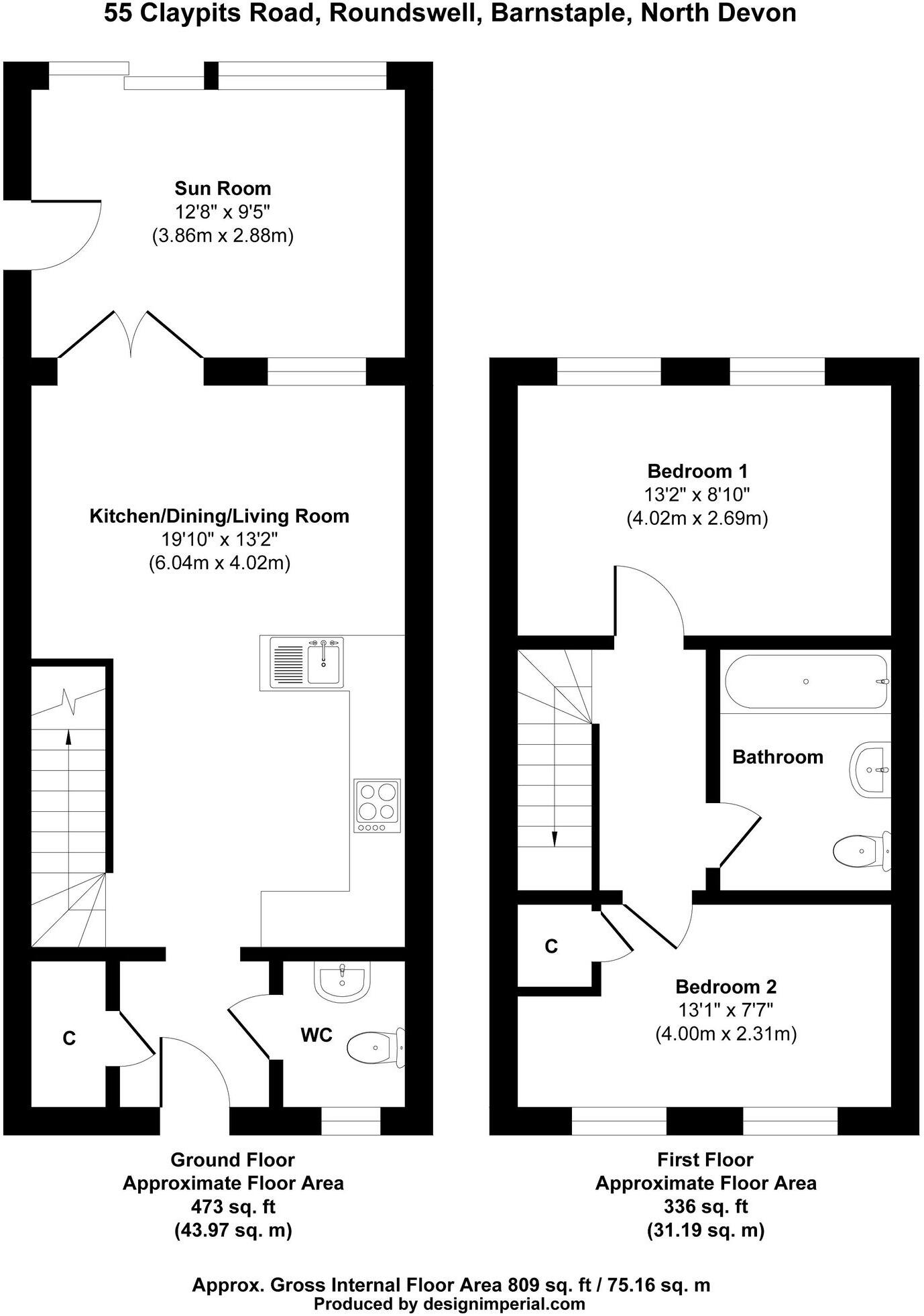
Nestled in the family-friendly area of Roundswell, this beautifully presented end-of-terrace home offers a modern living experience with a thoughtful open-plan design. On the ground floor, you will find a spacious kitchen with built-in appliances seamlessly connecting to a sociable dining area and a welcoming sitting room that opens out to an extended sun room, perfect for enjoying year-round natural light. Upstairs, two generously sized bedrooms share a contemporary bathroom, while an insulated, boarded loft provides excellent storage options.

The property boasts a low-maintenance garden, ideal for those seeking to enjoy outdoor space without the hassle, and off-street parking for two vehicles adds convenience. Positioned within walking distance to Roundswell Community Primary Academy and various amenities including supermarkets and eateries, it’s an attractive option for both families and first-time buyers. With the golden beaches of Saunton, Croyde, and Woolacombe just a short drive away, this is a rare opportunity to enjoy comfort and accessibility in a thriving community. Act quickly to secure your viewing—properties like this don’t stay on the market for long!

Property Details

Image Descriptions

Floorplan Description

Rooms

Textual Property Features

Detected Visual Features

Nearby Schools

Nearest Bars And Restaurants

,,,,}

Nearest General Shops

,,}

Nearest Grocery shops

,,}

Nearest Supermarkets

,,}

Nearest Religious buildings

,,}

Nearest Medical buildings

,,,}

Nearest Leisure Facilities

,,,,}

Nearest Tourist attractions

,,}

Nearest Train stations

,,,,}

Nearest Bus stations and stops

,,,,}

Nearest Hotels

,,}

Tags

Local Market Stats

Similar Properties

Meta

High Res Images

Compatible Images

Low res Images

Thumbnails

Raw Images

High Res Floorplan Images

Compatible Floorplan Images

Low res Floorplan Images

FloorplanImages Thumbnail

Raw Floorplan Images