Ideal starter home with private outdoor space and allocated parking.
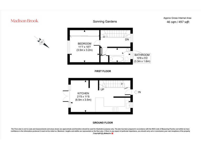
Freehold one-bedroom mid-terrace over two floors
Set within a quiet residential enclave in Hampton, this freehold one-bedroom terraced house offers practical living across two floors. The ground floor features an open-plan kitchen/living area with large double-glazed sliding doors that open directly onto a private, low-maintenance garden — a useful outdoor extension for morning coffee or light entertaining. A built-in workspace in the living area suits hybrid working.
Upstairs provides a generous bedroom and a modern bathroom with a full bathtub. The property benefits from double glazing throughout, allocated off-street parking, and fast broadband and excellent mobile signal — practical advantages for commuters and first-time buyers. Nearby schools and local amenities are within easy reach, and the area is generally very affluent with low crime.
Practical factors to note: heating is by electric storage heaters, which can be less economical than gas central heating, and a private estate service charge of £48 per month applies. The house is of average overall size (approximately 497 sq ft) with a small plot, so it suits singles, couples, or buyers seeking a low-maintenance property rather than large-family living. The build dates from the 1980s and cavity walls are filled, reducing immediate insulation concerns.
Overall this property is a straightforward, well-presented starter or investment purchase that combines private outdoor space, parking and modern glazing with modest running costs to consider before viewing.
1 bedroom terraced house for sale in Sonning Gardens, Middlesex, TW12 — £350,000 • 1 bed • 1 bath • 484 ft²
1 bedroom flat for sale in Page Close, Hampton, TW12 3XQ, TW12 — £215,000 • 1 bed • 1 bath • 369 ft²
1 bedroom house for sale in Gloxinia Walk, Hampton, TW12 — £309,950 • 1 bed • 1 bath • 536 ft²
1 bedroom flat for sale in Kingsway Business Park, Hampton, TW12 — £280,000 • 1 bed • 1 bath • 526 ft²
2 bedroom terraced house for sale in The Alders, Hanworth, Middlesex, TW13 — £449,000 • 2 bed • 2 bath • 784 ft²
2 bedroom end of terrace house for sale in Partridge Road, Hampton, Middlesex, TW12 — £450,000 • 2 bed • 1 bath


































