**Standout Features:**
- Established family-run restaurant business for sale for the first time in 60 years
- Unique medieval-themed dining experience in a converted early 20th-century cinema
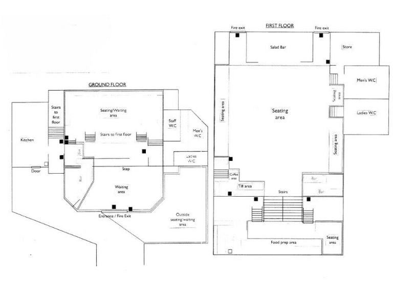
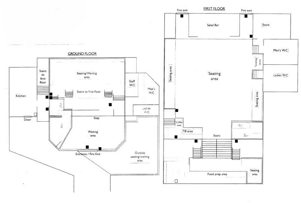
- Total space of 3,367 sq. ft. (approx. 312.8 sq. meters) with substantial seating capacity (up to 130 indoors, 30 outdoors)
- Prime location near Newlyn harbor, known for its vibrant dining scene
- Atmospheric interior with exposed beams and rustic charm
**Potential Concerns:**
- Maintenance needs reflective of age, including untested HVAC and structural integrity
- Sale includes existing business as a going concern; buyer must support current concept
This is a rare and exciting opportunity to acquire the iconic Newlyn Meadery, a well-established restaurant set in a picturesque location in Penzance. With a history spanning over six decades, this medieval-themed venue is more than just a restaurant; it’s a beloved community staple offering an enchanting dining atmosphere. Guests can enjoy over 130 covers in the atmospheric first-floor restaurant and an additional 36 covers in the cozy ground-floor bar. A private courtyard with 30 outdoor dining spots creates an inviting environment—perfect for alfresco meals.
Situated near the striking Newlyn harbor, this historic building benefits from a prime position amidst local attractions and a growing reputation for culinary excellence. The sale includes the freehold property, trade inventory, and goodwill, facilitating a seamless transition for a buyer with a passion for hospitality. While the business requires attention to maintenance and updates, its longstanding legacy ensures a loyal clientele and potential for growth, making it an ideal investment for aspiring restaurateurs or those interested in carrying on a cherished tradition.
Act quickly to seize this exceptional chance to own a piece of local history and a thriving business in one of Cornwall’s premier culinary destinations!
Restaurant for sale in 4-6 New Road, Penzance, Cornwall, TR18 — £350,000 • 1 bed • 1 bath • 1409 ft²
Restaurant for sale in Churchtown, Mullion, TR12 — £385,000 • 3 bed • 1 bath • 1534 ft²
Commercial property for sale in The Strand, Newlyn, TR18 5HW, TR18 — £290,000 • 2 bed • 1 bath • 1227 ft²
Commercial property for sale in 21 Fish Street, St. Ives, Cornwall, TR26 — £500,000 • 2 bed • 1 bath • 1093 ft²
Hotel for sale in Marazion Hotel, The Square, Marazion, Cornwall, TR17 0AP, TR17 — £1,500,000 • 1 bed • 1 bath • 2332 ft²
Hospitality facility for sale in Seafood Processing Business, The Strand, Penzance, Cornwall, TR18 — £1,750,000 • 1 bed • 1 bath • 6304 ft²










































