Move-in ready three-bed home with landscaped garden and garden room.
Three bedrooms with main en-suite shower room
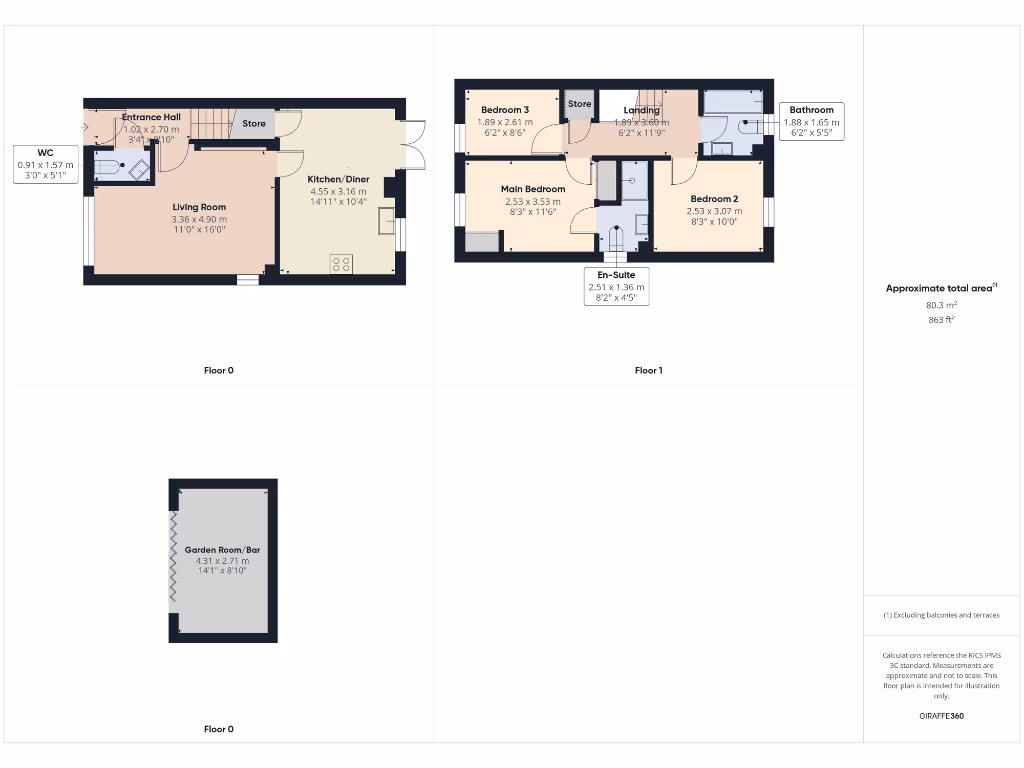
A well-presented three-bedroom semi-detached house in Gateford, Worksop, offered freehold and ready to move into. The ground floor features an open-plan living room and modern fitted kitchen/diner with French doors opening onto a landscaped, low-maintenance garden. Practical touches include a downstairs WC, under-stairs storage and newly fitted downstairs flooring and panelling.
Upstairs the main bedroom has two fitted wardrobes and an en-suite shower; two further bedrooms share a modern family bathroom. Additional built-in storage is provided on the landing and the loft is partially boarded with a pull-down fixed ladder, giving useful extra space.
Outside, a private driveway provides off-street parking for two vehicles. The rear garden combines paving, decking and artificial lawn, and includes two sheds plus a versatile garden room currently arranged as a bar — suitable as a home office, gym or hobby space. EPC rating B and no flood risk add practical reassurance.
This home suits families seeking a comfortable, low-maintenance property in a quiet, well-served suburb close to good primary and secondary schools, local amenities and road links. Note the property is an average size internally (approximately 863 sq ft) and does not include a garage, which may limit storage or secure parking options for some buyers.
3 bedroom semi-detached house for sale in Harlequin Drive, Worksop, S81 — £250,000 • 3 bed • 2 bath • 946 ft²
3 bedroom semi-detached house for sale in Ringlet close, Worksop, S81 — £255,000 • 3 bed • 2 bath • 1182 ft²
3 bedroom semi-detached house for sale in Ash Holt Drive, Worksop, S81 — £180,000 • 3 bed • 1 bath • 699 ft²
2 bedroom semi-detached house for sale in Cape Honey Way, Worksop, S81 — £190,000 • 2 bed • 1 bath • 525 ft²
3 bedroom semi-detached house for sale in Gateford Road, Worksop, S81 — £155,000 • 3 bed • 1 bath
3 bedroom detached house for sale in Bluebell Close, Worksop, S81 — £280,000 • 3 bed • 2 bath • 1032 ft²






























































































