Ready-to-move family home with garage and driveway parking.
Quiet private cul‑de‑sac location
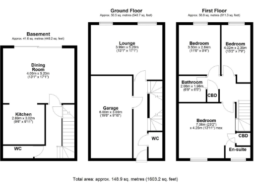
Set on a quiet private cul‑de‑sac in Queensbury, this modern three‑bedroom semi offers roomy family living across multiple levels with a large internal footprint (approx. 1,603 sq ft). The open-plan living/dining area opens through patio doors to a low‑maintenance rear garden, creating an easy flow for everyday life and casual entertaining. A contemporary fitted kitchen has integrated appliances and neutral finishes ready for immediate use.
Practical features include an integral garage with electric door (currently used as a gym), block‑paved driveway parking for several vehicles, built‑in storage, loft access and a ground‑floor WC. The master bedroom benefits from an ensuite shower room while two further double bedrooms and a family bathroom complete the first floor—suitable for first‑time buyers or small families seeking move‑in readiness and space to grow.
Be upfront about locality and plot: the property sits in a hard‑pressed, deprived ward with above‑average crime levels, and the small rear garden and compact plot mean limited outside space. The house is freehold with mains gas central heating and generally modern finishes, but prospective buyers should verify services, fixtures, and any past works before purchase.
Overall, the property represents a spacious, low‑maintenance family home in a convenient cul‑de‑sac location with strong internal space and parking. It will suit buyers seeking ready‑to‑live accommodation with scope for personalisation rather than those wanting extensive grounds or a rural setting.
3 bedroom semi-detached house for sale in Uplands Grove, Queensbury, Bradford, BD13 — £210,000 • 3 bed • 1 bath • 843 ft²
3 bedroom semi-detached house for sale in Hillcrest Drive, Queensbury, BD13 — £175,000 • 3 bed • 1 bath • 620 ft²
4 bedroom detached house for sale in Valley Fold, Queensbury, Bradford, BD13 2LF, BD13 — £375,000 • 4 bed • 2 bath • 1550 ft²
4 bedroom semi-detached house for sale in Old Mill Dam Lane, Queensbury, Bradford, BD13 — £300,000 • 4 bed • 2 bath • 1430 ft²
3 bedroom semi-detached house for sale in Campbell Street, Queensbury, Bradford, BD13 — £185,000 • 3 bed • 1 bath • 741 ft²
3 bedroom semi-detached house for sale in Cairns Close, Kings Park, BD2 — £230,000 • 3 bed • 2 bath • 1088 ft²






























































































































