Grade II listed barn conversion with strong historic character
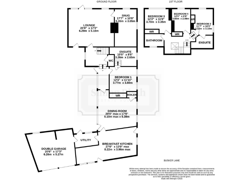
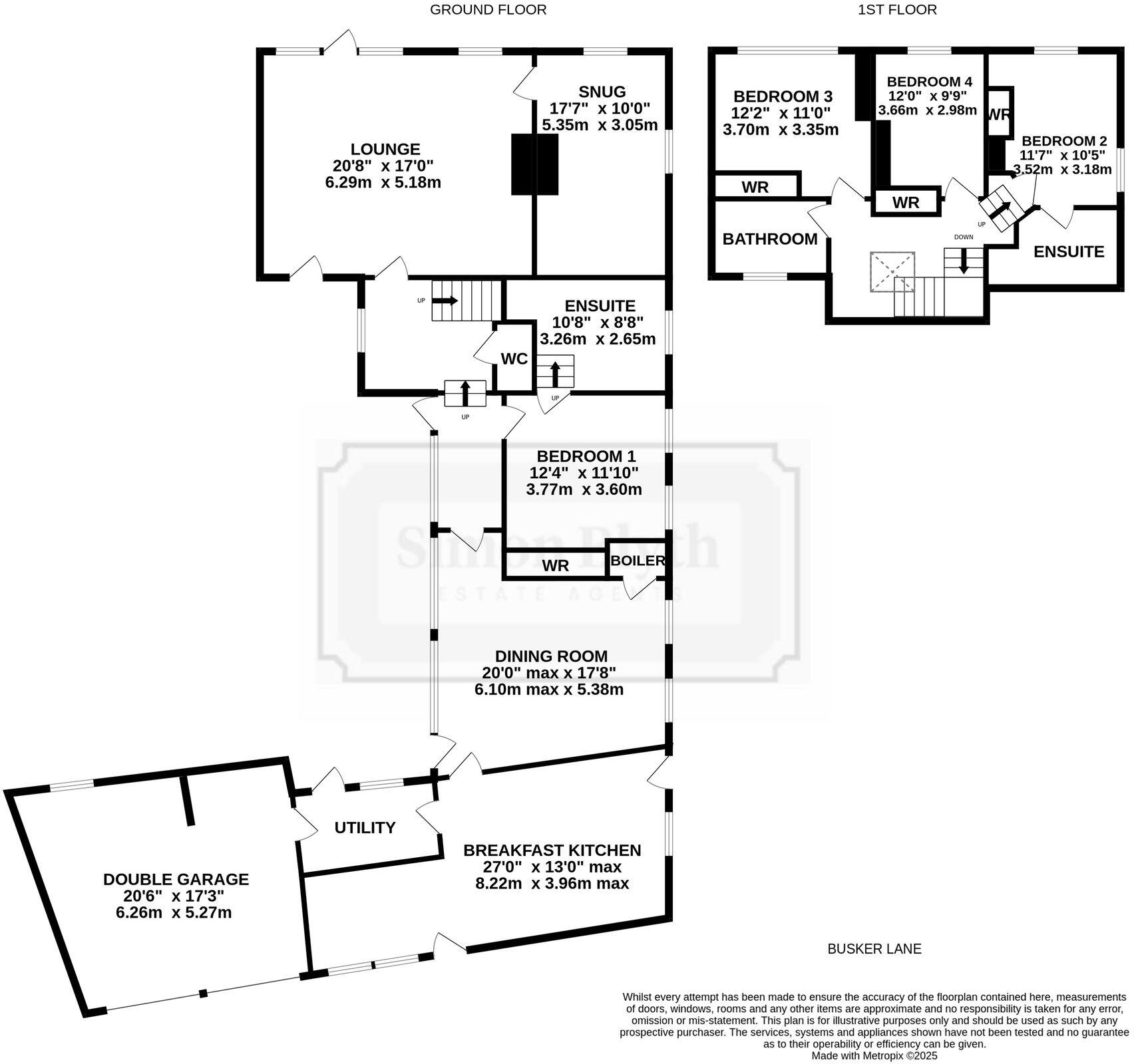
The Byre is a substantial Grade II listed barn conversion set on a very large private plot in Scissett. At about 2,207 sqft the house blends original character—exposed beams, mullioned windows, antique brickwork—with high‑quality finishes such as oak doors, polished timber floors and a fitted breakfast kitchen. The driveway with electric gates, integral double garage and manicured lawns give strong kerb appeal and practical family parking.
Accommodation is flexible for modern family life: four double bedrooms (one on the ground floor), two en‑suites, a large lounge with fireplace, separate snug/home office and a generous dining/family room opening to the kitchen. The layout and large rooms suit multigenerational living or home working and the garden/setting offers excellent privacy and long-distance views.
Buyers should note this is Grade II listed, which restricts alterations and can complicate maintenance or extensions. Council Tax is described as expensive and some fixtures (double glazing install dates unknown) may need updating. Despite prior high‑quality conversion work, future owners should budget for listed‑building care and obtain consents for any changes.
This property will appeal to families seeking a characterful countryside home within reach of local schools and about 15 minutes from the M1. It offers a rare combination of period charm, generous internal space and a very large, private garden — but comes with the responsibilities that accompany listed status.
3 bedroom barn conversion for sale in Marsh Hall Lane, Thurstonland, HD4 — £675,000 • 3 bed • 2 bath • 1076 ft²
4 bedroom semi-detached house for sale in Park View Farm, Botany Lane, Lepton, HD8 — £625,000 • 4 bed • 2 bath • 1216 ft²
4 bedroom detached house for sale in Hollin Brigg Lane, Holmbridge, Holmfirth, HD9 — £925,000 • 4 bed • 2 bath • 2167 ft²
2 bedroom cottage for sale in Far End Lane, Honley, Holmfirth, HD9 — £280,000 • 2 bed • 2 bath • 807 ft²
4 bedroom barn conversion for sale in Chapel Street, Golcar, Huddersfield, HD7 — £550,000 • 4 bed • 2 bath • 2245 ft²
4 bedroom barn conversion for sale in The Byre, Raw End Road, Warley HX2 7SS, HX2 — £600,000 • 4 bed • 2 bath • 1701 ft²


























































































































































































