Spacious country home with outbuildings and planning consent on 1.3 acres.
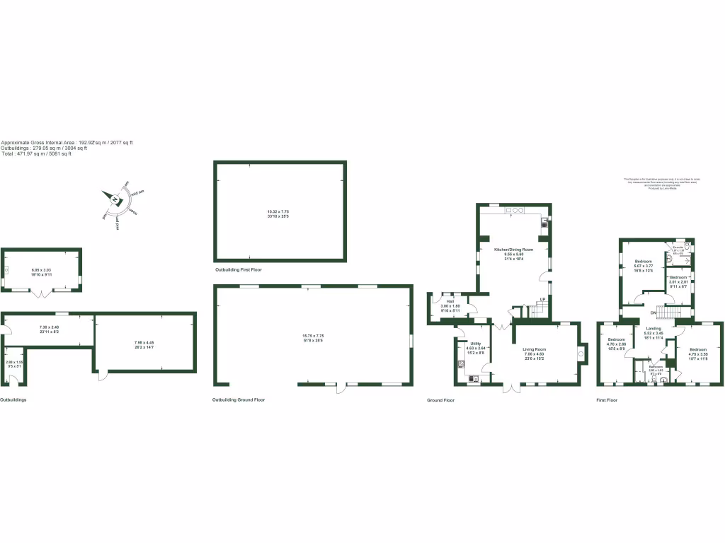
- Stone-built detached cottage set in circa 1.3 acres of mature grounds
- Spacious living kitchen with electric AGA and picture window
- Separate lounge with wood-burning stove and cosy character
- Four bedrooms, principal with wet-room ensuite, plus family bathroom
- Range of outbuildings, workshop, garaging and timber agricultural building
- Planning consent to extend house (3/2020/0724) and separate agricultural consent
- Oil-fired heating; rural location with very slow broadband speeds
- Hamlet location provides privacy but limited local amenities
Set within about 1.3 acres of mature grounds, Rowan Cottage is a handsome stone-built home in peaceful Dutton with substantial outdoor space and outbuildings suited to rural living. The house centres on a generous living kitchen with an electric AGA and picture window, plus a separate lounge with wood-burning stove; practical ground-floor utility/boot room and off-street parking provide everyday convenience for countryside life. Four bedrooms and two bathrooms occupy the upper floor, the principal bedroom benefitting from a wet-room ensuite.
The plot is a major asset: sweeping stone parking areas, paths through wooded areas, a summer house, tree house, workshop, garaging and a large timber-clad steel-frame agricultural building (separate planning consent applied under 3/2020/1270) give wide scope for hobbies, storage or small-scale agricultural use. There is also planning consent to extend the main house under Ribble Valley application 3/2020/0724, presenting clear potential to enlarge living space subject to following the approved plans.
Practical points to note: the home is oil-fired with boiler and radiators; broadband speeds in the area are very slow and mobile signal is average. The property sits in a hamlet/isolated setting with very low local crime and an ageing rural neighbourhood character — ideal for buyers seeking seclusion but less convenient for those wanting fast digital connectivity or close urban amenities.
This property will suit buyers who prioritise land, privacy and rural character — families seeking space, hobby farmers, or purchasers wanting to complete the approved extension. The house is in a ready-to-live-in condition but offers scope for updating or further improvement to match individual tastes.
4 bedroom semi-detached house for sale in Clitheroe Road, Dutton, PR3 — £650,000 • 4 bed • 3 bath • 2075 ft²
14 bedroom detached house for sale in Clitheroe Road, Dutton, Preston, Lancashire, PR3 — £2,000,000 • 14 bed • 7 bath • 22500 ft²
3 bedroom semi-detached house for sale in Kenyon Lane, Dinckley, BB6 — £735,000 • 3 bed • 3 bath • 1927 ft²
3 bedroom cottage for sale in Gallows Lane, Ribchester, Ribble Valley, PR3 — £675,000 • 3 bed • 3 bath • 2541 ft²
4 bedroom detached house for sale in Ribchester Road, Dinckley, BB6 — £1,195,000 • 4 bed • 3 bath • 2774 ft²
4 bedroom barn conversion for sale in Edisford Road, Clitheroe, Ribble Valley, BB7 — £850,000 • 4 bed • 2 bath • 2672 ft²


















































































