EX8 2LT - 3 bedroom semidetached house for sale in Hamilton Road, Exm…

View on Property Piper

3 bedroom semi-detached house for sale in Hamilton Road, Exmouth, EX8

Summary - 22 HAMILTON ROAD EXMOUTH EX8 2LT

3 bed 2 bath Semi-Detached

Period character, modern extension and large garden — ideal for family life by the coast.
Extended open-plan kitchen/breakfast room with underfloor heating and folding doors
A spacious Edwardian semi-detached home blending period charm with a modern extended footprint. High ceilings and bay windows give the principal rooms a bright, airy feel while original features remain intact. The 2020 extension creates a generous open-plan kitchen/breakfast/entertaining space with folding doors onto a large landscaped garden — ideal for family life and social gatherings.

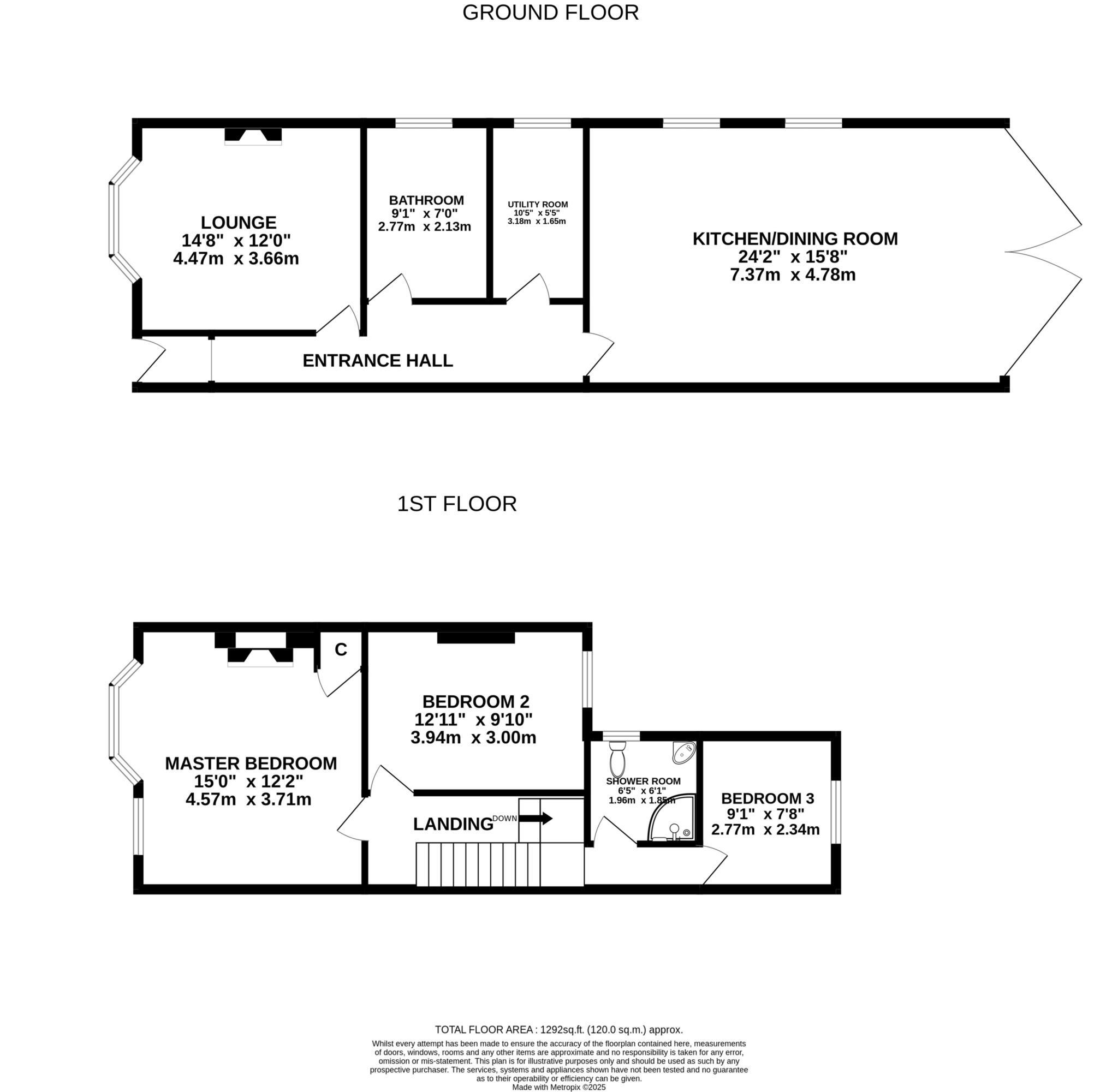
Practical family conveniences include driveway parking for 2–3 cars, a ground-floor utility and bathroom, plus two first-floor bathrooms serving three double bedrooms. The kitchen benefits from underfloor heating, integrated appliances and a large island; outside there are multiple decked terraces and a dedicated hot tub area for outdoor living.

Location is a key asset: Exmouth’s long stretch of coastline and riverside leisure amenities are close by, with fast broadband, excellent mobile signal and very low local crime. Note nearby schooling is mixed: one local primary is rated Good but another local provider is rated Inadequate and the secondary provision is rated Requires Improvement. Prospective buyers should verify services, measurements and legal title as part of their due diligence.

Property Details

Image Descriptions

Rooms

Textual Property Features

Target Audience

AI Tags

Detected Visual Features

EPC Details

Nearby Schools

Nearest Bars And Restaurants

,,,,}

Nearest General Shops

,,}

Nearest Grocery shops

,,}

Nearest Supermarkets

,,}

Nearest Religious buildings

,,}

Nearest Medical buildings

,,,}

Nearest Airports

}

Nearest Leisure Facilities

,,,,}

Nearest Tourist attractions

,,}

Nearest Train stations

,,,,}

Nearest Bus stations and stops

,,,,}

Nearest Hotels

,,}

Tags

Local Market Stats

AirBnB Data

Similar Properties

Meta

High Res Images

Compatible Images

Low res Images

Thumbnails

Raw Images

High Res Floorplan Images

Compatible Floorplan Images

Low res Floorplan Images

FloorplanImages Thumbnail

Raw Floorplan Images