Single-storey home with generous garden, parking and modern fittings.
Approximately 1,253 sq ft on a large plot
Detached, single-storey new build due for completion this Autumn
Two bedrooms and one family bathroom — limited for larger families
Open-plan living area with modern kitchen and bright finishes
Off-street parking for two to three cars
Solar panels fitted to reduce energy costs
Freehold tenure in a very affluent area with fast broadband
Near Good-rated primary and secondary schools; convenient local amenities
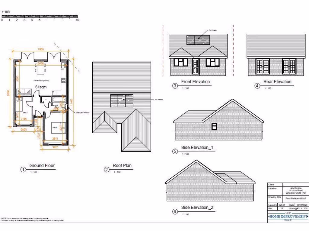
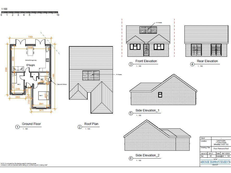
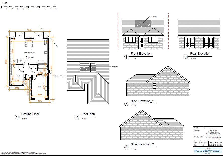
This architect-designed, detached two-bedroom bungalow offers single-storey living finished in a contemporary style. At approximately 1,253 sq ft on a large plot, the new-build home delivers an open-plan living area, modern kitchen and a private rear garden — all due for completion this Autumn.
Practical features include off-street parking for two to three cars and roof-mounted solar panels that will help reduce running costs. The property is freehold, set in a very affluent part of Wheatley with excellent mobile signal, fast broadband and a low flood risk — useful for remote working or retirees seeking convenience.
Local amenities and transport links are within easy reach, and several primary and secondary schools rated Good sit nearby, supporting families and visitors. Important practical notes: the house has two bedrooms and one bathroom, so it suits downsizers, couples or buyers seeking a low-maintenance home rather than a large family residence.
As a new build, the finish will be contemporary and largely maintenance-free on handover; buyers should note the completion timetable (Autumn) when planning moves. The property’s size, layout and plot present potential for personalised landscaping or interior upgrades where desired.
2 bedroom detached bungalow for sale in Cullum Road, Wheatley, Oxford, OX33 1XD, OX33 — £500,000 • 2 bed • 1 bath • 656 ft²
3 bedroom detached house for sale in Church Road, Wheatley, OX33 — £650,000 • 3 bed • 2 bath • 1055 ft²
2 bedroom detached bungalow for sale in Park Close, Didcot, OX11 — £375,000 • 2 bed • 2 bath • 995 ft²
3 bedroom detached bungalow for sale in St. Marys Close, Bicester, OX26 — £580,000 • 3 bed • 2 bath • 1292 ft²
2 bedroom detached bungalow for sale in Windmill Lane, Wheatley, OX33 — £725,000 • 2 bed • 1 bath • 1094 ft²
4 bedroom detached bungalow for sale in Westfield Road, Wheatley, OX33 — £775,000 • 4 bed • 2 bath • 1333 ft²






























































































