SO45 1EH - 4 bed spacious four bedroom bungalow in Blackfield Road, SO…

View on Property Piper

4 bedroom detached bungalow for sale in Blackfield Road, Fawley, SO45

Summary - MERRIVILLE, BLACKFIELD ROAD, SOUTHAMPTON, FAWLEY SO45 1EH

4 bed 1 bath Detached Bungalow

Chain-free detached bungalow with garage, large garden and upgrade potential near New Forest..
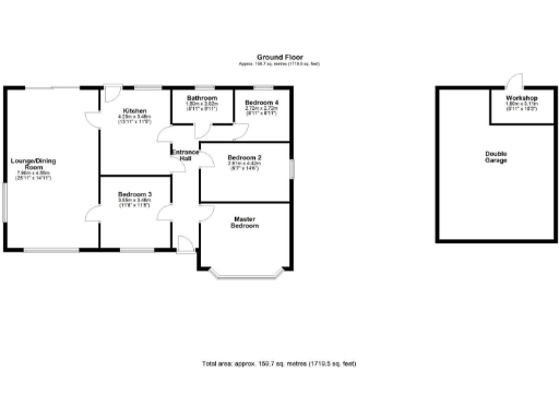
Four double bedrooms, all generously sized
Large south-facing rear garden, landscaped with patio
Double garage plus separate workshop, drive for six cars
Triple-aspect living/dining room with patio doors
Chain-free sale for quicker completion
Dated kitchen and single family bathroom need modernising
Likely no cavity wall insulation; potential energy upgrade required
Area shows higher crime and local economic deprivation
Set on a large plot close to the New Forest and Lepe Beach, this detached four-bedroom bungalow offers generous single-storey living and substantial outdoor space. The house is chain-free and practical for family life with a double garage, separate workshop and a driveway for up to six cars.

Inside, rooms are spacious and well-proportioned: a triple-aspect living/dining room with patio doors, a sizeable kitchen with room for a table, and four double bedrooms. The property’s 1930s–1940s construction and current finishes mean there is scope for modernisation, improvement and personalised updating.

Key positives include the southerly rear garden, versatile outbuildings and excellent mobile and broadband connectivity. Important considerations: the single family bathroom, dated kitchen fittings, likely lack of wall insulation and higher-than-average council tax; the wider area records higher crime and economic deprivation, which may concern some buyers.

This home will suit buyers seeking space and outdoor privacy in a semi-rural location — families wanting a roomy single-storey house, or purchasers prepared to invest in upgrading to contemporary standards. No forward chain makes it straightforward to move quickly for a buyer ready to carry out improvements.

Property Details

Brochure Descriptions

Image Descriptions

Floorplan Description

Rooms

Textual Property Features

Target Audience

AI Tags

Detected Visual Features

EPC Details

Nearby Schools

Nearest Bars And Restaurants

,,,,}

Nearest General Shops

,,}

Nearest Grocery shops

,,}

Nearest Supermarkets

,,}

Nearest Religious buildings

,,}

Nearest Medical buildings

,,,}

Nearest Airports

}

Nearest Leisure Facilities

,,,,}

Nearest Tourist attractions

,,}

Nearest Train stations

,,,,}

Nearest Bus stations and stops

,,,,}

Nearest Hotels

,,}

Tags

Local Market Stats

Similar Properties

Meta

High Res Images

Compatible Images

Low res Images

Thumbnails

Raw Images

High Res Floorplan Images

Compatible Floorplan Images

Low res Floorplan Images

FloorplanImages Thumbnail

Raw Floorplan Images