Chain free three-bed with huge garden and extension potential in Busbridge.
Quarter-acre mature private garden and patio
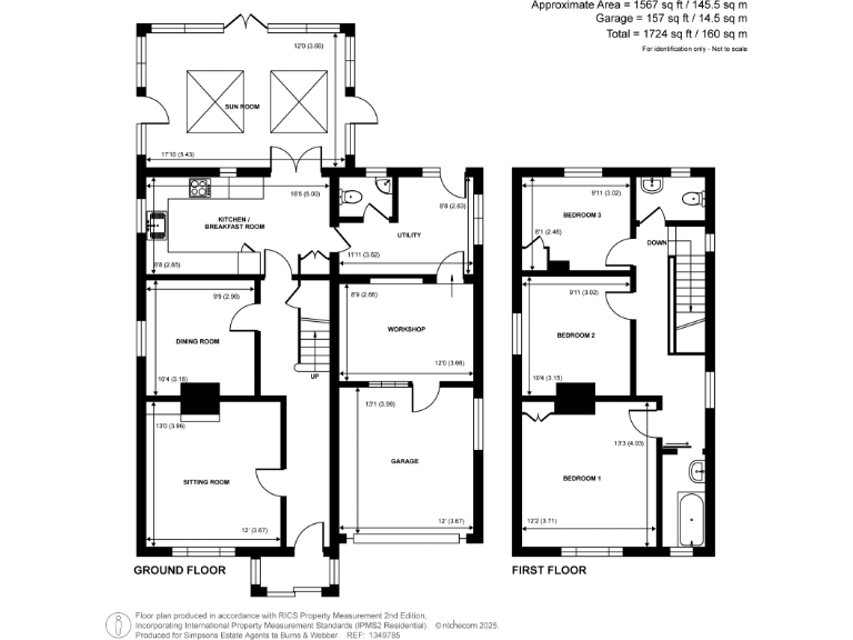
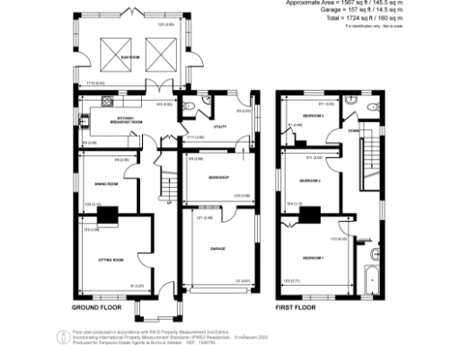
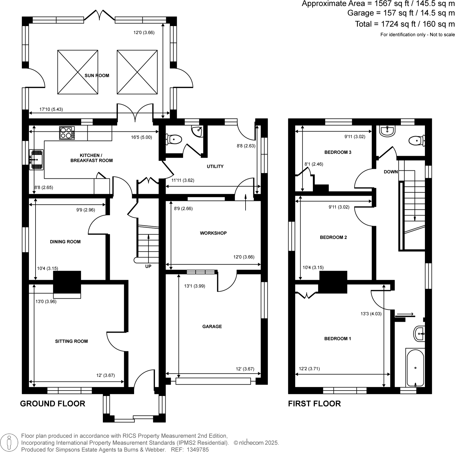
A rare family opportunity in Busbridge, set on a quarter-acre plot with mature, private gardens and well-proportioned living space. The house currently offers three reception rooms including a large conservatory, a kitchen/breakfast room, useful utility and workshop space, plus an integral garage and wide gravel drive with ample parking.
The property is offered chain free and has excellent potential to improve and extend (STPP). It suits buyers seeking a substantial garden and scope to create a modern family home in one of Godalming’s most desirable streets. Local schools, green spaces and the town centre are all within easy reach.
Buyers should note the house needs renovation: updates to finishes, services and insulation are required. The home has only one family bathroom, cavity walls assumed without insulation, and council tax is described as expensive. These are realistic considerations for budgeting works and running costs.
Overall this is a practical, well-located family plot for someone prepared to invest in upgrading. For a buyer wanting space, privacy and extension potential, it offers an excellent blank canvas in a very affluent area.
3 bedroom detached house for sale in Busbridge - Godalming - ***No Onward Chain***, GU7 — £625,000 • 3 bed • 1 bath • 808 ft²
5 bedroom house for sale in Busbridge - Godalming, GU7 — £1,100,000 • 5 bed • 2 bath • 1867 ft²
5 bedroom detached house for sale in Quartermile Road, Godalming, Surrey, GU7 — £1,450,000 • 5 bed • 3 bath • 3143 ft²
5 bedroom detached house for sale in Quartermile Road, Busbridge, Godalming, Surrey, GU7 — £1,595,000 • 5 bed • 3 bath • 3377 ft²
4 bedroom detached house for sale in Summerhouse Close, Busbridge, Godalming, Surrey, GU7 — £1,125,000 • 4 bed • 3 bath • 1862 ft²
4 bedroom detached house for sale in Quartermile Road, Godalming, Surrey, GU7 — £1,250,000 • 4 bed • 2 bath • 2036 ft²






















































































