Spacious conversion project with approved plans near the Solway coast.
Very large barn with 176.7 m² (approx. 1,902 sq ft) footprint
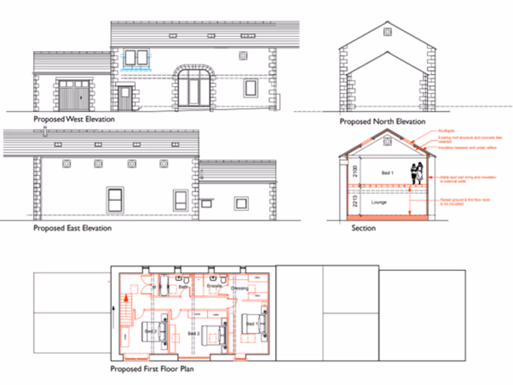
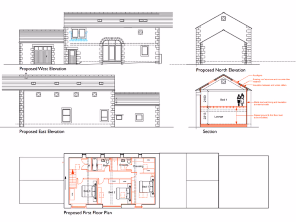
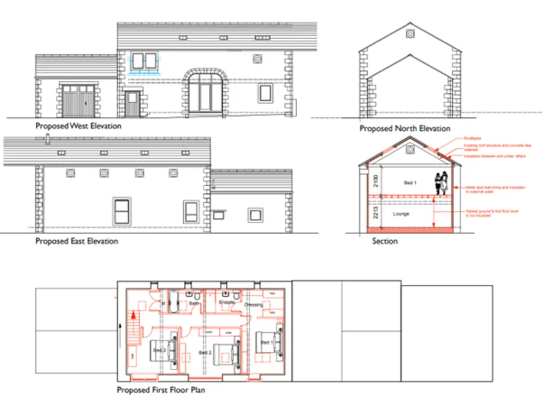
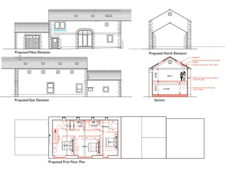
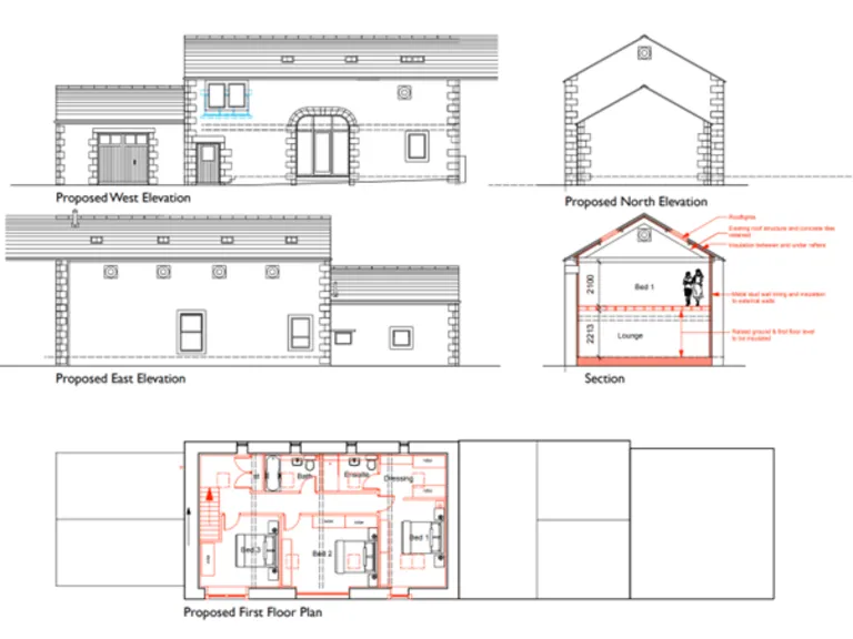
Approved planning application FUL/2023/0233 for three-bedroom conversion
Rustic stone exterior, high ceilings, large rooms and courtyard
Requires full renovation throughout; sold as a project property
High flood risk — flood mitigation will be necessary
Freehold tenure with slate roof and brick/block construction
Off-street parking available close to the building
Average broadband, excellent mobile signal in village
A rare barn conversion opportunity in the seaside village of Allonby, The Barn offers a very large, characterful footprint ready for transformation. Approved plans (see FUL/2023/0233 on Cumberland Council) propose a three-bedroom family home across two floors, retaining high ceilings and generous room proportions ideal for open-plan living and natural light.
This property is best suited to buyers who can undertake renovation and oversee a conversion project. The building retains rustic stone character, slate roof, and large internal volumes, giving scope for flexible layouts, generous living spaces and courtyard landscaping. Off-street parking and village amenities are close by, with Allonby Primary School and coastal walks within easy reach.
Buyers should note material considerations: the property needs renovation throughout and lies in a high flood-risk area. Broadband is average, though mobile signal is excellent. The local area shows signs of deprivation and the wider classification is industrial transitions, which may affect resale timing. Full planning details are available by referencing FUL/2023/0233.
For a family or developer seeking a substantial barn with planning in an Area of Outstanding Natural Beauty setting, this offers clear potential but requires committed investment to complete the conversion and manage flood mitigation works.
4 bedroom house for sale in Archway Barn, Greysouthen, CA13 — £499,950 • 4 bed • 4 bath • 1776 ft²
3 bedroom barn conversion for sale in Skinburness Road, Silloth, Wigton, CA7 4QH, CA7 — £275,000 • 3 bed • 2 bath • 1235 ft²
3 bedroom terraced house for sale in Skinburness Road, Silloth, CA7 — £195,000 • 3 bed • 2 bath • 1313 ft²
2 bedroom farm house for sale in Garfield House, Seaton, CA14 — £320,000 • 2 bed • 1 bath • 1668 ft²
3 bedroom barn conversion for sale in Gilcrux, Wigton, CA7 2QD, CA7 — £350,000 • 3 bed • 2 bath • 1700 ft²
3 bedroom end of terrace house for sale in Mawbray, Maryport, Cumbria, CA15 — £225,000 • 3 bed • 1 bath • 1159 ft²






























































