CH60 9HP - 5 bedroom detached house for sale in Pipers Lane, Heswall,…

View on Property Piper

5 bedroom detached house for sale in Pipers Lane, Heswall, Wirral, CH60

Summary - 20 PIPERS LANE WIRRAL CH60 9HP

5 bed 2 bath Detached

**Standout Features:**
- Breathtaking panoramic estuary views
- Five spacious bedrooms, two modern bathrooms
- Stylish, newly fitted open-plan kitchen/diner
- Detached residence with driveway, garage, and private gardens
- Potential for enhancements with architect drawings commissioned
- Highly desirable location in Lower Heswall

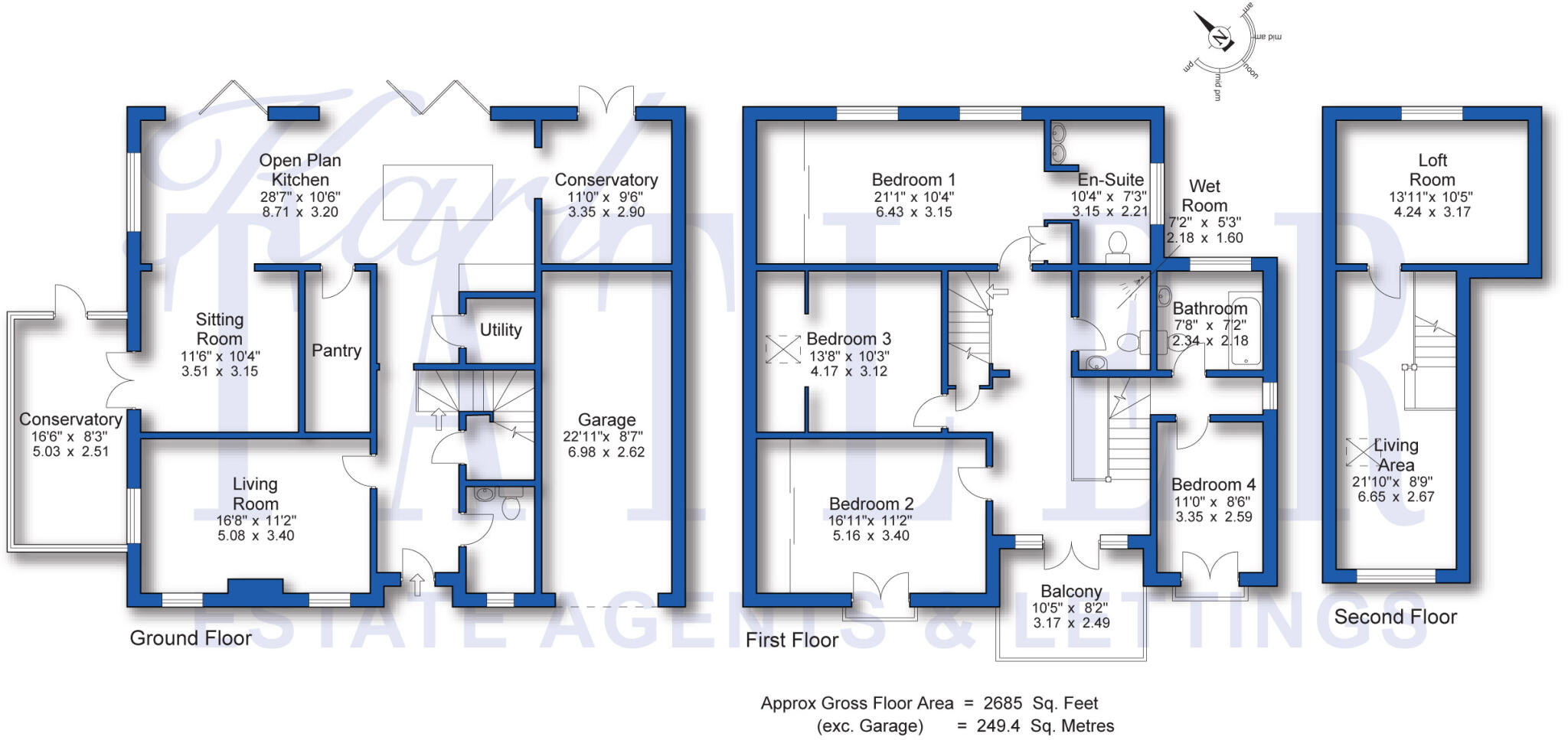
This uniquely designed five-bedroom detached home boasts an impressive 2,685 sq ft of living space, highlighted by stunning panoramic views of the estuary. Nestled in the sought-after Lower Heswall area, the property features a contemporary open-plan kitchen and dining area, seamlessly flowing into several light-filled conservatories and a cozy living room with a modern gas fire. Generous bedrooms, including a master suite with double wash basins, and an additional second-floor loft space offer flexibility for families or guests.

Outside, enjoy manicured gardens and a block-paved driveway leading to a convenient garage, with the beauty of a nearby woodland walk just moments away. The home is chain-free, perfect for a hassle-free transition, and potential buyers will appreciate the architecturally drawn plans that showcase exciting opportunities for enhancements.

This property presents an excellent chance to secure a stylish family home or an investment opportunity in a prestigious, affluent area with good local schools and very low crime rates. Don't miss the chance to view this stunning horizon-facing retreat!

Property Details

Brochure Descriptions

Image Descriptions

Floorplan Description

Rooms

Textual Property Features

Detected Visual Features

EPC Details

Nearby Schools

Nearest Bars And Restaurants

,,,,}

Nearest General Shops

,,}

Nearest Grocery shops

,,}

Nearest Supermarkets

,,}

Nearest Religious buildings

,,}

Nearest Medical buildings

,,,}

Nearest Airports

}

Nearest Leisure Facilities

,,,,}

Nearest Tourist attractions

,,}

Nearest Train stations

,,,,}

Nearest Bus stations and stops

,,,,}

Nearest Hotels

,,}

Tags

Local Market Stats

Similar Properties

Meta

High Res Images

Compatible Images

Low res Images

Thumbnails

Raw Images

High Res Floorplan Images

Compatible Floorplan Images

Low res Floorplan Images

FloorplanImages Thumbnail

Raw Floorplan Images