Ideal family home near parks, schools and Dinton Pastures with conversion potential.
Generous corner plot with patio and lawn areas
Driveway parking and double garage with rear gated access
Flexible layout: living, dining and separate family rooms
Garage conversion potential; planning permission required
Built 1967–75 with timber frame and partial insulation
Double glazing fitted before 2002; replacement may be needed
Opposite a play park and close to Dinton Pastures country park
Excellent local schools nearby; very low local crime
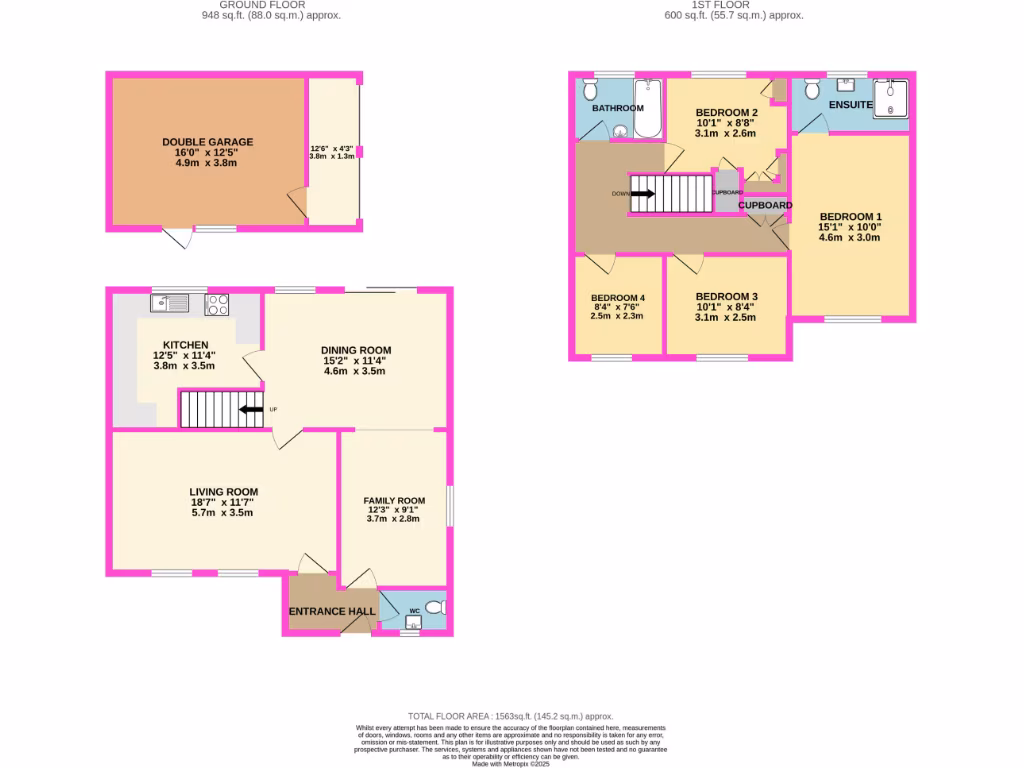
This extended four-bedroom semi sits on a generous corner plot, arranged over two floors and offering flexible family living. Ground-floor layout includes a front living room, large kitchen and separate dining and family rooms that suit daily family life and entertaining. The property is freehold with driveway parking, a double garage with gated rear access, and a south/side-facing garden with patio and lawn areas.
The double garage presents clear potential for conversion into a home office, annex or additional living space, subject to planning permission—not guaranteed. The house was built in the late 1960s/early 1970s with timber-frame walls and partial insulation; upgrading insulation and checking the fabric may be advisable. Double glazing is installed but dates from before 2002 so replacement could be considered to improve thermal performance and noise reduction.
Practical positives for families include proximity to Rivermead, Beechwood and St Dominic Savio primary schools, The Forest School and Waingels secondary schools, plus a play park directly opposite and easy access to Dinton Pastures Country Park. Local services show very low crime, fast broadband and regular bus links into Reading. Overall this is a comfortable suburban home with scope to modernise and add value through sympathetic refurbishment or approved garage conversion.
4 bedroom semi-detached house for sale in Clivedale Road, Woodley, RG5 — £530,000 • 4 bed • 2 bath • 1254 ft²
7 bedroom detached house for sale in Mollison Close, Reading, RG5 — £900,000 • 7 bed • 4 bath • 2536 ft²
4 bedroom detached house for sale in Addington Gardens, Woodley, Reading, Berkshire, RG5 — £705,000 • 4 bed • 2 bath • 1486 ft²
4 bedroom terraced house for sale in Rivermead Road, Woodley, Reading, Berkshire, RG5 — £450,000 • 4 bed • 1 bath • 1097 ft²
3 bedroom semi-detached house for sale in Colemans Moor Road, Woodley, RG5 4DG, RG5 — £480,000 • 3 bed • 1 bath • 1251 ft²
4 bedroom detached house for sale in Mitchell Way, Woodley, RG5 — £625,000 • 4 bed • 2 bath • 1290 ft²


















































































