Chain-free Victorian terrace with south‑west garden and strong central location.
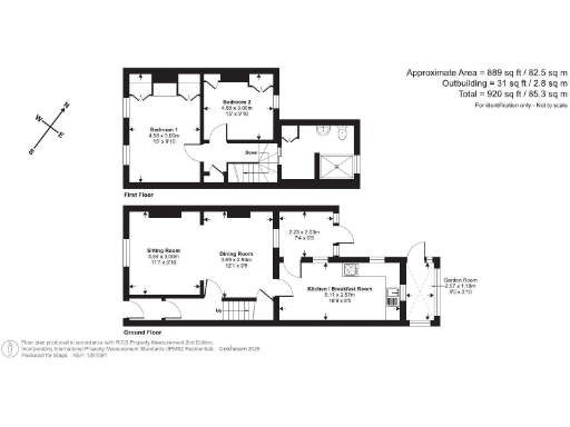
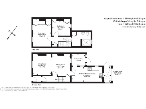
Two double bedrooms and separate sunroom
Set in the heart of Exeter’s city centre, this two-bedroom Victorian mid-terrace offers a rare chain-free purchase and immediate access to shops, stations and university amenities. The house retains period character and benefits from an extended open-plan kitchen/dining area plus a sunny south‑west courtyard garden for afternoon sun.
The property is ripe for modernisation and personalisation — ideal for a first-time buyer or investor seeking a central, characterful home with scope to add value. Two double bedrooms and an additional sunroom provide practical living space across an average-sized footprint (approx. 889–903 sqft). EPC C (69) and mains gas central heating are already in place.
Buyers should note several material points: the house requires updating throughout, the original solid brick walls are likely uninsulated, ceiling heights are modest and décor is dated. On-street permit parking only, and the local area is classed as a cosmopolitan, student neighbourhood which can bring higher footfall and occasional noise. No significant flood risk is recorded.
Overall this is a practical, well‑located period home with straightforward renovation potential and no onward chain — a good opportunity to secure central Exeter living and add value through sympathetic updating.
2 bedroom house for sale in Hoopern Street, Exeter, EX4 — £240,000 • 2 bed • 1 bath • 787 ft²
2 bedroom terraced house for sale in Salisbury Road, Exeter, EX4 — £240,000 • 2 bed • 1 bath • 740 ft²
2 bedroom terraced house for sale in Castle Mount, Exeter, EX4 — £280,000 • 2 bed • 1 bath • 581 ft²
2 bedroom terraced house for sale in May Street, Mount Pleasant, Exeter, Devon, EX4 — £240,000 • 2 bed • 1 bath
2 bedroom terraced house for sale in May Street, Exeter, EX4 — £260,000 • 2 bed • 1 bath • 764 ft²
2 bedroom terraced house for sale in Fords Road, St Thomas, EX2 — £240,000 • 2 bed • 1 bath • 695 ft²














































































