**Standout Features:**
- Grade II listed Georgian property with exceptional character
- Central location in Kimbolton, close to local amenities and well-regarded schools
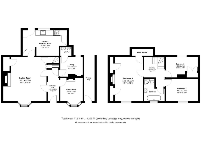
- Spacious interior with three bedrooms, expansive living and family rooms, and a study
- Charming courtyard garden, perfect for outdoor living
- Fast broadband speeds, ideal for remote work or family entertainment
Nestled in the heart of Kimbolton, this stunning Grade II listed Georgian semi-detached home is a unique opportunity for buyers seeking a prestigious residence with historical charm. The property features three comfortable bedrooms and generous living spaces, including a modern rustic living room, a separate family room, and a cozy study—perfect for family life or working from home. The kitchen/breakfast room is ideal for morning gatherings, while the cloakroom adds convenience.
Step outside into the quaint walled courtyard garden, a serene retreat for relaxation and outdoor dining. This inviting home is situated within a low-crime, affluent village atmosphere, offering easy access to local shops, bars, and the independent Kimbolton School with its small class sizes. While the property’s listed status may pose certain renovation challenges, its distinctive features and central location make it a rare find. Potential buyers are encouraged to act swiftly—properties like this don't stay on the market for long!
4 bedroom semi-detached house for sale in Carters Yard, High Street, Kimbolton, PE28 — £535,000 • 4 bed • 2 bath • 1782 ft²
3 bedroom terraced house for sale in East Street, Kimbolton,PE28 — £375,000 • 3 bed • 2 bath • 1429 ft²
4 bedroom semi-detached house for sale in Tollfield, Kimbolton, Huntingdon, PE28 0HP, PE28 — £390,000 • 4 bed • 2 bath • 1272 ft²
2 bedroom end of terrace house for sale in East Street, Kimbolton, Huntingdon, Cambridgeshire, PE28 — £225,000 • 2 bed • 1 bath • 625 ft²
4 bedroom semi-detached house for sale in Aragon Place, Kimbolton, Huntingdon, PE28 0JD, PE28 — £400,000 • 4 bed • 2 bath • 1447 ft²
2 bedroom terraced house for sale in Constables Leys, Kimbolton, Cambridgeshire, PE28 — £239,995 • 2 bed • 1 bath • 636 ft²






































































