Design-led apartment with concierge and fast links to central London.
Private balcony with Portobello Road views
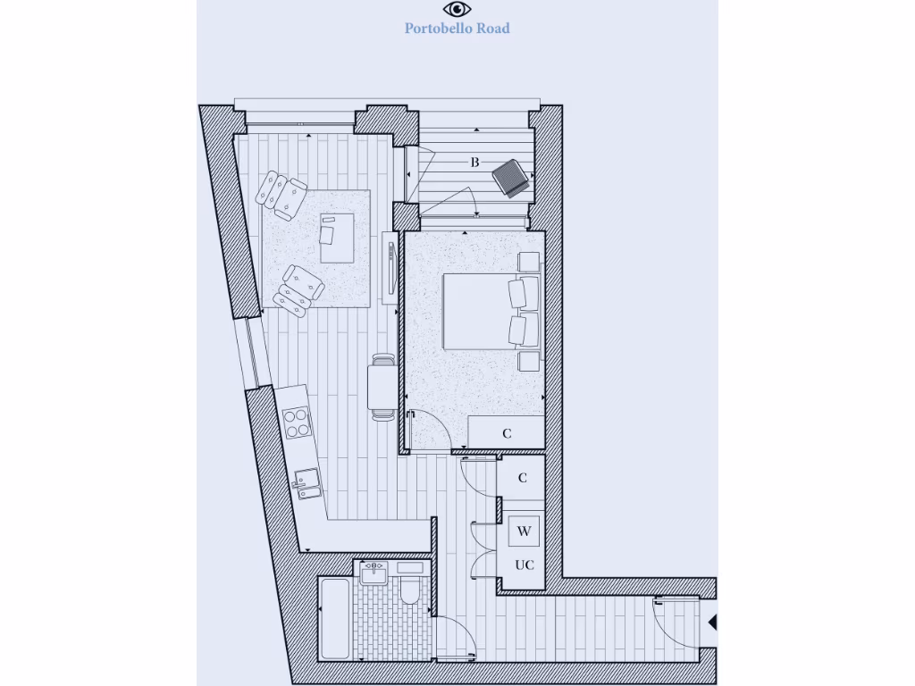
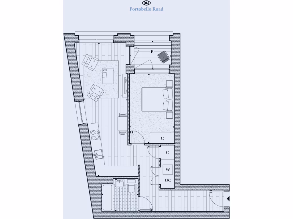
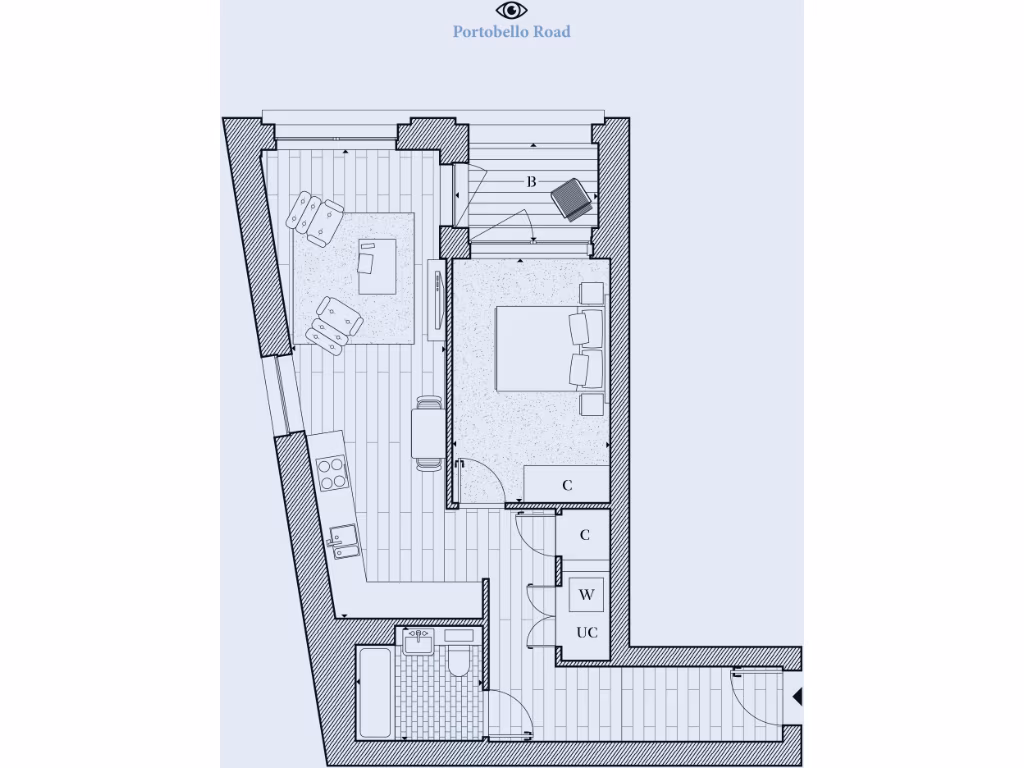
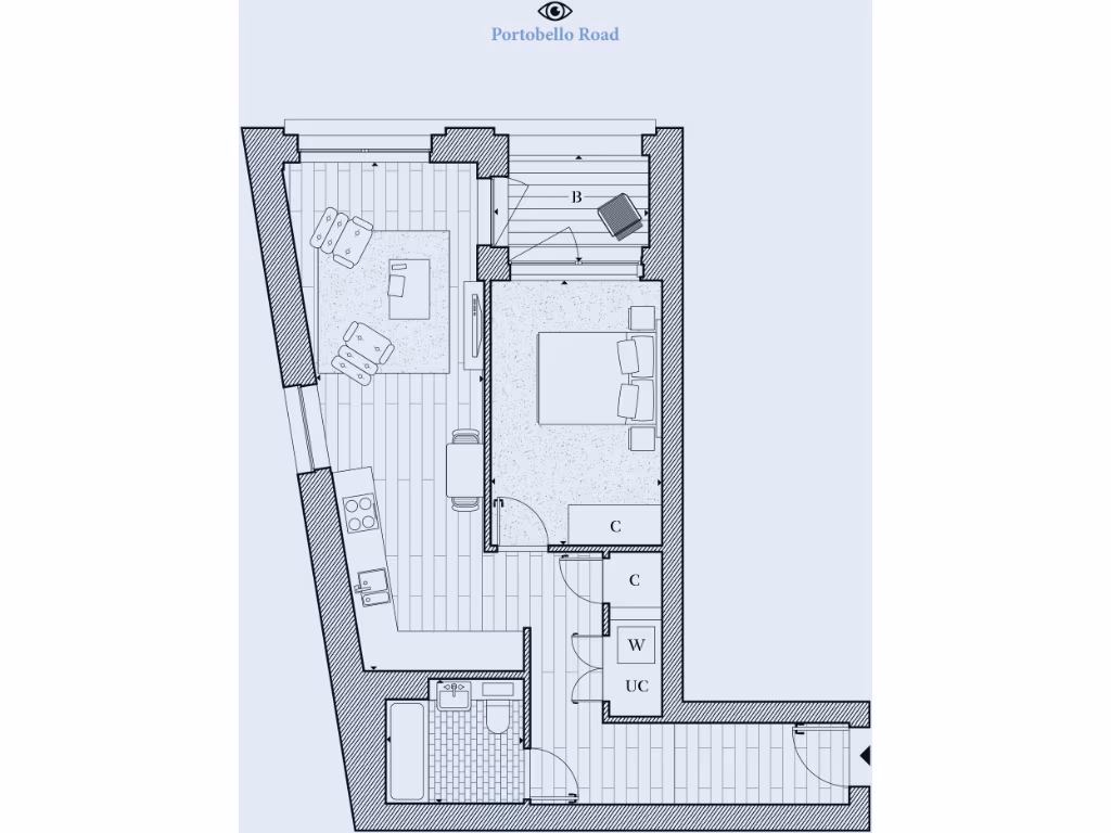
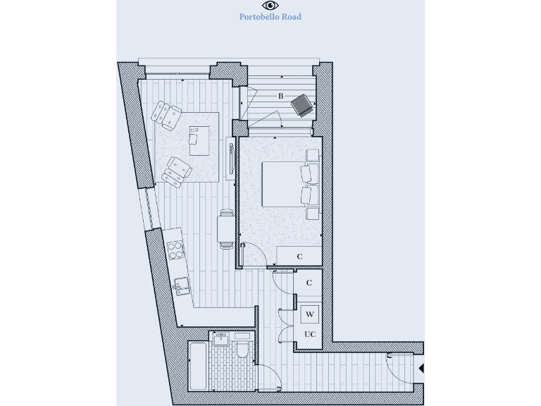
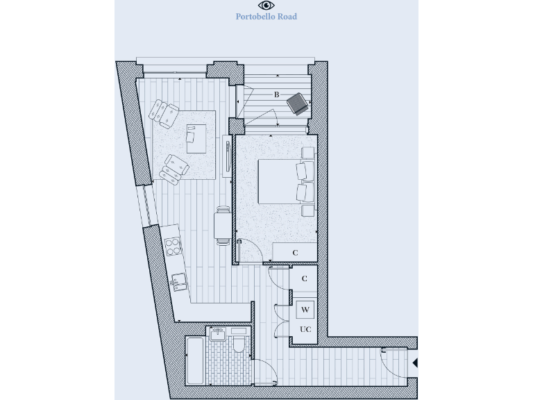
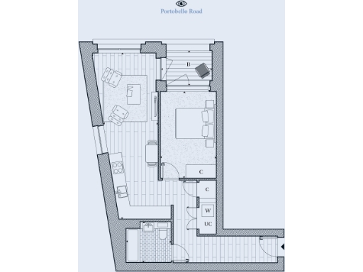
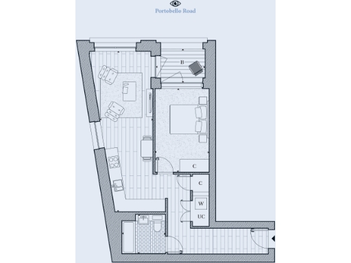
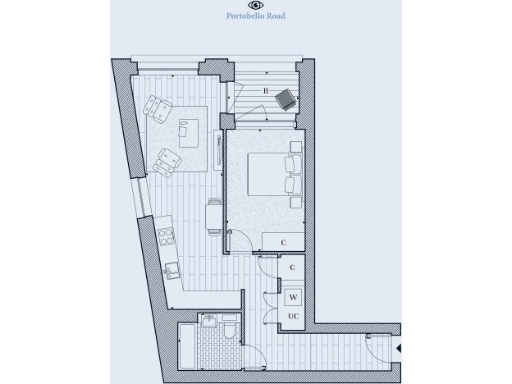
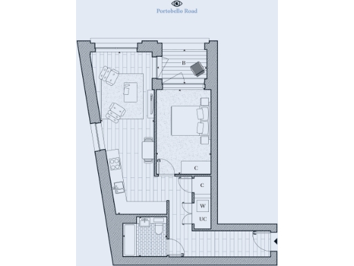
Set within The Auria’s architecturally distinctive Portobello Edition, this one-bedroom apartment combines contemporary finish with private outdoor space and concierge service. The open-plan living and kitchen area flows onto a balcony with views over Portobello Road, giving a notional village feel in a central Zone 2 location designed by Conran and Partners.
At about 566 sq ft, the apartment is well-proportioned for a single occupant or couple, with modern integrated kitchen appliances, wood flooring and a clean linear layout. Transport links are strong: Ladbroke Grove and Westbourne Park stations are within easy walking distance and the Elizabeth Line offers fast connections into central London and Heathrow.
Buyers should note this is leasehold and part of a new development with an average service charge of £2,264. The wider area scores highly for amenities and culture, but local measures show very high deprivation levels and average crime rates — factors to consider alongside the development’s benefits.
Overall this flat suits a buyer seeking a design-led, low-maintenance central London home with concierge and outdoor space. It also offers straightforward rental appeal, though purchasers should factor in running costs and tenure when comparing long-term value.
1 bedroom flat for sale in The Auria, Portobello Road, London, W10 5NN, W10 — £625,000 • 1 bed • 1 bath • 555 ft²
1 bedroom flat for sale in Portobello Road, London, W10 — £695,000 • 1 bed • 1 bath • 538 ft²
1 bedroom apartment for sale in Portobello Rd, Notting Hill, W10 — £720,000 • 1 bed • 1 bath • 563 ft²
1 bedroom apartment for sale in The Auria, Portobello Road, Notting Hill, London, W10 — £610,000 • 1 bed • 1 bath • 565 ft²
1 bedroom apartment for sale in The Auria, Portobello Road, Notting Hill, London, W10 — £690,000 • 1 bed • 1 bath • 555 ft²
1 bedroom apartment for sale in The Auria, Portobello Road, Notting Hill, London, W10 — £697,500 • 1 bed • 1 bath • 555 ft²


















































































































































































