Spacious modern house with landscaped garden and double garage on generous plot.
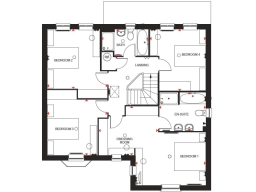
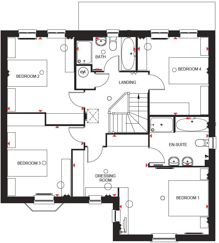
- Four double bedrooms including master with dressing area and en suite
- Large living/dining kitchen with doors to private landscaped garden
- Integral double garage plus driveway for multiple cars
- Energy efficient recent construction, ready to occupy
- Close to good primary and secondary schools and commuter routes
- Very low local crime and miles of Cheshire countryside nearby
- Fast broadband but average mobile signal in area
- Above-average council tax expense
Set on a generous plot within an exclusive Somerford development, this four-double-bedroom detached house is arranged for comfortable family living. The home offers two reception rooms plus a large living/dining kitchen that opens onto private landscaped rear gardens, providing easy indoor–outdoor flow for family life and entertaining.
Practical features include a utility room, guest WC, integral double garage and driveway with multiple parking spaces. The master bedroom includes a dressing area and a luxury en suite; three further double bedrooms share a well-proportioned family bathroom. The property is energy efficient and ready to occupy, minimising immediate refurbishment needs.
Location is a strong selling point: very low local crime, good schools nearby, quick access to the A34 and M6 for commuters, and miles of Cheshire countryside on the doorstep. Notable negatives are an above-average council tax band and only average mobile signal strength; broadband speeds are reported fast. Overall this is a substantial, modern family home in an affluent, semi-rural setting.
4 bedroom detached house for sale in Dalebrook Road, Somerford, CW12 — £565,000 • 4 bed • 2 bath • 1820 ft²
5 bedroom detached house for sale in Field View Road, Congleton, CW12 — £499,950 • 5 bed • 2 bath • 1551 ft²
5 bedroom detached house for sale in Loachbrook Farm Way, Congleton, CW12 — £495,000 • 5 bed • 2 bath • 1600 ft²
4 bedroom detached house for sale in Thistle Way, Congleton, CW12 — £425,000 • 4 bed • 3 bath • 853 ft²
4 bedroom detached house for sale in Velvet Way, Somerford, Congleton, CW12 — £565,000 • 4 bed • 3 bath • 1658 ft²
4 bedroom detached house for sale in Bradshaw Drive, Congleton, CW12 — £360,000 • 4 bed • 2 bath • 1296 ft²


















































































































