Three-bedroom end-terrace in sought-after Scantabout with large driveway and garden.
Thornden School catchment — popular with families
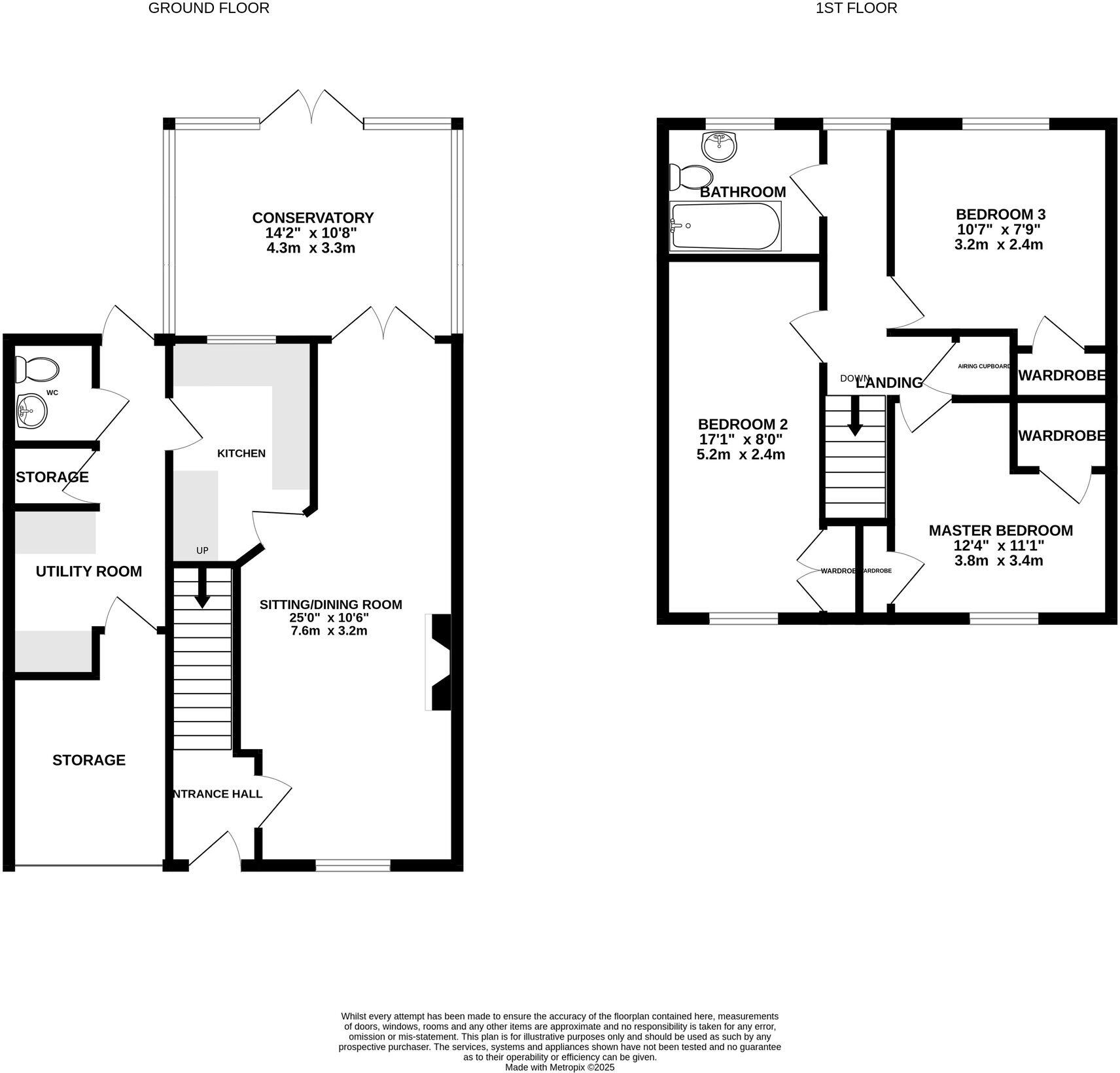
This three-bedroom end-terrace on Pantheon Road offers practical family living in Scantabout, within the sought-after Thornden School catchment. The ground floor flows from a 25ft lounge/dining room into a bright conservatory, creating generous communal space for everyday life and entertaining. A useful utility room, cloakroom and converted garage storage add practicality.
Outside there is a large driveway for multiple cars, a pleasant front garden and an enclosed rear garden with patio and shed — rare parking and outdoor space for the area. The property is freehold, gas-heated with double glazing and holds an EPC rating of C, reflecting reasonable energy performance.
Internally the house is well presented with fitted wardrobes in the bedrooms and a refitted family bathroom. The layout and finishes suit a growing family seeking good local schools, convenient road and rail links, and a comfortable home to personalise.
Buyers should note the house is relatively small at approximately 771 sq ft and has just one family bathroom, which may feel tight for larger households. While modern and well-maintained, some buyers may want to update cosmetic elements over time to match personal taste.
3 bedroom end of terrace house for sale in Porteous Crescent, Chandler's Ford, Eastleigh, Hampshire, SO53 — £320,000 • 3 bed • 1 bath • 1092 ft²
4 bedroom detached house for sale in Pantheon Road, Scantabout, Chandler's Ford, SO53 2PD, SO53 — £595,000 • 4 bed • 2 bath • 1345 ft²
3 bedroom house for sale in Pantheon Road, Chandler's Ford, Eastleigh, SO53 — £395,000 • 3 bed • 1 bath • 1040 ft²
3 bedroom terraced house for sale in Alexandra Road, Chandler's Ford, Eastleigh, SO53 — £389,950 • 3 bed • 1 bath • 1098 ft²
3 bedroom end of terrace house for sale in Barn Piece, Knightwood Park, Chandler's Ford, SO53 4HP., SO53 — £375,000 • 3 bed • 1 bath • 700 ft²
3 bedroom detached house for sale in Pantheon Road, Scantabout, Chandler's Ford, SO53 — £435,000 • 3 bed • 1 bath • 993 ft²






















































