Well-located near Streatham Common with strong transport and schools.
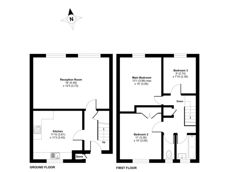
Three double bedrooms across split-level layout
This split-level three-bedroom flat offers practical family living over two floors, with three double bedrooms and a generous eat-in kitchen for everyday meals or social cooking. The layout gives clear separation between sleeping and living spaces, useful for families or professionals sharing work-from-home routines.
Set just off Streatham High Road and a short walk from Streatham Common, the location blends green space with shops, cafés and strong transport links. Local schools include two outstanding/Good rated primaries and several Good secondary options, making the area suitable for families seeking convenient schooling.
Important considerations are factual: the property is leasehold with 88 years remaining and an average service charge of £1,440, and the overall internal size is described as small for a three-bedroom home (approx. 664 sq ft). The building dates to the mid-20th century, has solid brick walls likely without insulation, and double glazing was installed before 2002, so buyers should allow for potential energy-efficiency upgrades.
This flat will suit buyers wanting space in a well-connected, family-oriented neighbourhood who are comfortable with a mid-century building that may benefit from modernisation. It also presents buy-to-let potential given the established renting-families local profile and strong transport links.
3 bedroom flat for sale in Buckleigh Road, Streatham, SW16 — £525,000 • 3 bed • 2 bath • 903 ft²
3 bedroom flat for sale in Mount Nod Road, Streatham, London, SW16 — £550,000 • 3 bed • 2 bath • 1113 ft²
3 bedroom ground floor flat for sale in 69 Hopton Road, London, SW16 — £595,000 • 3 bed • 2 bath • 1130 ft²
1 bedroom apartment for sale in Stanthorpe Road, London, SW16 — £285,000 • 1 bed • 1 bath • 624 ft²
2 bedroom flat for sale in Tankerville Road, Streatham, London, SW16 — £450,000 • 2 bed • 1 bath • 656 ft²
3 bedroom apartment for sale in Leigham Court Road, LONDON, SW16 — £450,000 • 3 bed • 1 bath • 3283 ft²






















































