Ground-floor, patio and parking opposite Littlehampton seafront — chain free.
South-facing lounge with private patio directly onto seafront
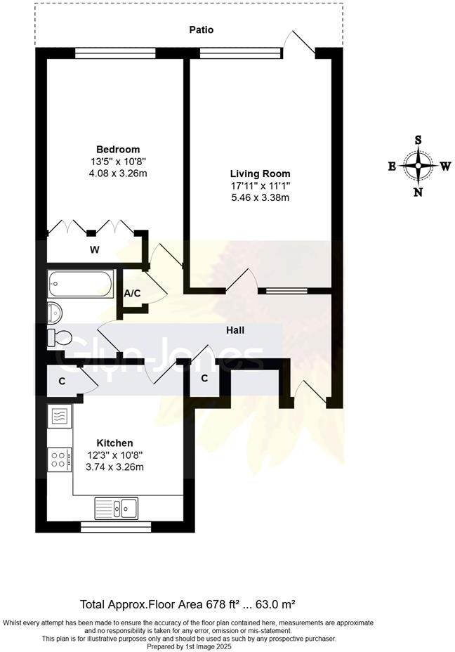
A ground-floor seafront apartment offering a rare combination of patio access, allocated parking and a long lease. The bright south-facing lounge opens directly to a private patio, ideal for morning sun and easy seaside access. The well-proportioned kitchen/breakfast room and double bedroom with built-in wardrobes make efficient use of the 678 sq ft footprint.
This is a practical choice for first-time buyers or investors seeking coastal proximity without a long chain. The lease is effectively long-term (around 950 years) and the property is offered chain free, simplifying purchase. Energy performance is respectable (EER C) and the flat benefits from double glazing.
Buyers should note several material points: maintenance charges average £225 pcm (c. £2,700/year), and local records flag above-average crime and a medium flooding risk. Broadband speeds are slow in the area, and there is contradictory information on heating: marketing states gas-fired central heating while other records list electric storage heaters — this must be confirmed by your solicitor. The building exterior and communal areas show mid-20th-century styling and will need ongoing upkeep.
Overall this is a straightforward, well-located seafront apartment that suits someone who prioritises coastal living and convenience to town and rail links, and who accepts modest service charges and local area challenges.
1 bedroom apartment for sale in South Terrace, Littlehampton, BN17 — £145,000 • 1 bed • 1 bath • 655 ft²
1 bedroom apartment for sale in South Terrace, Littlehampton, BN17 — £130,000 • 1 bed • 1 bath • 428 ft²
1 bedroom apartment for sale in South Terrace, Littlehampton, West Sussex, BN17 — £150,000 • 1 bed • 1 bath • 323 ft²
2 bedroom apartment for sale in Green Court, St. Catherines Road, Littlehampton, BN17 — £200,000 • 2 bed • 1 bath • 700 ft²
1 bedroom flat for sale in St. Catherines Road, Littlehampton, BN17 — £135,000 • 1 bed • 1 bath • 603 ft²
2 bedroom apartment for sale in Terminus Road, Littlehampton, BN17 — £185,000 • 2 bed • 1 bath • 993 ft²










































































