**Standout Features:**
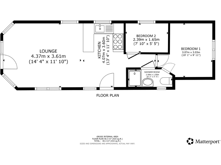
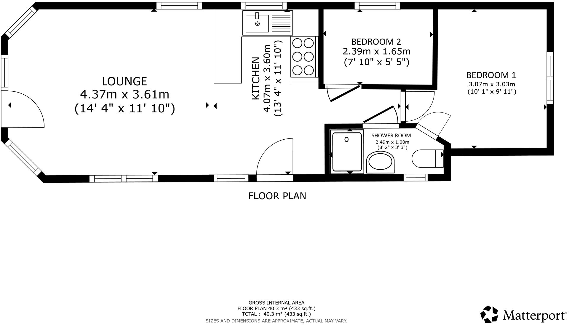
- Modern two-bedroom chalet with stunning views over Loch Long and the Clyde Estuary.
- Open plan lounge/dining area with patio doors leading to a spacious deck.
- High specification kitchen with modern appliances.
- Jack and Jill bathroom with walk-in shower.
- Brand new boiler with a 5-year warranty.
- Off-street parking and multiple included storage sheds.
- Affordable site fees and low Council Tax Band A.
**Summary:**
Discover the perfect coastal retreat in this modern two-bedroom chalet located within the serene Auchengower Park, boasting breathtaking views over Loch Long. Ideal for those seeking a low-maintenance lifestyle, this home features a bright, open-plan layout accented by a well-equipped kitchen and a welcoming lounge/dining area that opens to a private deck—perfect for unwinding while soaking in the stunning scenery.
The master bedroom offers access to a stylish Jack and Jill bathroom, while a second bedroom provides versatility for guests or a home office. Recent upgrades include a brand new boiler with a five-year warranty, ensuring peace of mind.
With ample parking and included outdoor storage sheds, this charming property promises comfort and convenience. Its tranquil location in the picturesque village of Cove offers a great escape from city life, all while being easily reachable from Helensburgh and other amenities. Whether you're considering it as a full-time residence, holiday getaway, or an investment opportunity, this chalet at £90,000 presents a unique chance. Secure your slice of coastal living now—this gem won't last long!
3 bedroom property for sale in 4 Mansion View, Auchengower Park, Cove, G84 0NX, G84 — £69,500 • 3 bed • 2 bath • 425 ft²
2 bedroom park home for sale in Holly Twirl, Cove, G84 — £79,000 • 2 bed • 1 bath • 645 ft²
2 bedroom property for sale in 5 Holly Twirl, Shore Road, Cove, G84 0NX, G84 — £65,000 • 2 bed • 2 bath • 444 ft²
2 bedroom park home for sale in Laurel Lane, Cove, G84 — £79,500 • 2 bed • 2 bath
2 bedroom park home for sale in Loch Eck Country Lodges, PA23 — £155,000 • 2 bed • 2 bath • 800 ft²
2 bedroom park home for sale in Loch Eck Caravan Park, PA23 — £59,995 • 2 bed • 2 bath • 348 ft²














































































