Modern, light-filled living with two en-suites and garage parking.
Four-bedroom detached new build, 1,292 sq ft
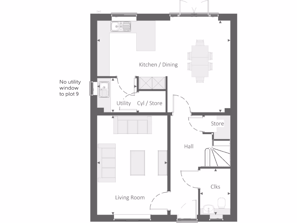
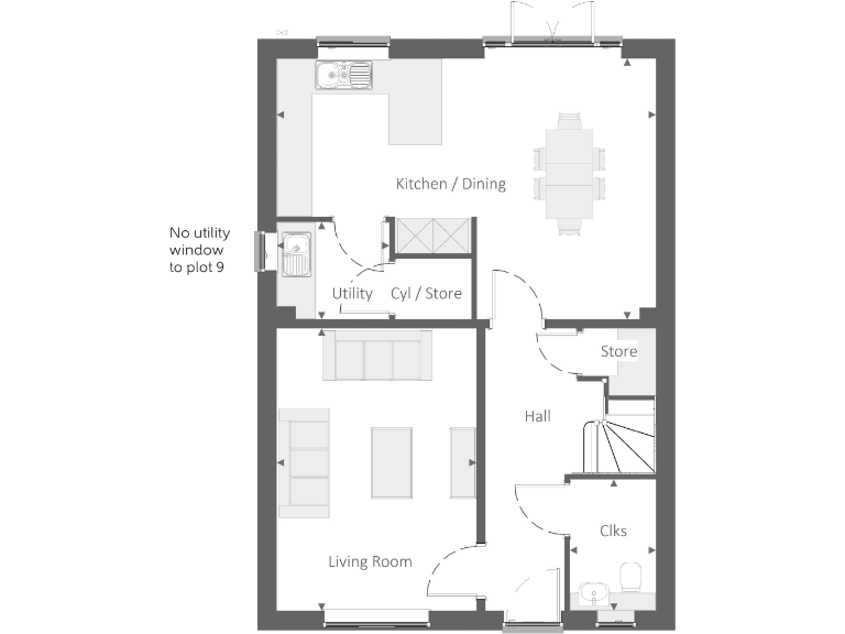
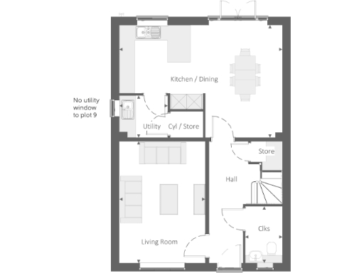
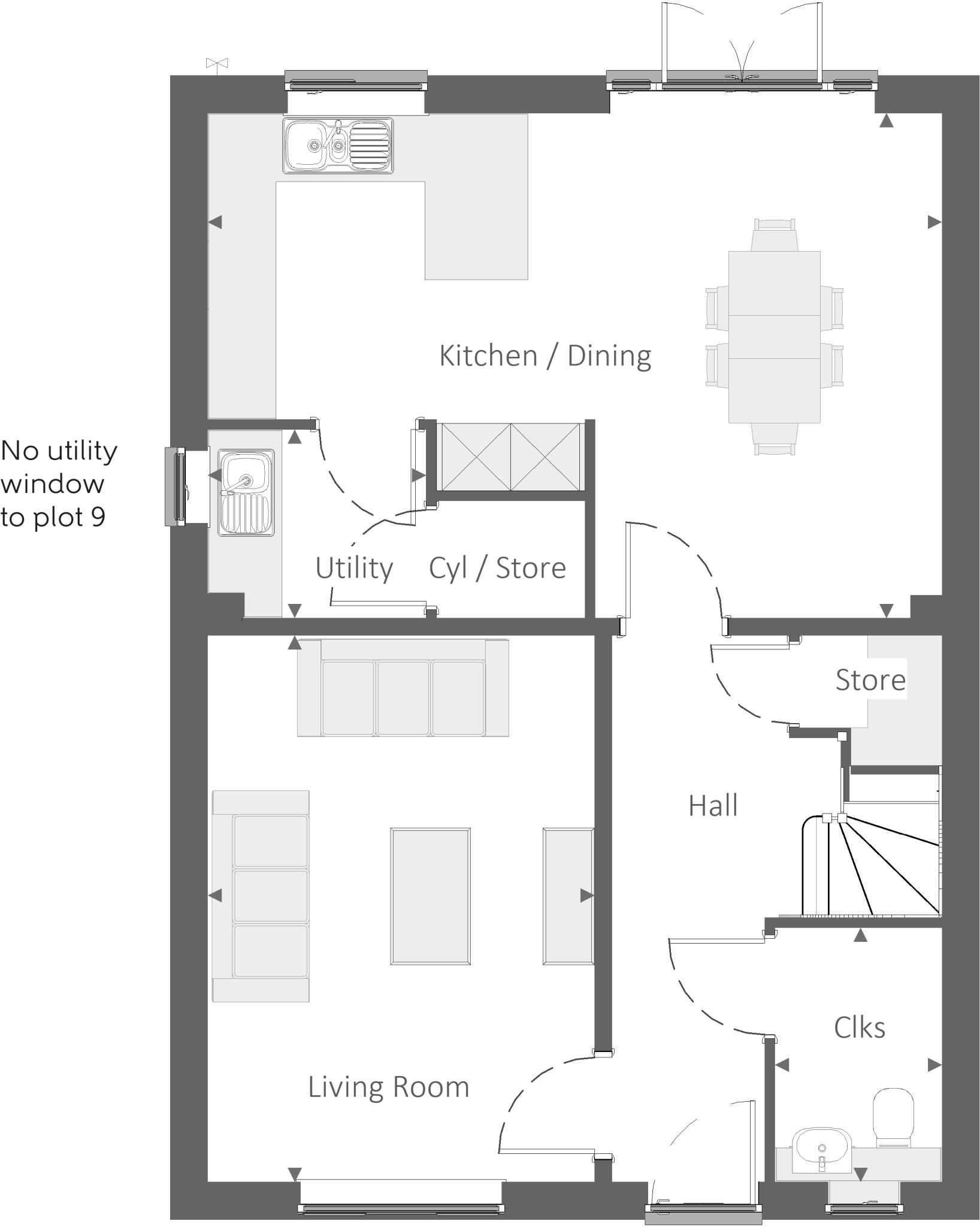
This four-bedroom detached home (The Reedmaker — Plot 9) suits growing families needing flexible living space. The ground floor centres on a light-filled open-plan kitchen and dining area with a central island and French doors to the rear garden, plus a separate living room, utility and cloakroom. Two double bedrooms both include en-suite shower rooms, with two further bedrooms and a family bathroom upstairs.
As a new build the property benefits from a 10-year NHBC Buildmark policy and contemporary fittings throughout, set within the Maplewood Grove development on the edge of Great Dunmow. The layout offers practical storage with cupboards in the dining area and under-stairs, plus a garage and two driveway spaces for parking. The location gives good road links (A120) for commuters and easy access to local schools and green open spaces.
Buyers should note the small plot size and that gardens are modest for a detached house. The development sits close to a major arterial road which may require acoustic or landscaping mitigation for some plots. Recorded crime levels are above average in the area. An annual estate management charge applies (£471.19) and council tax band is to be confirmed.
Overall this is a contemporary family-orientated new build offering modern, low-maintenance living and warranty-backed reassurance, best suited to families and commuters who prioritise layout, specification and road connectivity over large private grounds.
4 bedroom detached house for sale in Woodside Way,
Great Dunmow,
Essex,
CM64DD
, CM6 — £599,995 • 4 bed • 1 bath • 1374 ft²
3 bedroom detached house for sale in Woodside Way,
Great Dunmow,
Essex,
CM64DD
, CM6 — £459,995 • 3 bed • 1 bath • 1037 ft²
3 bedroom semi-detached house for sale in Woodside Way,
Great Dunmow,
Essex,
CM64DD
, CM6 — £489,995 • 3 bed • 1 bath • 1182 ft²
2 bedroom terraced house for sale in Woodside Way,
Great Dunmow,
Essex,
CM64DD
, CM6 — £374,995 • 2 bed • 1 bath • 789 ft²
4 bedroom detached house for sale in Woodside Way,
Dunmow Grange,
CM6 4DD, CM6 — £594,995 • 4 bed • 1 bath • 1214 ft²
3 bedroom semi-detached house for sale in Woodside Way,
Great Dunmow,
Essex,
CM64DD
, CM6 — £469,995 • 3 bed • 1 bath • 1036 ft²






























































