Ideal family home close to schools and transport links.
Exceptionally spacious three-bedroom mid-terrace, approx 946 sqft
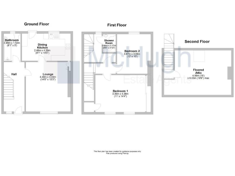
This mid-20th-century mid-terrace villa offers exceptionally spacious family accommodation over three levels. A generous lounge with large front window leads to a stylish dining kitchen fitted with shaker units and integrated appliances, with direct access to a low-maintenance, sun-facing rear garden. The property is gas-combi heated, double glazed and presented in move-in condition.
Upstairs provides two large double bedrooms and a well-appointed shower room; a large floored attic currently arranged as a bedroom/study adds flexible living space. Practical details include under-stair storage, built-in bedroom cupboards and a timber garden store. On-street parking is available and the tidy front garden creates a pleasant, sheltered aspect on a tree-lined street.
The location suits families: nurseries, primary and secondary schools are within walking distance, and the town centre and train station are nearby. Note the wider area is classified as very deprived with a prevalence of rented terraces, though the immediate locality is described as comfortable. The property is freehold, approximately 946 sq ft, and council tax is affordable.
This home will suit buyers seeking roomy, well-maintained accommodation with low garden upkeep and good transport links. Potential buyers should consider local area deprivation and the on-street parking arrangement when assessing suitability.
3 bedroom terraced house for sale in Longay Street, Glasgow, G22 7NZ, G22 — £169,999 • 3 bed • 2 bath • 746 ft²
3 bedroom terraced house for sale in Millerbank Street, Clydebank, West Dunbartonshire, G81 — £210,000 • 3 bed • 1 bath • 538 ft²
4 bedroom terraced house for sale in Montrose Street, Clydebank, G81 — £185,000 • 4 bed • 2 bath • 951 ft²
3 bedroom house for sale in Cowdenhill Road, Knightswood, Glasgow, G13 2RF, G13 — £130,000 • 3 bed • 1 bath • 883 ft²
4 bedroom terraced house for sale in Kilbowie Road, Clydebank, G81 — £189,000 • 4 bed • 2 bath • 870 ft²
3 bedroom terraced house for sale in Nether Auldhouse Road, Glasgow, Glasgow City, G43 — £350,000 • 3 bed • 1 bath • 1364 ft²














































































