Recently renovated three-bedroom end-terrace with garden, parking and redevelopment potential in Kirriemuir..
Recently renovated throughout, ready to occupy
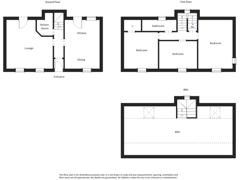
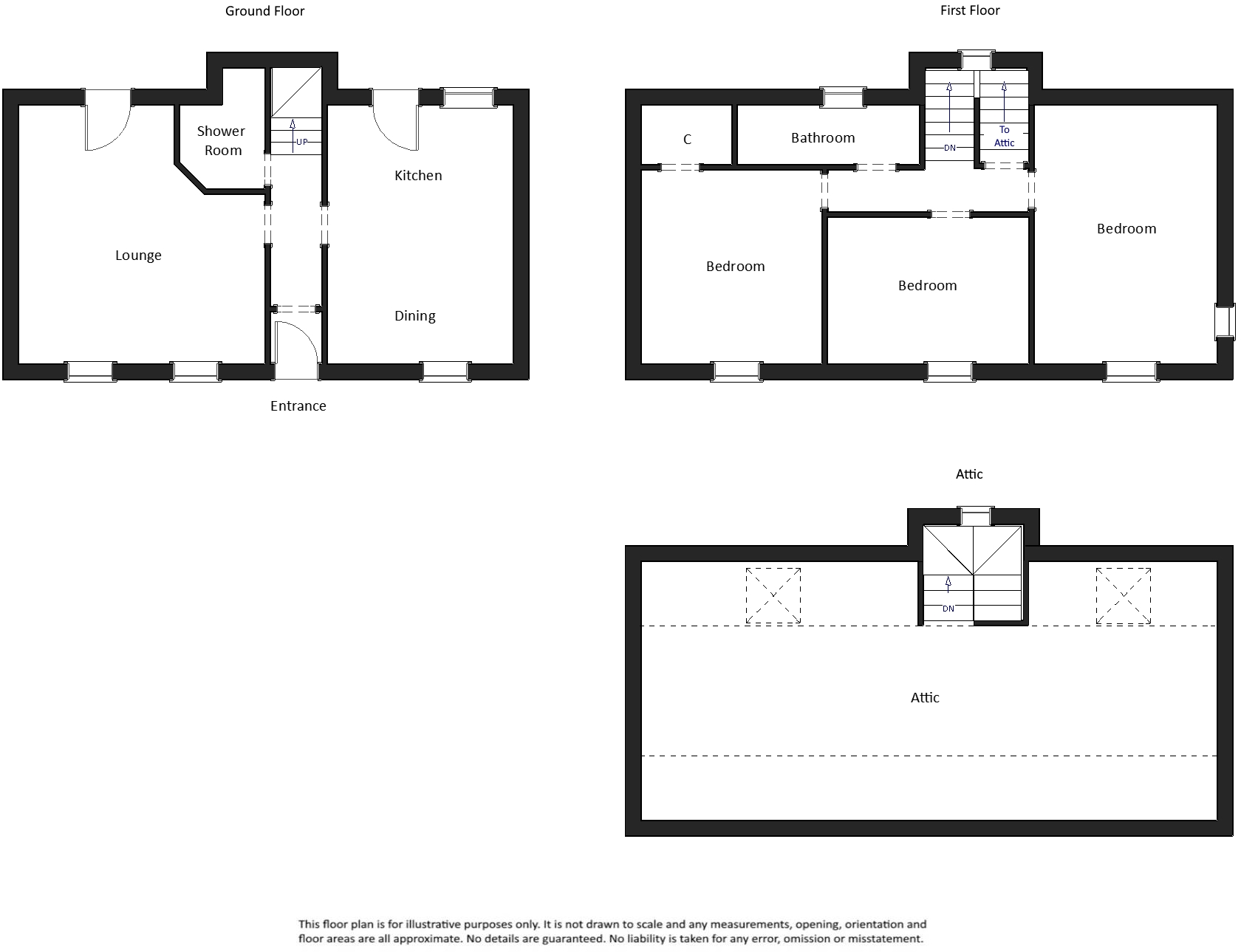
A solid period end-terrace in central Kirriemuir, recently renovated and ready for immediate occupation. The ground floor offers an entrance vestibule, lounge, dining kitchen and a shower room with WC, while three bedrooms and a bathroom are arranged on the first floor. The property benefits from off-street parking and extensive rear garden areas, useful for family outdoor use or garden projects.
Beyond the current layout there is clear scope to add value: the seller holds drawings for a further redevelopment that would create two additional bedrooms with ensuites. Fast broadband and town-centre location make the house suitable for home working or rental use. The stone-built, traditional construction gives character and sensible long-term durability.
Buyers should note the wider area is classified as very deprived, which may affect long-term capital growth and resale timing. Mobile signal is average, though broadband speeds are fast. Any redevelopment would need planning consent and further investment despite the existing drawings. Overall this property suits buyers seeking a turnkey period home with immediate income or conversion potential.
3 bedroom detached house for sale in Marywell Brae, Kirriemuir, DD8 — £140,000 • 3 bed • 1 bath
3 bedroom semi-detached house for sale in Woodend Drive, Northmuir, Kirriemuir, DD8 — £180,000 • 3 bed • 1 bath • 892 ft²
2 bedroom detached house for sale in Marywell Brae, Kirriemuir, Angus, DD8 — £105,000 • 2 bed • 1 bath • 1033 ft²
4 bedroom terraced house for sale in North Street, Forfar, Angus, DD8 — £90,000 • 4 bed • 2 bath
2 bedroom cottage for sale in Kilnbank Lane, Kirriemuir, DD8 — £159,000 • 2 bed • 2 bath • 560 ft²
2 bedroom cottage for sale in 20 Glamis Road, Kirriemuir, DD8 5BU, DD8 — £108,000 • 2 bed • 1 bath • 721 ft²


























































































