Freehold Victorian mid-terrace with loft conversion and en suite
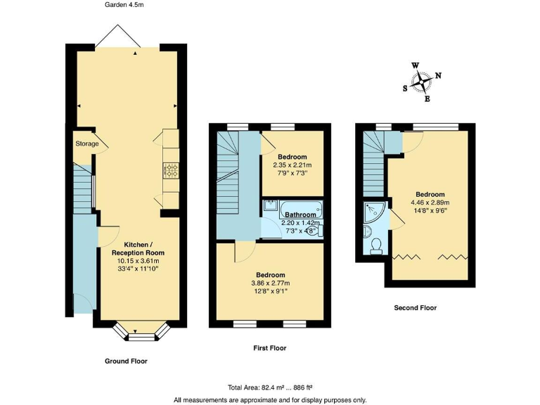
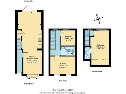
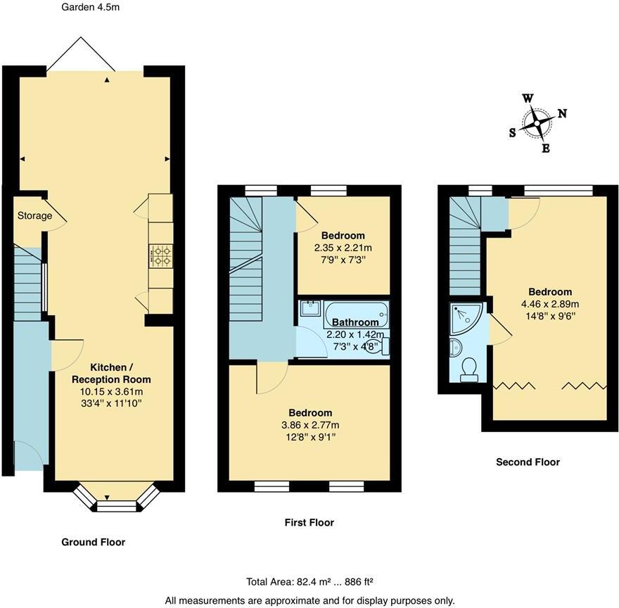
A smartly extended Victorian terrace in Leyton Village, this three-bedroom freehold blends period character with contemporary living. The loft conversion provides a bright principal bedroom with a sleek en suite, while the open-plan kitchen/reception benefits from oak herringbone floors, exposed brick and bifold doors that connect to a west-facing, low‑maintenance garden.
Well placed for Francis Road’s cafés, shops and weekend market, the house is an easy walk to Leyton Underground (Central line) and Leyton Midland (Overground), making central London commutes straightforward. At about 860–886 sq ft the layout is compact but efficiently arranged for young families, first‑time buyers or investors seeking a well-located terrace in a lively neighbourhood.
Practical points are clear: the building is a traditional solid-brick terrace (pre-1900) with double glazing installed after 2002 and gas-fired central heating. The plot is small, internal room widths are typical of period terraces, and the property will suit buyers who prioritise location and character over expansive living space. There is assumed lack of wall insulation in the original solid walls if improved thermal performance is required.
Notable local factors: excellent mobile signal and fast broadband support homeworking and streaming, nearby schools include an Outstanding primary, and plentiful green space is within cycling distance. Be aware the immediate area records very high crime levels, so potential buyers should factor neighbourhood safety into their decision and inspection plans.



















































































































