Spacious plot with high-spec open-plan living and ample parking.
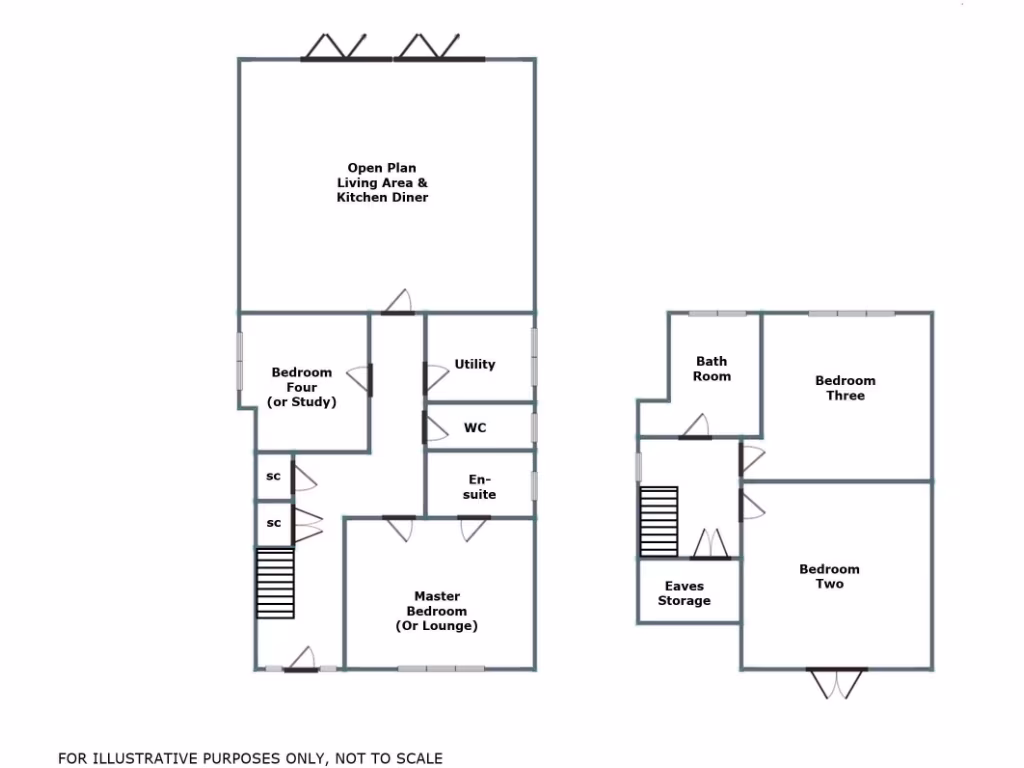
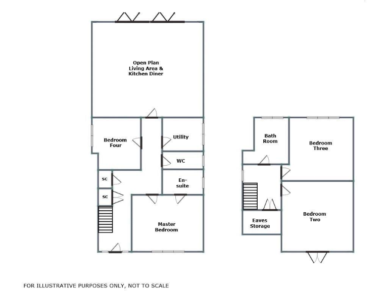
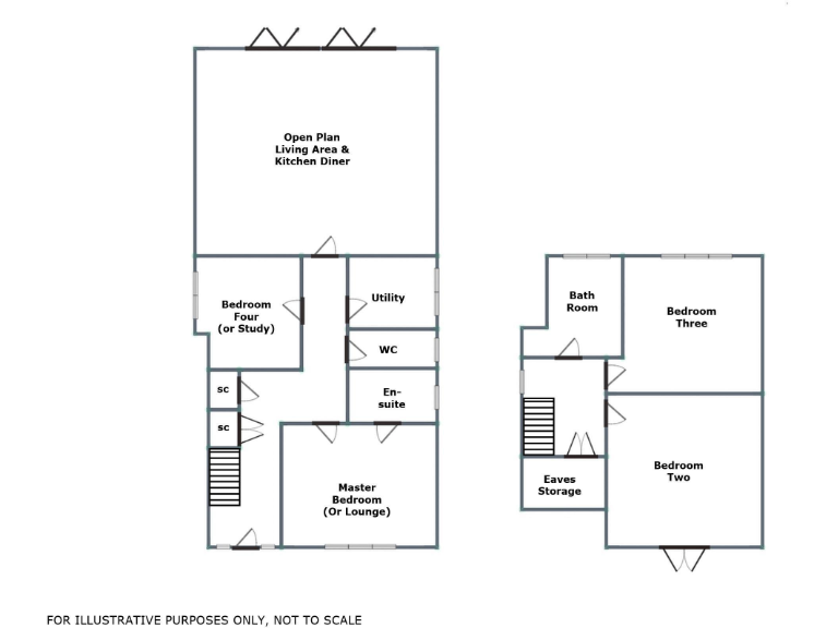
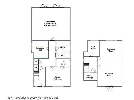
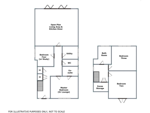
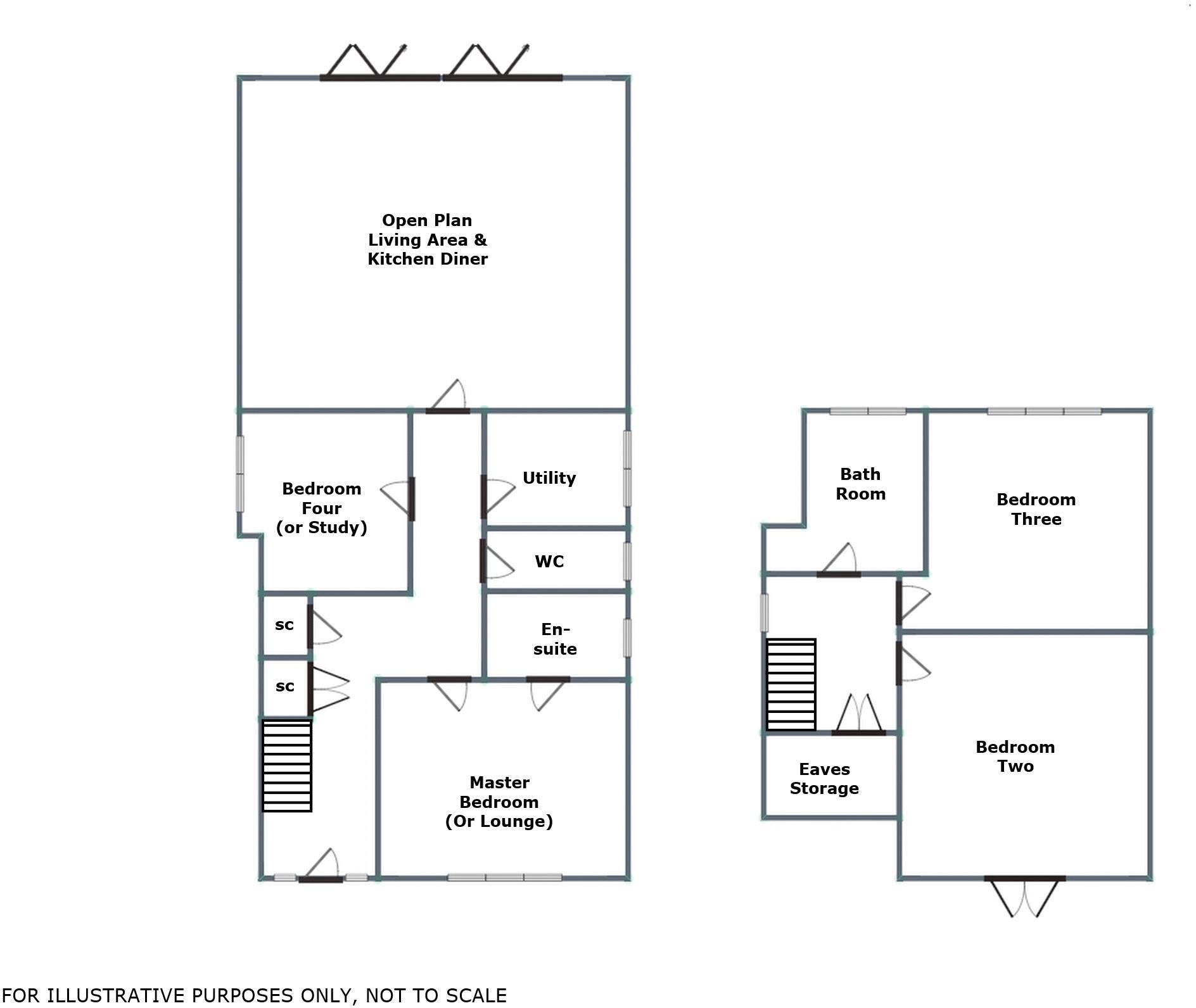
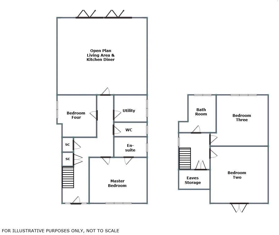
Four bedrooms including ground-floor room with en-suite (flexible use)
Set on a generous plot in a comfortable suburban pocket of Burntwood, this four-bedroom detached home offers modern family living with strong indoor‑outdoor flow. The heart of the house is a high‑ceilinged open-plan living room and kitchen/diner with skylights and bi-fold doors that open onto a landscaped patio and large private garden — ideal for entertaining and children’s play.
Practical features include a ground-floor bedroom with en-suite (suitable as a master or flexible living/office space), a separate utility room, guest WC, and underfloor heating to the ground floor. The property benefits from off-street parking for several vehicles, double glazing and added insulation measures stated to improve energy efficiency. Broad mobile reception and fast broadband support home working and streaming needs.
A couple of important factual points for buyers: the listing describes the house as a new build but also gives a construction date of 1930–1949, and there are mixed notes about wall insulation (cavity wall insulation is listed but walls are also described as solid brick with no insulation assumed). These discrepancies should be confirmed during conveyancing and survey. Overall, this is a well-appointed family home on a large plot in a very affluent, low‑crime area, offering straightforward move‑in condition with scope for personal landscaping or internal tweaks.
4 bedroom detached house for sale in Bleak House Drive, Burntwood, WS7 — £450,000 • 4 bed • 2 bath • 1249 ft²
5 bedroom detached house for sale in Farewell Lane, Burntwood, WS7 — £540,000 • 5 bed • 1 bath • 1507 ft²
5 bedroom semi-detached house for sale in Holly Grove Lane, Burntwood, WS7 — £375,000 • 5 bed • 1 bath • 1068 ft²
3 bedroom detached house for sale in Ogley Hay Road, Burntwood, WS7 — £774,000 • 3 bed • 2 bath • 1873 ft²
6 bedroom detached house for sale in High Street, Burntwood, WS7 — £410,000 • 6 bed • 2 bath • 1741 ft²
4 bedroom detached house for sale in Two Oaks Avenue, Burntwood, WS7 — £445,000 • 4 bed • 2 bath • 1688 ft²






































































































































































































