Bright corner flat with high ceilings, skylights and private outdoor spaces.
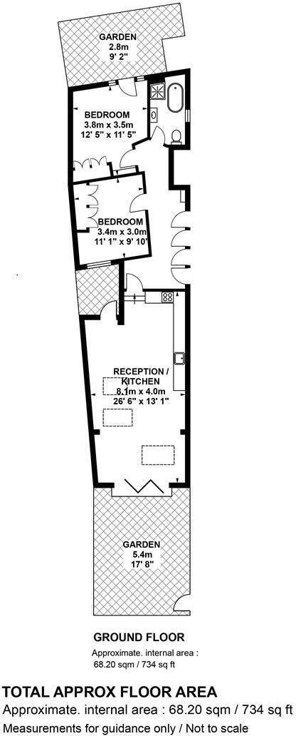
Two private patio gardens, rare for a central London flat
Spacious open-plan reception with high vaulted ceilings and skylights
Two double bedrooms with built-in storage
Approx 734 sq ft — generous footprint for a two-bed flat
Long lease: 159 years remaining; leasehold tenure
Ground rent £75; Council Tax Band C (affordable)
Period building with solid brick walls; likely no cavity insulation
Above-average local crime and nearby railway may cause noise
Set over approximately 734 sq ft, this corner flat blends period proportions with contemporary fittings. High vaulted ceilings, three skylights and large sliding doors fill the open-plan living area with natural light, while two private patio gardens give rare outdoor options for a central London property. The layout includes two double bedrooms, a well-equipped kitchen, a stylish bathroom with roll-top bath, and useful cellar storage accessed from the hall.
The property sits close to Bellenden Village, Warwick Gardens and is a short walk to Peckham Rye and Denmark Hill stations, providing swift links across London. Practical details include double glazing fitted after 2002, mains gas boiler with underfloor heating, and a long lease of 159 years. At around 734 sq ft, the flat offers generous living space for couples, sharers or first-time buyers seeking a characterful home with outdoor space.
Buyers should note this is a leasehold flat with a small ground rent of £75 and Council Tax Band C. The building is a period terrace (pre-1900) with solid brick walls and no added cavity insulation assumed, which could mean future energy improvements are possible. The location is lively and well connected but records above-average local crime and proximity to a railway line may cause occasional noise for sensitive buyers.
2 bedroom flat for sale in Coldharbour Lane, SE5 — £500,000 • 2 bed • 1 bath • 685 ft²
2 bedroom apartment for sale in Camberwell Grove, Camberwell, SE5 — £750,000 • 2 bed • 2 bath • 1053 ft²
2 bedroom flat for sale in Grove Park, Camberwell, SE5 — £1,000,000 • 2 bed • 2 bath • 1144 ft²
2 bedroom flat for sale in Maude Road, London, SE5 — £550,000 • 2 bed • 3 bath • 904 ft²
2 bedroom flat for sale in Elmington Road, Camberwell, London, SE5 — £575,000 • 2 bed • 2 bath • 1164 ft²
2 bedroom apartment for sale in Bromar Road, Camberwell, London, SE5 — £675,000 • 2 bed • 1 bath • 712 ft²


















































































