SS7 3EG - 3 bedroom semidetached house for sale in Downer Road North,…

View on Property Piper

3 bedroom semi-detached house for sale in Downer Road North, Benfleet, SS7

Summary - 5 DOWNER ROAD NORTH BENFLEET SS7 3EG

3 bed 2 bath Semi-Detached

**Standout Features:**
- Beautifully refurbished three-bedroom semi-detached chalet bungalow
- Spacious open-plan living area perfect for entertaining
- Modern high-spec kitchen with quality fittings
- Luxury spa-style family bathroom
- Generously sized ground-floor bedroom, plus two upstairs
- Contemporary downstairs WC
- Landscaped rear garden with garden cabin/home office
- Large off-street parking driveway
- Located on a sought-after road close to amenities and schools

**Summary:**
Discover this stunning three-bedroom semi-detached chalet bungalow on Downer Road North, Benfleet, perfect for families and professionals seeking comfort and modern living. Featuring a spacious open-plan layout, the home boasts a high-spec kitchen and a stylish lounge/dining area designed for entertaining. The luxurious family bathroom offers a spa-like experience, while the versatile garden cabin is ideal for a home office or creative space.

With a generously sized ground floor bedroom and two well-proportioned bedrooms upstairs, this property is thoughtfully designed for family living. The beautifully landscaped garden invites outdoor enjoyment, and the large driveway ensures ample off-street parking. Conveniently located near reputable schools and local amenities, this home offers a wonderful lifestyle opportunity in a very low-crime area—ideal for those looking to settle in a secure neighborhood. Don’t miss your chance; early viewing is highly recommended!

Property Details

Brochure Descriptions

Image Descriptions

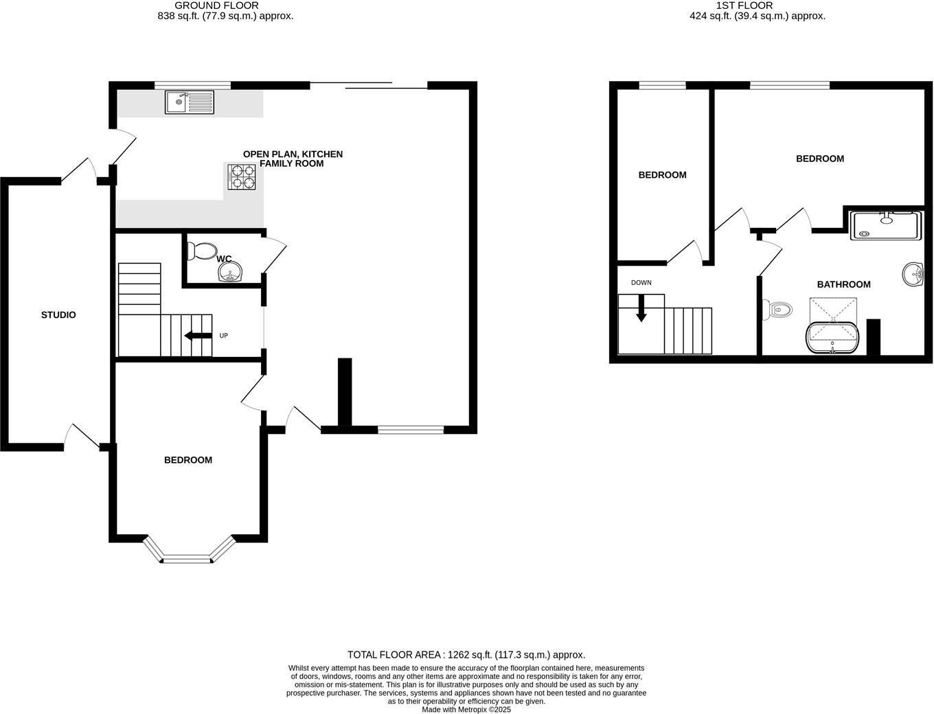
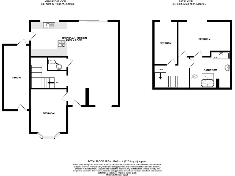
Floorplan Description

Rooms

Textual Property Features

Detected Visual Features

Nearby Schools

Nearest Bars And Restaurants

,,,,}

Nearest General Shops

,,}

Nearest Grocery shops

,,}

Nearest Supermarkets

,,}

Nearest Religious buildings

,,}

Nearest Medical buildings

,,,}

Nearest Airports

,}

Nearest Leisure Facilities

,,,,}

Nearest Tourist attractions

,,}

Nearest Train stations

,,,,}

Nearest Bus stations and stops

,,,,}

Nearest Hotels

,,}

Tags

Local Market Stats

AirBnB Data

Similar Properties

Meta

High Res Images

Compatible Images

Low res Images

Thumbnails

Raw Images

High Res Floorplan Images

Compatible Floorplan Images

Low res Floorplan Images

FloorplanImages Thumbnail

Raw Floorplan Images