**Standout Features:**
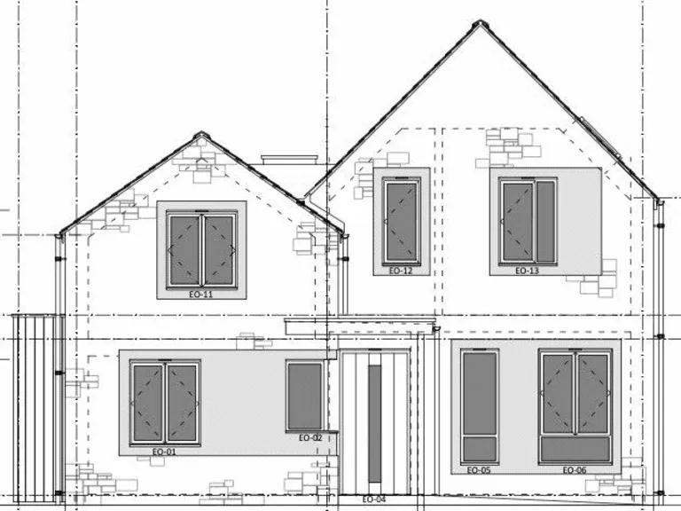
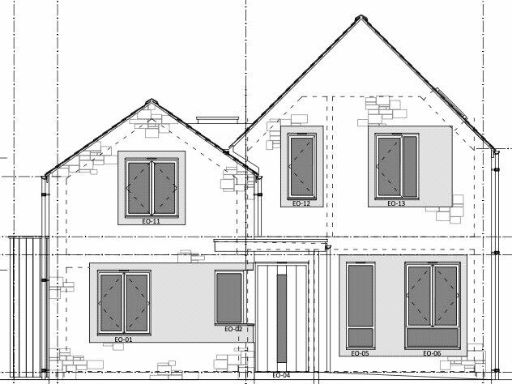
- Full planning permission granted for a 1,700 sqft two-story contemporary home (PL/2023/06979).
- Level cleared site with connected services—ready for immediate build.
- Located within the picturesque Cotswolds AONB.
- Flexible layout with potential adaptability for personal preferences.
- Off-road parking for three vehicles and large plot size.
- Proximity to Bath and Bradford on Avon, with excellent transport links.
- Tranquil village life with abundant outdoor activities and community amenities.
**Summary Description:**
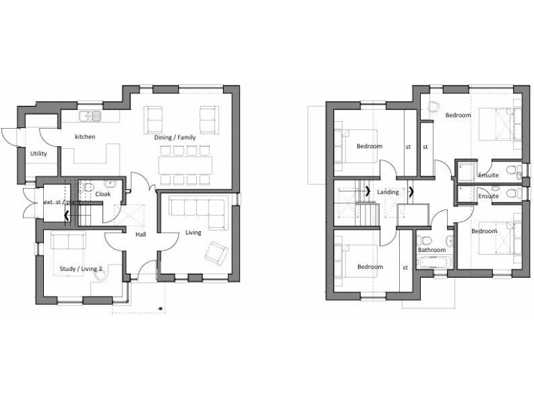
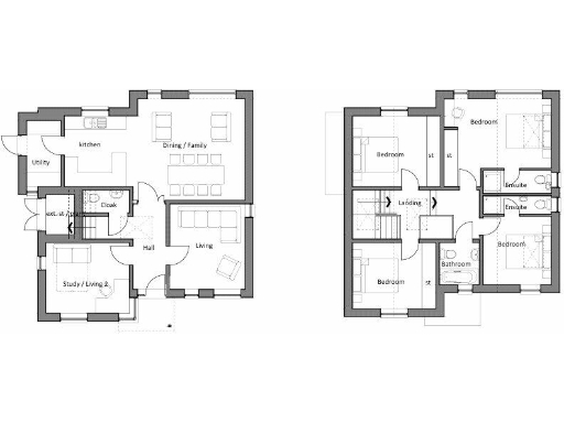
Seize the chance to create your dream detached contemporary home in the desirable Monkton Farleigh. This unique freehold plot spans over 1,700 square feet, is already cleared, and benefits from connected services, making it a rare opportunity. The proposed design features an expansive open plan living area, a generous kitchen diner with a utility room, and a versatile ground floor layout that includes a playroom. Upstairs, you'll find four spacious bedrooms—including two with en-suites—fully adaptable to your needs.
Nestled within the stunning Cotswolds Area of Outstanding Natural Beauty, this location offers not only serene countryside living but also easy access to Bath and Bradford on Avon, renowned for their rich history and excellent transportation options. Enjoy country walks, a close-knit community, and local amenities including a village pub, contributing to a truly idyllic lifestyle. For families, top-rated schools abound in the area. Don’t miss this perfect opportunity for a fresh start in your own tailored home—these desirable plots won’t be available for long!
Plot for sale in Broughton Gifford, Melksham, SN12 — £285,000 • 4 bed • 2 bath • 4000 ft²
4 bedroom detached house for sale in Midford, Bath, BA2 — £600,000 • 4 bed • 1 bath • 1244 ft²
2 bedroom semi-detached house for sale in Broadstones, Monkton Farleigh, BA15 — £300,000 • 2 bed • 1 bath • 1105 ft²
4 bedroom detached house for sale in Monkton Combe, Bath, BA2 — £1,000,000 • 4 bed • 2 bath • 2290 ft²
4 bedroom detached house for sale in Monkton Farleigh , BA15 — £550,000 • 4 bed • 2 bath • 1479 ft²
4 bedroom semi-detached house for sale in Monkton Farleigh, BA15 — £1,150,000 • 4 bed • 1 bath • 2040 ft²






















