Refurbished three-bedroom near schools and transport links.
Three bedrooms and two reception rooms, generous internal space
This newly renovated three-bedroom mid-terrace sits on Mortimer Road in South Shields, offered with vacant possession and no upper chain. The house retains Victorian character—high ceilings and original features—while benefiting from new flooring, double glazing and gas central heating for immediate comfort.
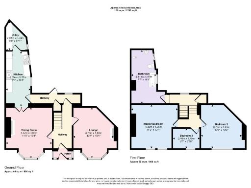
Set over multiple storeys, the layout includes two reception rooms, a fitted kitchen with utility space, and a single, large bathroom. At about 1,298 sq ft the property feels spacious inside, though the external space is limited to a small rear yard. Local transport links, the Metro and nearby schools make this a practical family home.
Buyers should note the neighbourhood has high recorded crime levels and the wider area is relatively deprived; this may affect future resale or rental prospects. The building is solid-brick Victorian construction with no known cavity insulation and was constructed before 1900 — there may be scope for energy-efficiency improvements.
Overall this is a ready-to-move-in period home for families seeking space and convenient amenities, with straightforward potential to personalise or upgrade energy performance over time.
4 bedroom terraced house for sale in Mortimer Road, Mortimer, South Shields, Tyne and Wear, NE33 4TT, NE33 — £280,000 • 4 bed • 1 bath • 1626 ft²
3 bedroom flat for sale in Mortimer Road, Mortimer, South Shields, Tyne and Wear, NE33 4UH, NE33 — £90,000 • 3 bed • 1 bath • 808 ft²
5 bedroom terraced house for sale in Mortimer Road, South Shields, NE33 — £250,000 • 5 bed • 4 bath • 1851 ft²
3 bedroom terraced house for sale in Mortimer Road, South Shields, NE33 — £180,000 • 3 bed • 1 bath • 1162 ft²
3 bedroom terraced house for sale in Romilly Street, South Shields, NE33 — £230,000 • 3 bed • 1 bath • 1313 ft²
3 bedroom terraced house for sale in Lemon Street, West Harton, South Shields, Tyne and Wear, NE33 4RQ, NE33 — £85,000 • 3 bed • 1 bath


























































