G20 8AD - 1 bedroom apartment for sale in Shakespeare Street, North K…

View on Property Piper

1 bedroom apartment for sale in Shakespeare Street, North Kelvinside, Glasgow, G20

Summary - 0/4, 29, SHAKESPEARE STREET, GLASGOW G20 8AD

1 bed 1 bath Apartment

### Standout Features:
- Modern 1-bedroom ground floor apartment in a historic Georgian building
- Impressive high ceilings and large windows providing abundant natural light
- Stylish open plan kitchen with integrated Siemens appliances
- Quality finishes with oak flooring throughout
- Allocated off-street parking in gated grounds
- Located near the Botanic Gardens and University of Glasgow
- Chain-free sale, simplifying the buying process

### Notable Concerns:
- Requires attention due to listed status, which could pose challenges for renovations
- Situated in an area classified as very deprived

Step into this exceptional 1-bedroom apartment, part of a beautifully converted Georgian red brick school, offering a blend of historic charm and modern convenience. With high ceilings and expansive south- and west-facing windows, the generous living space is both luminous and inviting. The contemporary open-plan kitchen is tailored for efficiency, equipped with premium integrated appliances, while a chic Porcelanosa bathroom features underfloor heating for added comfort.

Nestled within a gated community with well-maintained gardens, this property offers a unique blend of privacy and access to vibrant local amenities, including eateries and boutique shops near Byres Road. Ideal for students or professionals, this apartment provides both comfort and accessibility. However, prospective buyers should note that the listed status may complicate future renovations. Seize this rare opportunity to own a modern home in a sought-after area—schedule your viewing today!

Property Details

Image Descriptions

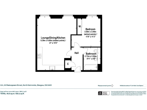
Floorplan Description

Rooms

Textual Property Features

Detected Visual Features

Nearest Bars And Restaurants

,,,,}

Nearest General Shops

,,}

Nearest Grocery shops

,,}

Nearest Supermarkets

,,}

Nearest Religious buildings

,,}

Nearest Medical buildings

,,,}

Nearest Airports

,}

Nearest Leisure Facilities

,,,,}

Nearest Tourist attractions

,,}

Nearest Train stations

,,,,}

Nearest Bus stations and stops

,,,,}

Nearest Hotels

,,}

Tags

Local Market Stats

AirBnB Data

Similar Properties

Meta

High Res Images

Compatible Images

Low res Images

Thumbnails

Raw Images

High Res Floorplan Images

Compatible Floorplan Images

Low res Floorplan Images

FloorplanImages Thumbnail

Raw Floorplan Images