**Standout Features:**
- Recently renovated three-bedroom terraced cottage
- Modern fitted kitchen/dining room with high-end appliances
- Dual-aspect sitting room with a cozy wood burner
- Stunning countryside views
- Detached double garage and an additional garden shed
- Spacious gardens totaling approximately 1/4 acre
- Eco-friendly air source heat pump and full fibre broadband
- Chain-free for quick possession
**Potential Downsides:**
- Constructed before 1900, raising potential maintenance concerns
- Solid brick walls with assumed no insulation
- Heating via electric storage heaters, which may require efficient management
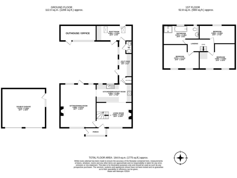
Experience charming countryside living in this beautifully presented, recently renovated three-bedroom terraced cottage. Nestled in a peaceful lane with captivating views, this property seamlessly blends modern comfort and historic character as it was converted from two cottages into one spacious home. The heart of the home is a modern kitchen/dining area, equipped with premium appliances, a utility room, and a welcoming sitting room featuring a wood burner and patio access to the quaint courtyard garden.
The first floor boasts a generous master bedroom with built-in wardrobes and sweeping views, alongside two additional double bedrooms and a family bath/shower room. The property is enriched by outdoor living spaces, including a rear courtyard with a versatile outhouse, ideal for a home office or studio, plus expansive gardens ideal for family gatherings or peaceful retreats, all set on approximately 1/4 of an acre.
With energy-efficient features such as an air source heat pump and benefits of a fast broadband connection, this lovely home provides comfort and room to grow. Embrace the tranquility of this affluent area, with excellent local schools and amenities within reach. Act quickly—properties like this in such stunning settings don't stay on the market for long!
3 bedroom link detached house for sale in Wadhurst Road, Mark Cross, TN6 — £750,000 • 3 bed • 2 bath • 1273 ft²
5 bedroom link detached house for sale in Blackham, Tunbridge Wells, TN3 — £800,000 • 5 bed • 4 bath • 2474 ft²
3 bedroom semi-detached house for sale in Bewlbridge Lane, Wadhurst, TN5 — £650,000 • 3 bed • 2 bath • 1270 ft²
4 bedroom semi-detached house for sale in Goudhurst Road, Tunbridge Wells, TN3 — £565,000 • 4 bed • 2 bath • 1511 ft²
3 bedroom detached house for sale in Cherry Gardens Hill, Groombridge, Tunbridge Wells TN3 9NY, TN3 — £725,000 • 3 bed • 2 bath • 1022 ft²
4 bedroom detached house for sale in Hoghole Lane, Lamberhurst, TN3 — £1,200,000 • 4 bed • 2 bath • 1900 ft²






















































































































