**Standout Features:**
- Architect-designed, contemporary 5-bedroom detached home
- Inverted floor plan with open-plan living
- High-end Stephen Christian Design kitchen
- Energy-efficient with predicted 'A' energy rating
- Landscaped country garden bordering open pastureland
- Triple bay garage and carport
- 10-year structural warranty with completion expected by Summer 2025
**Notable Concerns:**
- Proximity to local amenities is somewhat limited
- Broadband speeds are very slow; mobile signal average
- Some potential maintenance with the newer property setup
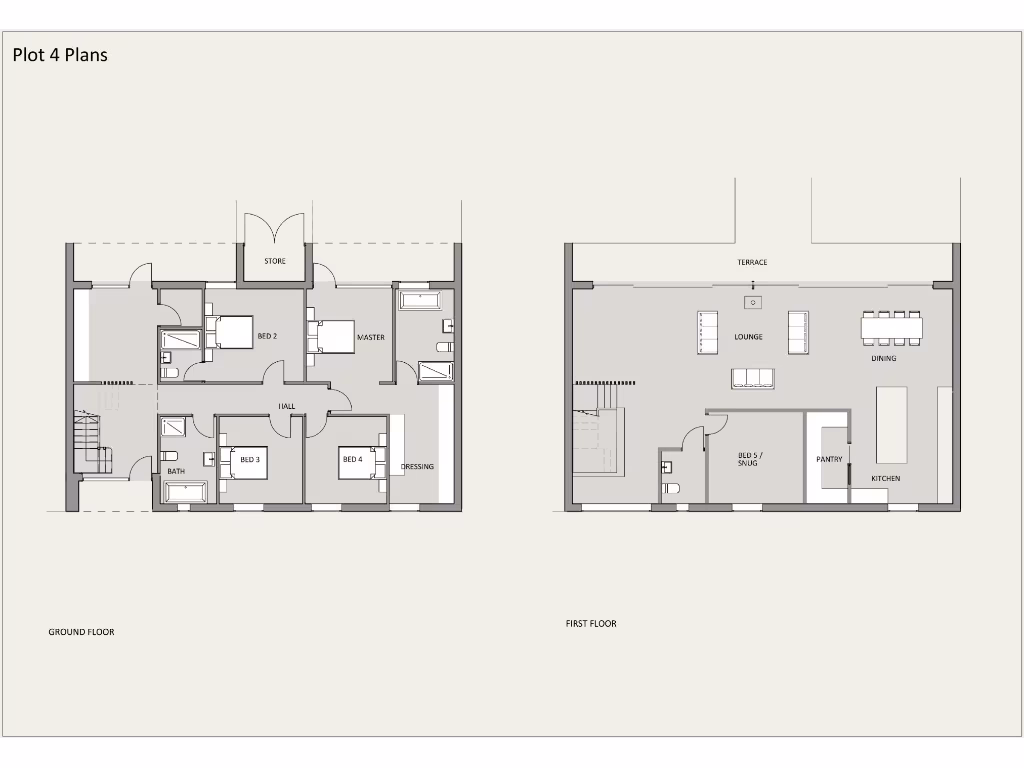
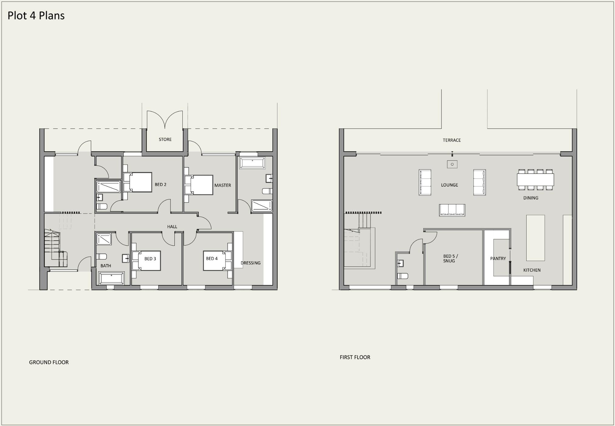
Discover your dream home at Plot Four, Deben Farm, a stunning detached residence designed for modern living in the picturesque setting of Scalford, Leicestershire. This architecturally striking property features five spacious bedrooms, including a luxurious master suite with a dressing room and ensuite, as well as an additional guest suite and versatile snug/home office. With an inverted design that enhances open-plan living and breathtaking countryside views, this home perfectly blends contemporary style with comfort.
Residents can relish in a captivating landscaped garden and a triple bay garage with carport, making it ideal for families seeking a serene rural lifestyle while maintaining convenience to nearby Melton Mowbray's amenities. Enjoy energy-efficient features, including underfloor solar heating and high-quality glazing, ensuring future savings on energy bills.
As part of an exclusive five-unit rural scheme with a ten-year warranty, this property gives you the chance to secure a piece of Leicestershire’s most desirable countryside living. With construction slated for completion in Summer 2025, early reservations are highly encouraged. Don’t miss this opportunity to create your own grand design home!
4 bedroom detached house for sale in Main Street, Bagworth, Coalville, LE67 — £495,000 • 4 bed • 2 bath • 732 ft²
5 bedroom detached house for sale in Station Road, Elmesthorpe, LE9 — £1,250,000 • 5 bed • 4 bath • 3300 ft²
4 bedroom detached house for sale in Plot One, Deben Farm, Landyke Lane, Scalford, Leicestershire LE14 4SY, LE14 — £960,000 • 4 bed • 1 bath • 2326 ft²
5 bedroom detached house for sale in Melton Road, Stanton on the Wolds, NG12 — £1,100,000 • 5 bed • 3 bath • 3000 ft²
4 bedroom detached house for sale in School Lane, Peatling Magna, LE8 — £1,130,000 • 4 bed • 3 bath • 4172 ft²
5 bedroom detached house for sale in Chapel Lane, Upper Broughton, LE14 — £975,000 • 5 bed • 4 bath • 4384 ft²


























































