**Standout Features:**
- Unique mixed-use building with both commercial and residential spaces
- Prominent town center location with high foot traffic
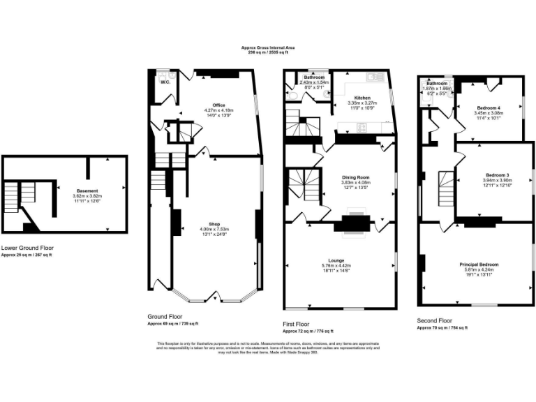
- Flexible four-floor layout, totaling 2,533 sq ft
- Three spacious bedrooms and two bathrooms
- Ideal for business owners or investors seeking rental income
- Access to sizable basement for additional storage
- Close proximity to local amenities and schools with good Ofsted ratings
**Summary:**
This versatile four-story building in the heart of Dereham town center presents an extraordinary opportunity for savvy investors or entrepreneurs eager to establish a residence alongside their business. The ground floor features retail space perfect for a shop or office, complete with WC facilities and basement access for shadow storage. Above, the first floor hosts a generous lounge, dining room, kitchen, and family bathroom, while the upper floor reveals three sizeable bedrooms and an additional bathroom, providing ample living space.
Although the property lacks outdoor space and has average views, its prime location ensures fast broadband speeds and access to a fantastic array of local amenities. The guide price of £395,000 makes this a compelling choice for families or commercial partnerships alike—properties with this level of flexibility are rarely available. Viewing is highly recommended to fully appreciate the potential this unique offering holds. Don’t miss out on the chance to invest in a prime piece of Dereham real estate!
High street retail property for sale in 10 High Street, Dereham, Norfolk, NR19 — £154,000 • 1 bed • 1 bath • 700 ft²
2 bedroom terraced house for sale in St Nicholas Street, Dereham, NR19 — £170,000 • 2 bed • 1 bath • 593 ft²
2 bedroom end of terrace house for sale in Commercial Road, Dereham, NR19 1AE, NR19 — £200,000 • 2 bed • 1 bath • 537 ft²
4 bedroom house for sale in Dereham, NR19 — £500,000 • 4 bed • 3 bath • 3683 ft²
2 bedroom terraced house for sale in Wellington Road, Dereham, NR19 — £145,000 • 2 bed • 1 bath • 554 ft²
2 bedroom apartment for sale in Norwich Street, Dereham, NR19 — £110,000 • 2 bed • 1 bath • 619 ft²


















































