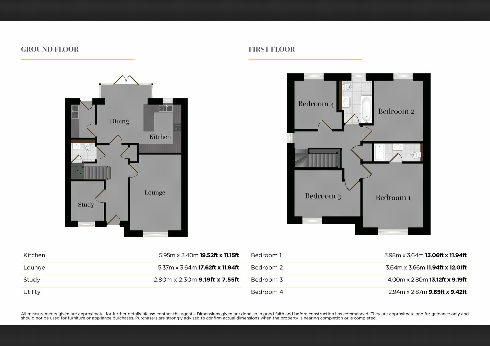
**Standout Features:**
- New build, high specification family home in a sought-after Helston development
- 4 spacious bedrooms, including a master en suite
- Impressive open-plan kitchen and dining area with garden access
- Dedicated study area and separate living room for added versatility
- Option to personalize interior choices including kitchens, flooring, and bathroom tiles (subject to construction stage)
- Detached with large garden and garage for convenient parking
- Ten-year warranty for peace of mind
- Set in a very low crime, affluent area, making it ideal for families
**Concise Summary:**
Discover a modern haven in this newly constructed 4-bedroom detached home located in a desirable Helston neighborhood. This well-designed property boasts an impressive open-plan kitchen/dining area, perfect for family gatherings, along with a dedicated study area for remote work or study. With the luxury of personalizing finishes during construction, potential buyers can truly make this house their own.
Situated on a generous plot with a well-maintained garden and garage, this home promises comfort and security in a low-crime, affluent community, making it an excellent investment for families or first-time buyers. Local amenities and quality schools are only a stone’s throw away, enriching the area’s appeal. Don’t miss out on this fantastic opportunity—homes like this won’t last long!
4 bedroom detached house for sale in Park Pella, Park An Daras, Helston, Cornwall, TR13 — £399,950 • 4 bed • 2 bath • 1173 ft²
4 bedroom detached house for sale in Park An Daras, Helston, Light and bright family home, TR13 — £395,000 • 4 bed • 2 bath • 523 ft²
3 bedroom end of terrace house for sale in Park Skiber, Park An Daras, Helston, Cornwall, TR13 — £315,000 • 3 bed • 2 bath
4 bedroom semi-detached house for sale in Clodgey Lane,
Helston,
Cornwall,
TR13 8BN, TR13 — £399,995 • 4 bed • 1 bath • 2010 ft²
3 bedroom detached house for sale in Clodgey Lane,
Helston,
Cornwall,
TR13 8BN, TR13 — £345,000 • 3 bed • 1 bath • 616 ft²
4 bedroom detached house for sale in Golva Close, Helston, Cornwall, TR13 — £485,000 • 4 bed • 2 bath • 1476 ft²










































































































































