NR14 6PW - 3 bedroom cottage for sale in Thorpe Road, Haddiscoe, Norwi…

View on Property Piper

3 bedroom cottage for sale in Thorpe Road, Haddiscoe, Norwich, NR14

Summary - HONEYSUCKLE COTTAGE, 2 THORPE ROAD HADDISCOE NORWICH NR14 6PW

3 bed 1 bath Cottage

**Standout Features:**
- Characterful mid-terrace cottage with exposed timber beams
- Cozy sitting room with a wood burner
- Three bedrooms and a modern family bathroom
- Useful loft study room
- Private enclosed cottage-style garden with feature well
- Off-road parking for two vehicles
- Located in a quiet village setting

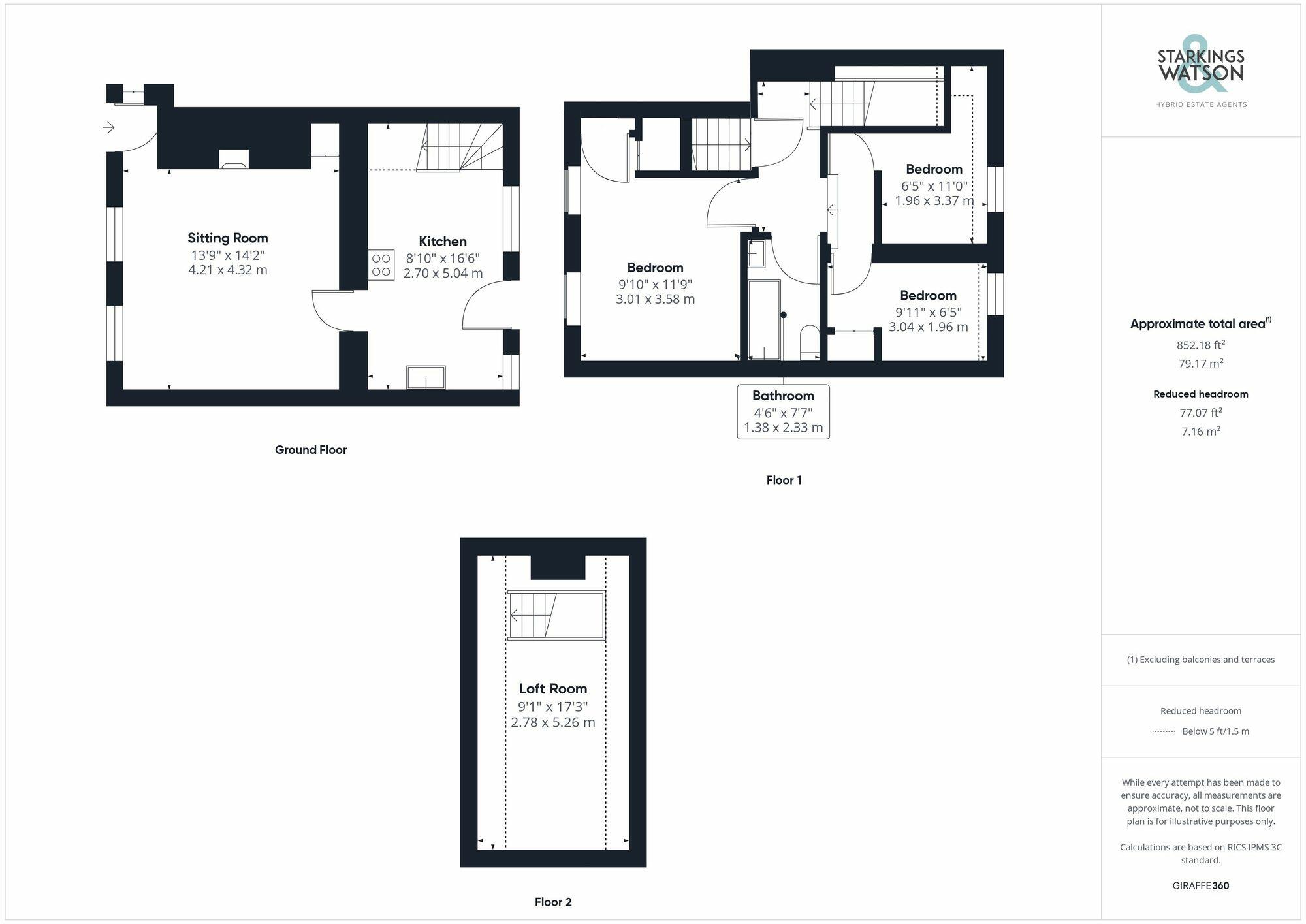
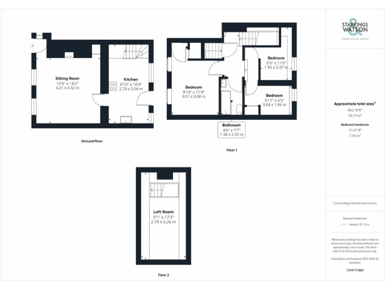
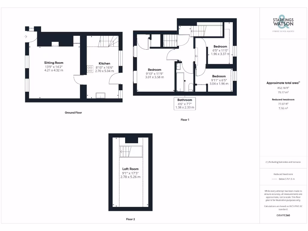
This charming mid-terrace cottage offers a perfect blend of rustic character and modern comforts, situated just off the A143 for easy access to nearby towns and cities like Gorleston, Beccles, Lowestoft, and Norwich. With 852 square feet of thoughtfully maintained space, you’ll find exposed timber beams throughout and a cozy sitting room complete with a inviting wood burner—ideal for family relaxation. The well-designed kitchen/dining room is perfect for entertaining, while the modern family bathroom includes a shower over the tub.

Upstairs, the property features three comfortable bedrooms, with built-in storage in the main bedroom, and a versatile loft space that can serve as a study or additional storage. Outside, the private garden is a delightful retreat, centered around a charming feature well.

While the home boasts many positives, potential buyers should note the emphasis on general maintenance, including the use of an informal access point for the septic tank located in the garden. However, with low crime rates and easy access to local amenities and good schools, this property provides an exceptional opportunity for families or first-time buyers looking to settle in a peaceful rural setting. Don’t miss the chance to own this unique cottage—properties like this are seldom available for long!

Property Details

Image Descriptions

Floorplan Description

Rooms

Textual Property Features

Detected Visual Features

EPC Details

Nearby Schools

Nearest Bars And Restaurants

,,,,}

Nearest General Shops

,,}

Nearest Grocery shops

,,}

Nearest Supermarkets

,,}

Nearest Religious buildings

,,}

Nearest Medical buildings

,,,}

Nearest Leisure Facilities

,,,,}

Nearest Tourist attractions

,,}

Nearest Train stations

,,,,}

Nearest Bus stations and stops

,,,,}

Nearest Hotels

,,}

Tags

Local Market Stats

AirBnB Data

Similar Properties

Meta

High Res Images

Compatible Images

Low res Images

Thumbnails

Raw Images

High Res Floorplan Images

Compatible Floorplan Images

Low res Floorplan Images

FloorplanImages Thumbnail

Raw Floorplan Images