Chain-free two-bed apartment with parking and long lease close to York city centre.
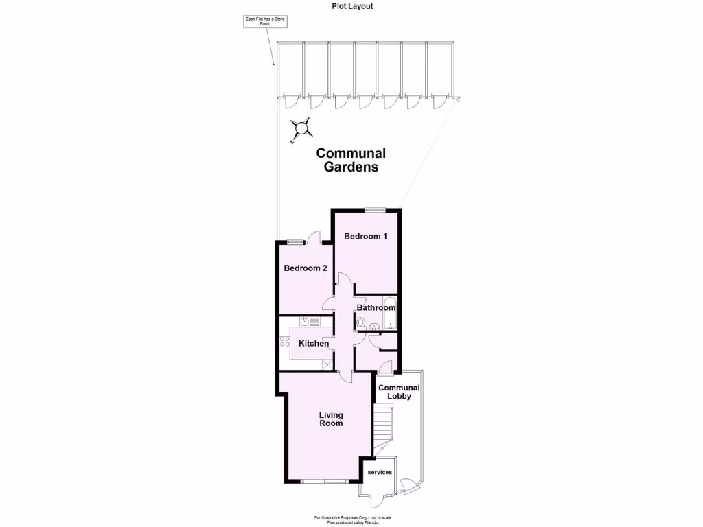
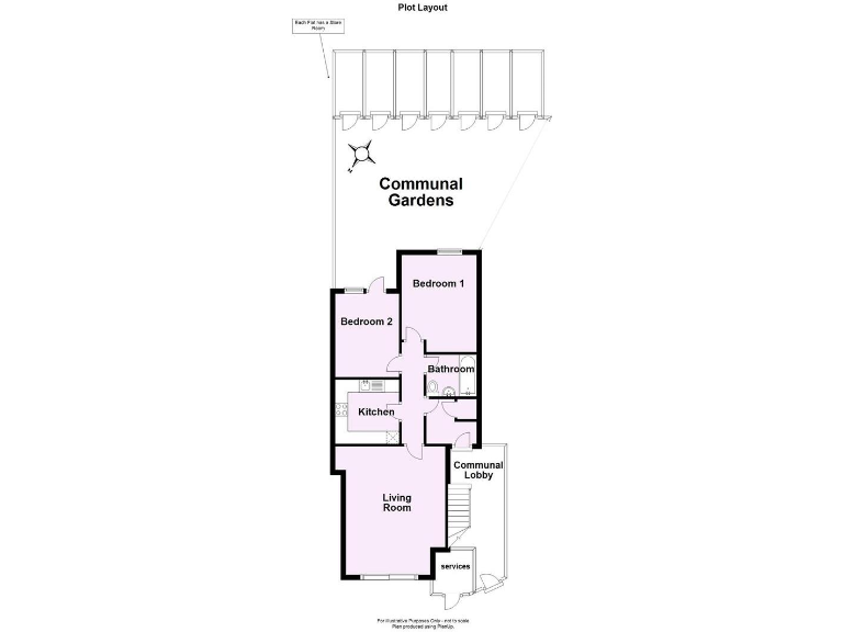
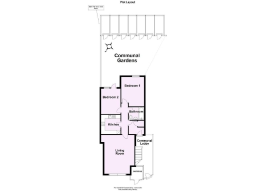
Two double bedrooms and modern bathroom
A well-presented two-bedroom ground-floor apartment in Lowther Court, a short walk from York city centre and local amenities. The layout includes a bright living/dining room with sliding patio doors, a fitted kitchen, two double bedrooms and a modern bathroom. The property comes with one allocated off-street parking space, a private storage area and access to maintained communal gardens.
Practical ownership is straightforward: share of freehold with c.972 years remaining, no ground rent and a below-average annual service charge of £840. The flat is chain-free and ready for a quick sale, making it suitable for first-time buyers or buy-to-let investors seeking central location and low immediate costs.
Considerations: heating is by electric storage heaters, so running costs may be higher than gas-heated homes and EPC improvement potential exists. The apartment is average in size (c.619 sq ft) and on the ground floor, which offers easy access but a street-level aspect. Double glazing is present but install date is unknown.
Overall, this compact, low-maintenance apartment offers convenient central living, parking and long lease security — an accessible entry point to York’s property market for buyers who prioritise location over large living spaces.
2 bedroom apartment for sale in Bishopfields Drive, York, YO26 4WN, YO26 — £215,000 • 2 bed • 2 bath • 606 ft²
2 bedroom flat for sale in Lowther Court, Lowther Street, York YO31 7EG, YO31 — £225,000 • 2 bed • 1 bath • 576 ft²
2 bedroom flat for sale in Foss House, Lowther Street, York, YO31 — £215,000 • 2 bed • 1 bath • 609 ft²
2 bedroom flat for sale in Foss House, Lowther Street, York, YO31 — £200,000 • 2 bed • 1 bath • 602 ft²
2 bedroom apartment for sale in The Aura, Hallfield Road, York, YO31 — £240,000 • 2 bed • 1 bath • 551 ft²
2 bedroom flat for sale in Hardisty Cloisters, Leeman Road, York, YO26 — £200,000 • 2 bed • 2 bath • 730 ft²






















































