Compact, well-presented family home with garage and low-maintenance garden.
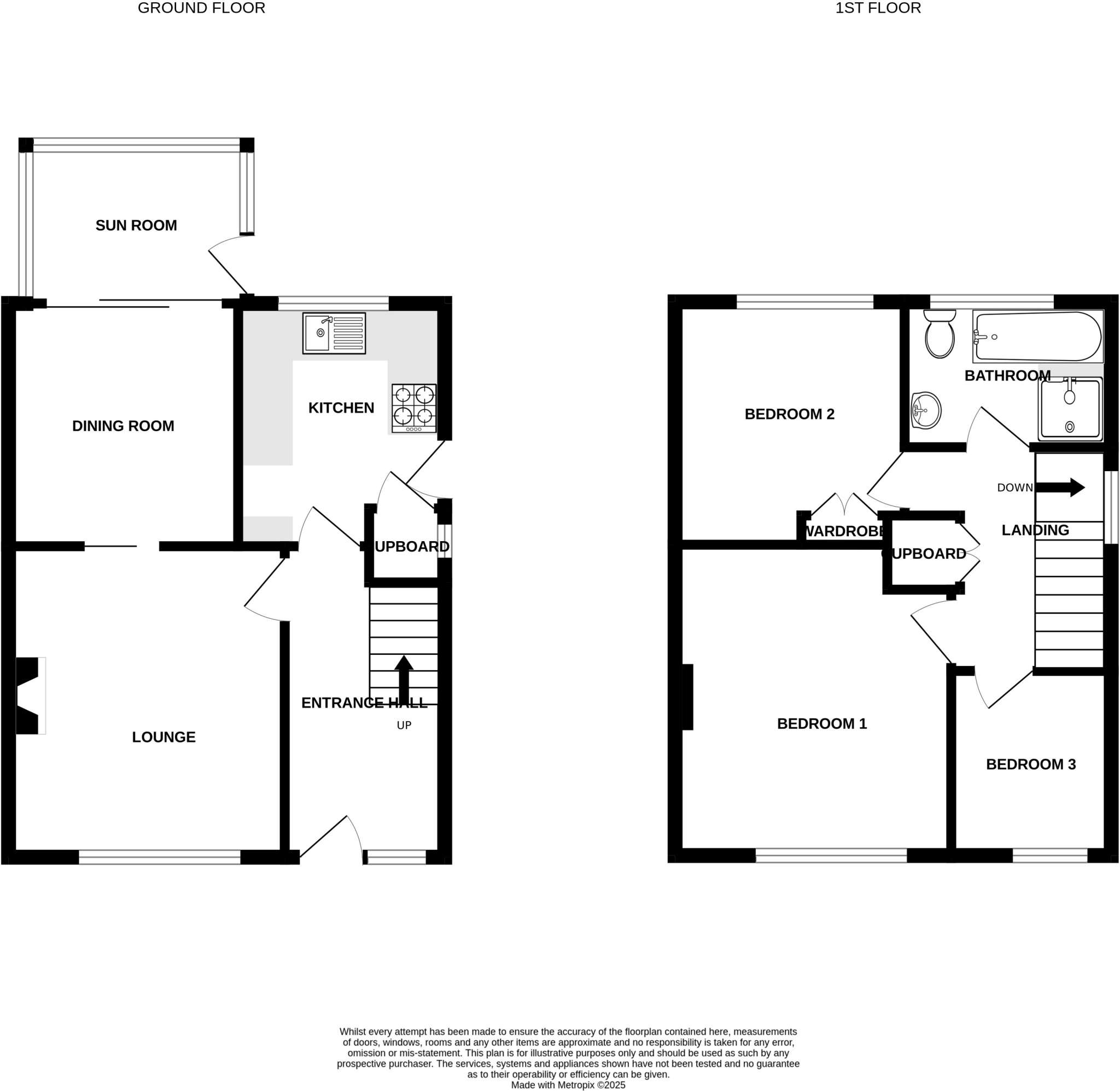
Three bedrooms with three reception rooms and sun room
Modern U-shaped fitted kitchen with laminate flooring
Driveway plus single garage with power and light
Freehold, no upward chain, gas central heating (combi boiler)
Compact overall size ~807 sq ft; smaller room dimensions
Council Tax Band B — affordable running costs
Fast broadband and excellent mobile signal
Local area deprived; crime levels above average
This well-presented three-bedroom semi-detached house on Cherryhill Avenue offers practical family living with clear value. The ground floor layout includes a formal lounge, dining room and a sun room, plus a modern U-shaped kitchen — good for everyday life and casual entertaining. The property is freehold, chain-free and heated by a gas combination boiler with double glazing throughout.
Outside there is a driveway, a single garage with power and light, and low-maintenance front and rear gardens with a paved patio. At about 807 sq ft the home is compact but efficiently arranged; nearby schools (including several rated Good) and the A50 provide useful links for commuting and family routines. Broadband is fast and mobile signal is excellent.
Notable practical points: the wider neighbourhood is in a deprived category and local crime levels are above average, which may concern some buyers and affect insurance and resale considerations. The home is presented for immediate occupation but the compact room sizes mean buyers seeking larger living space may prefer to consider extensions or reconfiguration, subject to planning. Overall this house suits buyers wanting an affordable, low-maintenance family home or an investor seeking a city-location rental with decent access and utilities.
3 bedroom semi-detached house for sale in MacDonald Crescent, Meir, ST3 — £145,000 • 3 bed • 1 bath • 872 ft²
3 bedroom semi-detached house for sale in Highfield Avenue, Stoke-On-Trent, ST3 — £160,000 • 3 bed • 1 bath • 924 ft²
3 bedroom semi-detached house for sale in Carroll Drive, Meir Hay, Stoke On Trent, Staffordshire, ST3 — £170,000 • 3 bed • 1 bath • 1345 ft²
3 bedroom semi-detached house for sale in Golborn Avenue, Meir Heath, ST3 7LT, ST3 — £244,950 • 3 bed • 2 bath • 900 ft²
3 bedroom semi-detached house for sale in Hemingway Road, Meir Hay, Stoke-On-Trent, ST3 — £184,950 • 3 bed • 1 bath • 808 ft²
3 bedroom semi-detached house for sale in Lister Grove, Blythe Bridge, Stoke-on-Trent, Staffordshire, ST11 — £260,000 • 3 bed • 2 bath






























































