Starter home with garden, fast broadband and nearby transport links.
Chain-free two-bedroom semi-detached freehold property
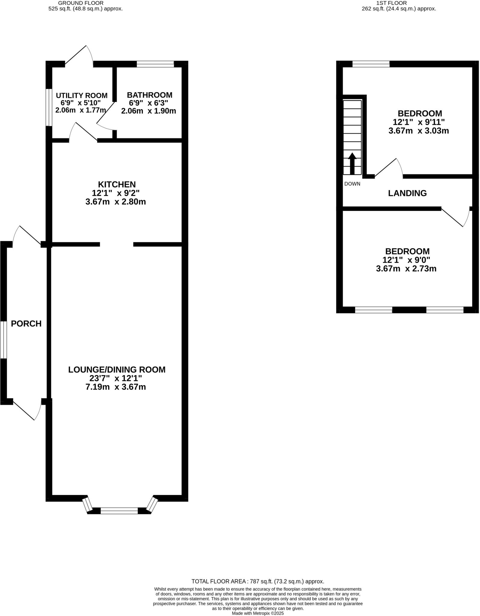
Step inside this chain-free, two-bedroom semi-detached home ideal for first-time buyers seeking city convenience and outdoor space. The ground floor offers a reception room with bay window and an open-plan kitchen-diner, creating a sociable layout for everyday living and occasional entertaining. Upstairs are two double bedrooms and a single classic white bathroom suite.
Practical points include freehold tenure, mains gas central heating with boiler and radiators, double glazing (install date unknown) and excellent mobile signal with fast broadband—useful for working from home. The small rear garden and side access add outdoor space and practical utility in a compact plot close to public transport and the city centre.
Be aware this home was built in the 1930–1949 period with solid brick walls and assumed lack of cavity insulation; upgrading insulation and modernising elements would improve comfort and running costs. The area is classified as very deprived with average crime figures—this affects long-term value and should be considered alongside the property’s low maintenance footprint and no onward chain.
Overall, the house offers a straightforward, affordable entry onto the property ladder with scope to personalise and increase value. Buyers looking for a ready-to-move-in option should budget for cosmetic updating and possible energy-efficiency improvements to make the most of the home’s location and layout.
2 bedroom terraced house for sale in Clifton Street, Adamsdown, Cardiff, CF24 — £225,000 • 2 bed • 1 bath • 758 ft²
2 bedroom semi-detached house for sale in Frank Road, Cardiff, CF5 — £185,000 • 2 bed • 1 bath • 587 ft²
2 bedroom terraced house for sale in Trem Yr Afon, Canton, Cardiff, CF11 — £260,000 • 2 bed • 1 bath • 666 ft²
2 bedroom semi-detached house for sale in Tan Y Bryn, Senghenydd, Caerphilly, CF83 4FP, CF83 — £160,000 • 2 bed • 1 bath • 883 ft²
3 bedroom semi-detached house for sale in Ton-yr-Ywen Avenue, CARDIFF, CF14 — £400,000 • 3 bed • 1 bath • 894 ft²
2 bedroom terraced house for sale in Booker Street, Splott, CF24 — £210,000 • 2 bed • 1 bath • 1002 ft²






































































