Character cottage with large garden, garage and views over Frome Valley — chain free.
No onward chain — ready for a quick sale
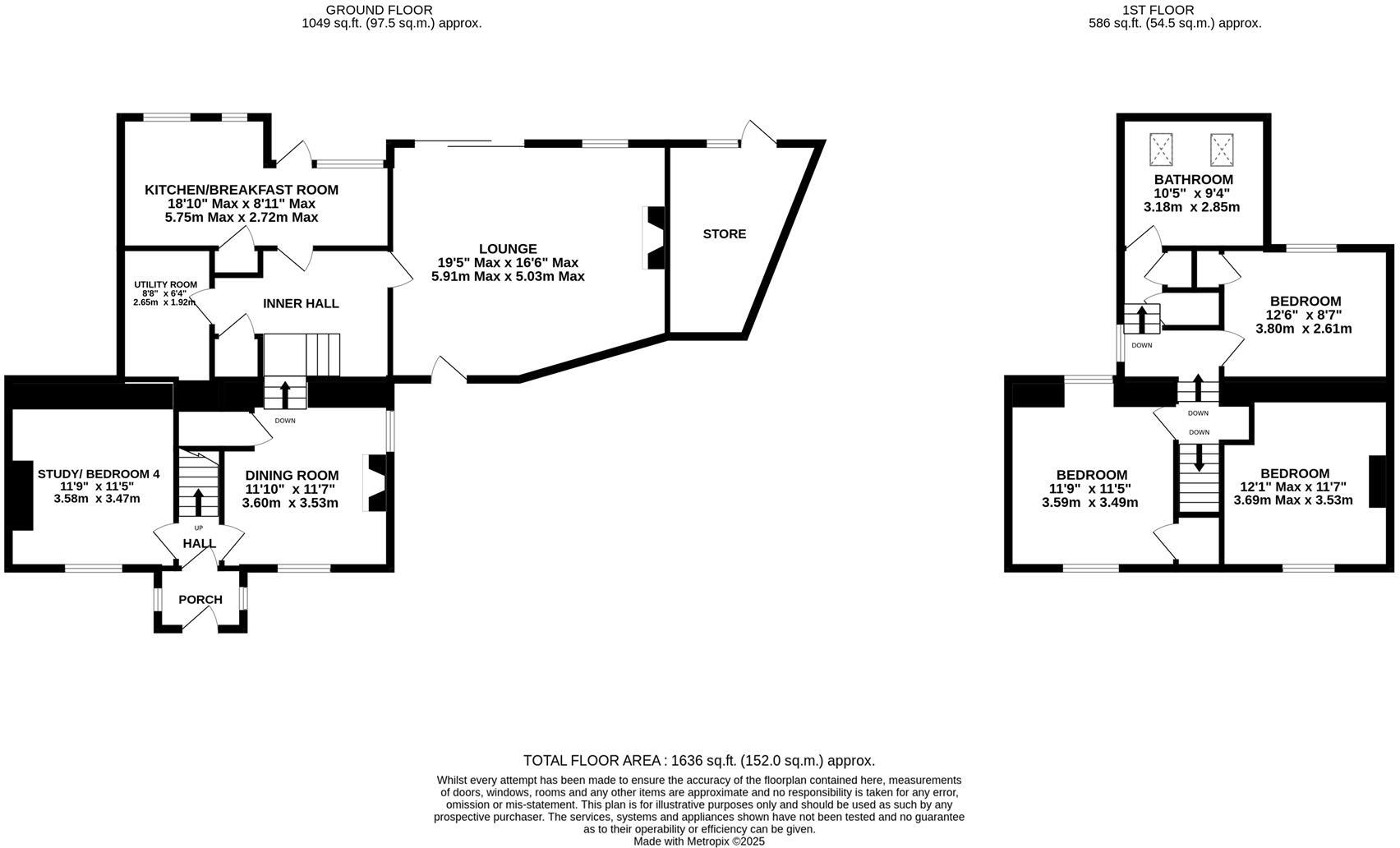
A charming three-bedroom semi-detached cottage overlooking Frenchay Common, offered with no onward chain. The house combines period character — exposed stonework, original proportions and a pitched roof — with an extended layout including three reception rooms, a kitchen/breakfast room and a useful utility with WC. Large windows and two Velux rooflights bring light into the upper floor, and patio doors open from the lower-ground lounge onto the rear garden.
The plot is a strong practical asset: a paved patio with elevated views across the wooded Frome Valley leads down to a secluded, mature garden. A driveway and detached garage provide private off-street parking. At about 1,636 sq ft the accommodation feels generous and versatile for family living, a home office or flexible reception uses.
Buyers should note this is an older property (pre-1900) with granite/whinstone walls likely without modern insulation and an EPC rating of Band E. There are signs of potential damp noted externally; buyers should arrange a survey to confirm any remedial work required. The single family bathroom and period windows may also prompt updating to improve thermal efficiency and comfort.
Positioned in a very affluent, well-connected area with fast broadband, good schools and pleasant green space on the doorstep, this home suits families seeking space and character with obvious scope to modernise and increase energy performance.
2 bedroom terraced house for sale in Frenchay Hill, Frenchay, Bristol, BS16 — £380,000 • 2 bed • 1 bath • 861 ft²
4 bedroom detached house for sale in Grange Park, Frenchay, Bristol, BS16 2SZ, BS16 — £950,000 • 4 bed • 3 bath • 1619 ft²
3 bedroom semi-detached house for sale in Poplar Terrace, Kingswood, Bristol, BS15 — £330,000 • 3 bed • 1 bath • 779 ft²
4 bedroom semi-detached house for sale in Malmains Drive, Frenchay, Bristol, BS16 — £550,000 • 4 bed • 1 bath • 1067 ft²
3 bedroom end of terrace house for sale in Froomshaw Road, Frenchay, BS16 — £375,000 • 3 bed • 1 bath • 904 ft²
3 bedroom semi-detached house for sale in Church Road, Easton-in-Gordano, Bristol, BS20 — £375,000 • 3 bed • 1 bath • 987 ft²


















































































































